| ◇長岡市川崎新築アパート◇嬉しいインターネット無料のお部屋です◎駐車場も1台付きます!!お問合わせはリビングギャラリー長岡センターまで! | |||
| 物件コード | 00078-113810 | ||
|---|---|---|---|
| 物件名 | カーサ川崎 | ||
| 交通 | 駅:長岡から徒歩23分 | ||
| 所在地 | 新潟県長岡市川崎4丁目356-3 | ||
| 物件種別 | アパート・マンション・一戸建て | ||
| 総戸数 | 6戸 | ||
| 構造 | 木造 | 階建 | 地上2階建 |
| 所在階/階数 | 1階/2階 | 号室 | 102号室 |
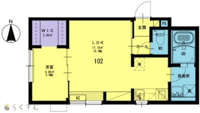
| 面積 | 32.91㎡ (9.95坪) | 方位 | 南 |
| 間取り | 1LDK (洋室:3)
|
||
| 賃料 | 7万円/月
|
管理費 |
6,000円/月
|
| 礼金 | 1ヶ月
|
敷金 | 1ヶ月
|
| ほか初期費用 | - | その他諸費用 | - |
| 更新料 |
要確認 |
火災(家財)保険 |
18,000円
損害保険:2年間1.8万円 |
| 駐車場 |
付無料 |
バイク料金 | - |
| 鍵交換費 | - | 清掃料 | - |
| 更新事務手数料 | - | ||
| 保証区分 |
保証会社のみ |
||
| 保証会社 |
区分:加入要 保証会社名:その他 (-) 初回:月額総賃料50% 毎月:保証料440円(引落手数料込)10,000円/1年毎更新料 |
||
| 連帯保証人 |
区分:不要+保証会社利用が必要 - |
||
| 仲介手数料 | 77,000円 | ||
| 築年月 | 2026年2月(築2ヶ月) | ||
| 利用制限 | 単身者:可、ペット:不可、事務所利用:不可、ルームシェア:不可 | ||
| 学校区 | - | ||
| 設備 | 駐車場1台無料、駐車場 礼金なし、駐車場 敷金なし、システムキッチン、2口コンロ、IHクッキングヒーター、ガスコンロ 設置済み、バストイレ別、追いだき機能付き、温水洗浄便座、暖房便座、洗面所独立、シャワー付き洗面台、エアコン、オール電化、都市ガス、3か所給湯、全居室フローリング、洗濯機置場 室内、脱衣所、ウォークインクロゼット、BS端子・アンテナ、TVモニター付きインターホン、インターネット無料、インターネット接続可 | ||
| 入居時期 | 2026年2月下旬 入居可能予定 | ||
| 取引態様 | 仲介 | ||
| 備考 | - | ||
| 手数料負担割合/配分割合 | 貸主:0% 借主:100% / 元付:50% 客付:50% | ||
| 情報登録日 | 2026/04/08 | 次回更新予定日 | 2026/04/23 |
|
|
|
|
| TEL: | 0800-100-0539 |
|---|---|
| 所在地: | 新潟県長岡市古正寺1丁目48番地1 |
| 交通: | 長岡駅 |
| 営業時間: | 10:00~18:00/定休日:水曜日・第一、第三火曜日 |
| 免許番号: | 国土交通大臣(6)第5854号 |
| 所属団体名: | 新潟県宅地建物取引協会 長岡支部 |
| 取引態様: | 仲介 |