| 明るい南向きのお部屋です♪温水暖房ルームヒーター付で冬も安心です。 | |||
| 物件コード | 00071-100534 | ||
|---|---|---|---|
| 物件名 | アルファステイツ大手通 | ||
| 交通 | 駅:上越新幹線 長岡駅から徒歩5分 | ||
| 所在地 | 新潟県長岡市大手通2丁目4-1 | ||
| 物件種別 | アパート・マンション・一戸建て | ||
| 総戸数 | 56戸 | ||
| 構造 | 鉄筋コン | 階建 | 地上15階建 |
| 所在階/階数 | 14階/15階 | 号室 | 1402号室 |
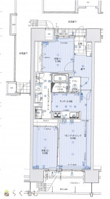
| 面積 | 62.51㎡ (18.9坪) | 方位 | 南 |
| 間取り | 2LDK (洋室:5.6、5.3)
LD9.9K3.4 |
||
| 賃料 | 17万円/月
|
管理費 | - |
| 礼金 | 1ヶ月
|
敷金 | 2ヶ月
|
| ほか初期費用 | - | その他諸費用 | 2年更新時更新料:新賃料の1ヶ月分 |
| 更新料 | - | 火災(家財)保険 |
15,000円
2年間 |
| 共益費 | - | 町内費 | - |
| 駐車場 |
19,000円
敷地内立体駐車場(ハイルーフ区画)※サイズ要確認 |
バイク料金 | - |
| 鍵交換費 | - | 清掃料 | - |
| 更新事務手数料 | - | ||
| 保証区分 |
連帯保証人のみ |
||
| 保証会社 |
区分:指定なし - |
||
| 連帯保証人 |
区分:要 - |
||
| 仲介手数料 |
187,000円
|
||
| 築年月 | 2022年11月(築3年) | ||
| 利用制限 | - | ||
| 学校区 | 阪之上小学校(781m)・東中学校(1,344m) | ||
| 設備 | バス停近く、最寄り駅近く、高層(タワー)物件、日当り良好、エレベーター、屋上、宅配BOX、敷地内ゴミ置き場、LDK12畳以上、築5年以内、駐輪場あり、南向き、防犯カメラ、エントランスオートロック、システムキッチン、対面キッチン、ガスコンロ 設置済み、バストイレ別、浴室1坪以上、追いだき機能付き、浴室乾燥機、温水洗浄便座、洗面所独立、エアコン、都市ガス、バルコニー、全居室フローリング、洗濯機置場 室内、脱衣所、玄関収納、クロゼット、クロゼット2ヵ所、TVモニター付きインターホン、即入居可、保証会社利用可能、新築・築浅物件 | ||
| 入居時期 | 即入居可 | ||
| 取引態様 | 仲介 | ||
| 備考 | 駐車場は別途契約が必要です。2年更新時に新賃料の1ヶ月分の更新料がかかります。 | ||
| 手数料負担割合/配分割合 | 貸主:-% 借主:100% / 元付:50% 客付:50% | ||
| 情報登録日 | 2026/03/02 | 次回更新予定日 | 2026/04/19 |
|
|
|
|
|
|
| TEL: | 0258-32-1222 |
|---|---|
| 所在地: | 新潟県長岡市本町3-1-9 アーバンヒルズ長岡1F |
| 交通: | 長岡駅 |
| 営業時間: | 9:00~17:00/定休日:日・祝・祭日 |
| 免許番号: | 新潟県知事(10)3038号 |
| 所属団体名: | 新潟県宅地建物取引協会 長岡支部 |
| 取引態様: | 仲介 |