| 1階★ | |||
| 物件コード | 00052-100161 | ||
|---|---|---|---|
| 物件名 | ◆貸店舗事務所◆居島アパート | ||
| 交通 | 駅:弥彦線 北三条駅から徒歩7分、バス:三條信用組合中央支店から徒歩3分 | ||
| 所在地 | 新潟県三条市居島4-7 | ||
| 物件種別 | 店舗 | ||
| 総戸数 | - | ||
| 構造 | 木造 | 階建 | 地上2階建 | 
| 所在階/階数 | 1階/2階 | 号室 | - | 
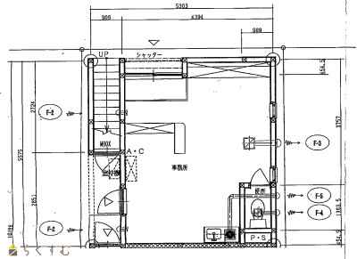
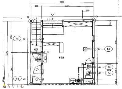
| 面積 | 24.45㎡ (7.39坪) | 方位 | - | 
| 間取り | 
						 | 
					||
| 賃料 | 5万円/月
								
								 | 
							管理費 | - | 
| 礼金 | 1ヶ月
								
								 | 
							敷金 | 1ヶ月
								
								 | 
						
| ほか初期費用 | - | その他諸費用 | - | 
| 更新料 | - | 火災(家財)保険 | 加入必須 | 
| 共益費 | - | 町内費 | - | 
| 駐車場 | 敷地内無し 敷地外近隣10,000円/月 | バイク料金 | - | 
| 鍵交換費 | - | 清掃料 | - | 
| 更新事務手数料 | - | ||
| 保証区分 | 
								連帯保証人+保証会社 | 
						||
| 保証会社 | 
							   区分:加入要 保証会社名:その他 (ジェイリース株式会社) 初回保証料:月額賃料等総額の100% 継続保証料(年):月額賃料等総額の10%  | 
							
						||
| 連帯保証人 | 
							   区分:要 -  | 
						||
| 仲介手数料 | 
								
																	55,000円
									 | 
							
						||
| 築年月 | 2005年3月(築20年) | ||
| 利用制限 | 楽器:不可、事務所利用:可 | ||
| 学校区 | 裏館小学校(1,104m)・第三中学校(906m) | ||
| 設備 | 1階、飲食店可、給湯 | ||
| 入居時期 | 2025年10月中旬以降可 | ||
| 取引態様 | 仲介 | ||
| 備考 | ※現在賃貸中。2025年10月中旬以降ご内覧が可能になります。 ※2階が居住用物件の為、深夜帯の営業や音の大きく出る営業形態はお断りします。  | 
					||
| 手数料負担割合/配分割合 | 貸主:0% 借主:100% / 元付:50% 客付:50% | ||
| 情報登録日 | 2025/07/20 | 次回更新予定日 | 2025/11/19 | 
| 
							 | 
						
							 
						 | 
					
							 
						 | 
						
							 
						 | 
					
| TEL: | 0256-35-5825 | 
|---|---|
| 所在地: | 新潟県三条市旭町1丁目1-19-3ユタカビル | 
| 交通: | 東三条駅 | 
| 営業時間: | 9:00~18:00/定休日:火曜・祭日 | 
| 免許番号: | 新潟見知事(9)第3203号 | 
| 所属団体名: | 新潟県宅地建物取引協会 三条支部 | 
| 取引態様: | 仲介 |