| 物件コード | 00040-101105 | ||
|---|---|---|---|
| 物件名 | 古正寺1丁目貸店舗 | ||
| 交通 | 駅:上越新幹線 長岡駅から徒歩45分、バス:上連潟から徒歩3分 | ||
| 所在地 | 新潟県長岡市古正寺1丁目230-1 | ||
| 物件種別 | 店舗 | ||
| 総戸数 | - | ||
| 構造 | 鉄骨 | 階建 | 地上1階建 | 
| 所在階/階数 | - | 号室 | - | 
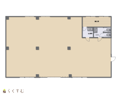
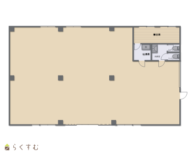
| 面積 | 594.54㎡ (179.84坪) | 方位 | - | 
| 間取り | 
						 | 
					||
| 賃料 | 110万円/月
								
								 | 
							管理費 | - | 
| 礼金 | 1ヶ月
								
								 | 
							敷金 | 300万円
								
								 | 
						
| ほか初期費用 | - | その他諸費用 | - | 
| 更新料 | - | 火災(家財)保険 | - | 
| 共益費 | - | 町内費 | - | 
| 駐車場 | - | バイク料金 | - | 
| 鍵交換費 | - | 清掃料 | - | 
| 更新事務手数料 | - | ||
| 保証区分 | 
								連帯保証人のみ | 
						||
| 保証会社 | 
							   区分:指定なし -  | 
							
						||
| 連帯保証人 | 
							   区分:要 -  | 
						||
| 仲介手数料 | 
								
																	1,100,000円
									 | 
							
						||
| 築年月 | 1993年10月(築32年) | ||
| 利用制限 | - | ||
| 学校区 | 大島小学校(959m) | ||
| 設備 | 融雪設備あり、エアコン、男女トイレ別、居抜き、給湯 | ||
| 入居時期 | 即入居可 | ||
| 取引態様 | 仲介 | ||
| 備考 | - | ||
| 手数料負担割合/配分割合 | 貸主:-% 借主:100% / 元付:50% 客付:50% | ||
| 情報登録日 | 2025/04/14 | 次回更新予定日 | 2025/11/19 | 
| 
							 | 
						
							 
						 | 
					
| 
							 | 
						
							 | 
					
| TEL: | 0120-1818-27 | 
|---|---|
| 所在地: | 新潟県長岡市千歳1-3-25 | 
| 交通: | 長岡駅 | 
| 営業時間: | 8時30分~17時30分(大手支店は9時~18時)/定休日:本社:土日祝日(事前予約での対応可能)、支店:日曜祝日第5土曜(毎年2月下旬から3月は休みなし) | 
| 免許番号: | 新潟県知事(17)第191号 | 
| 所属団体名: | 新潟県宅地建物取引協会 長岡支部 | 
| 取引態様: | 仲介 |