| ゆったり広々バスの魅力が物件です♪ | |||
| 物件コード | 00015-100640 | ||
|---|---|---|---|
| 物件名 | 第6コーポヴィラ 充実設備満載 | ||
| 交通 | 駅:信越線 見附駅から徒歩5分、バス:見附高校前から徒歩4分 | ||
| 所在地 | 新潟県見附市本所2丁目2-47 | ||
| 物件種別 | アパート・マンション・一戸建て | ||
| 総戸数 | - | ||
| 構造 | 木造 | 階建 | 地上2階建 |
| 所在階/階数 | 2階/2階 | 号室 | 203号室 |
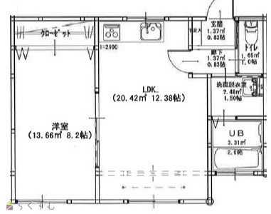
| 面積 | 46.4㎡ (14.03坪) | 方位 | 指定なし |
| 間取り | 1LDK (洋室:8.2)
LDK12.38 |
||
| 賃料 | 5.5万円/月
|
管理費 | - |
| 礼金 | -
|
敷金 | 1ヶ月
|
| ほか初期費用 | - | その他諸費用 | - |
| 更新料 | - | 火災(家財)保険 |
20,000円
|
| 共益費 |
2,000円
|
町内費 |
450円
|
| 駐車場 | 1台無料 | バイク料金 | - |
| 鍵交換費 |
18,700円
|
清掃料 | - |
| 初回保証料 |
800円
|
||
| 更新事務手数料 |
10,000円
2年毎税別 |
||
| 保証区分 |
保証会社+緊急連絡先 |
||
| 保証会社 |
区分:加入要 保証会社名:その他 (ジェイリース) 初回保証料 |
||
| 家賃保証金 |
28,725円
|
||
| 連帯保証人 |
区分:不要 - |
||
| 仲介手数料 |
60,500円
|
||
| 築年月 | 2016年3月(築10年) | ||
| 利用制限 | - | ||
| 学校区 | 見附小学校(1,490m)・西中学校(1,026m) | ||
| 設備 | 閑静な住宅街、最寄り駅近く、LDK12畳以上、駐車場1台無料、駐車場 礼金なし、駐車場 敷金なし、角住居、システムキッチン、2口コンロ、IHクッキングヒーター、バストイレ別、浴室1坪以上、追いだき機能付き、温水洗浄便座、暖房便座、洗面所独立、シャワー付き洗面台、エアコン、エアコン2基、オール電化、サンルーム、複層サッシ、洗濯機置場 室内、エコキュート、玄関収納、クロゼット、TVモニター付きインターホン、保証会社利用可能、礼金不要、新築・築浅物件 | ||
| 入居時期 | 2026年4月上旬 | ||
| 取引態様 | 仲介 | ||
| 備考 | 駐車場2台目3,000円(縦列) | ||
| 手数料負担割合/配分割合 | 貸主:-% 借主:-% / 元付:-% 客付:-% | ||
| 情報登録日 | 2026/02/13 | 次回更新予定日 | 2026/06/06 |
|
|
|
|
|
| TEL: | 0258-86-8222 |
|---|---|
| 所在地: | 新潟県見附市本町1-1-39 2F |
| 交通: | 信越線見附駅 バス本町十字路 |
| 営業時間: | 9時~18時 ※土曜9時~17時 /定休日:第二第三土曜・日曜・祝日※事前予約での定休日相談可 |
| 免許番号: | 新潟県知事(11)2726 |
| 所属団体名: | 新潟県宅地建物取引業協会 三条支部 |
| 取引態様: | 仲介 |