| 物件コード | 00008-100004 | ||
|---|---|---|---|
| 物件名 | フローレンスⅢ(101) | ||
| 交通 | バス:宝4丁目から徒歩3分 | ||
| 所在地 | 新潟県長岡市中瀬1丁目1番地3 | ||
| 物件種別 | アパート・マンション・一戸建て | ||
| 総戸数 | 4戸 | ||
| 構造 | 木造 | 階建 | 地上2階建 |
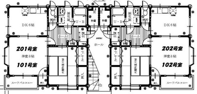
| 所在階/階数 | 1階/2階 | 号室 | 101号室 |
| 面積 | 52㎡ (15.73坪) | 方位 | 指定なし |
| 間取り | 2DK (和室:6畳) (洋室:8)
DK6 追焚機能 |
||
| 賃料 | 5.8万円/月
|
管理費 | - |
| 礼金 | -
|
敷金 | 1ヶ月
|
| ほか初期費用 | - | その他諸費用 | 賃貸保証料(契約時35,100円 毎月650円) |
| 更新料 | - | 火災(家財)保険 |
23,260円
|
| 共益費 | - | 町内費 |
500円
|
| 駐車場 | 2台分 | バイク料金 | - |
| 鍵交換費 | - | 清掃料 | - |
| 賃貸保証料(契約時) |
35,100円
|
||
| 賃貸保証料(毎月) |
650円
|
||
| 更新事務手数料 | - | ||
| 保証区分 |
保証会社+緊急連絡先 |
||
| 保証会社 |
区分:加入要 保証会社名:ジェイリース 契約時保証料 35,100円 毎月保証料 650円 |
||
| 連帯保証人 |
区分:不要 - |
||
| 仲介手数料 |
63,800円
|
||
| 築年月 | 2003年3月(築22年) | ||
| 利用制限 | ペット:不可 | ||
| 学校区 | 黒条小学校(1,390m)・堤岡中学校(1,416m) | ||
| 設備 | 閑静な住宅街、耐震住宅、タイヤ置き場、駐車場2台無料、南向き、角住居、出窓、バストイレ別、追いだき機能付き、洗面所独立、エアコン、都市ガス、バルコニー、複層サッシ、トランクルーム、保証会社利用可能、新婚・カップル向け、■駐車場2台分込 ■追焚機能 ■融雪装置 ■エアコン ■トランクルーム | ||
| 入居時期 | 即入居可 | ||
| 取引態様 | 仲介 | ||
| 備考 | - | ||
| 手数料負担割合/配分割合 | 貸主:0% 借主:100% / 元付:50% 客付:50% | ||
| 情報登録日 | 2025/07/15 | 次回更新予定日 | 2026/03/07 |
|
|
|
|
| TEL: | 0258-39-6030 |
|---|---|
| 所在地: | 新潟県長岡市西新町1-8-11 |
| 交通: | 「新町小学校前」バス停徒歩1分 |
| 営業時間: | 9:00~18:30/定休日:日曜・祭日 |
| 免許番号: | 新潟県知事(4)4829号 |
| 所属団体名: | 公益社団法人 新潟県宅地建物取引業協会 |
| 取引態様: | 仲介 |