縦列駐車可能(2台分:普通車+コンパクトカー等)
| 物件名
所在地 |
面積
間取り 所在階 |
築年数
方位 |
賃料
管理費等 共益費 |
敷金
保証金 礼金 |
種別
構造 |
|---|---|---|---|---|---|
| 南町第3パーキング No.2 新潟県長岡市南町1丁目1番地8 | - - - | - - | 1.65万円 なし なし | なし なし 1.65万円 | 駐車場 - |
| 物件コード | 00344-100016 | ||
|---|---|---|---|
| 物件名 | 南町第3パーキング No.2 | ||
| 交通 | 駅:上越新幹線 長岡駅から徒歩10分、バス:南町1丁目から徒歩2分 | ||
| 所在地 | 新潟県長岡市南町1丁目1番地8 | ||
| 物件種別 | 駐車場 | ||
| 総戸数 | - | ||
| 構造 | - | 階建 | - |
| 所在階/階数 | - | 号室 | - |
| 面積 | - | 方位 | - |
| 間取り | - | ||
| 賃料 | 1.65万円/月
|
管理費 | - |
| 礼金 | 1.65万円
|
敷金 | - |
| ほか初期費用 | - | その他諸費用 | - |
| 更新料 | - | 火災(家財)保険 | - |
| 共益費 | - | 町内費 | - |
| 駐車場 | - | バイク料金 | - |
| 鍵交換費 | - | 清掃料 | - |
| 更新事務手数料 | - | ||
| 保証区分 |
緊急連絡先のみ |
||
| 保証会社 |
区分:指定なし
- |
||
| 連帯保証人 |
区分:不要 - |
||
| 仲介手数料 |
16,500円
|
||
| 築年月 | - | ||
| 利用制限 | - | ||
| 学校区 | 千手小学校(580m)・南中学校(269m) | ||
| 設備 | 舗装、即利用可能、融雪井戸あり | ||
| 入居時期 | 即入居可 | ||
| 取引態様 | 仲介 | ||
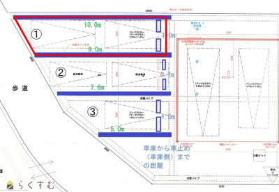
| 備考 | 現地確認のうえ、一度、駐車いただき、歩道へのはみ出しがないか確認が必要となります。 1台利用の場合も駐車料変わりません。 |
||
| 手数料負担割合/配分割合 | 貸主:-% 借主:100% / 元付:50% 客付:50% | ||
| 取り扱い会社 |
SUMORE NAGAOKA KONOMA Real Estate co.,ltd. 新潟県長岡市坂之上町二丁目3番地9sumoreビル |
||
| 情報登録日 | 2025/07/23 | 次回更新予定日 | 2026/03/07 |
| TEL: | 0258-89-7833 | |
|---|---|---|
| 所在地: | 新潟県長岡市坂之上町二丁目3番地9sumoreビル | |
| 交通: | JR長岡駅 | |
| 営業時間: | 9:00~18:00/定休日:日・祝日(事前予約受付しています) | |
| 免許番号: | 新潟県知事(1)第5700号 | |
| 所属団体名: | 公社新潟県宅地建物取引協会 長岡支部 | |
| 取引態様: | 仲介 | |
| ホームページ: | https://sumore.co.jp/ | |