上越市北城町3丁目3-3 店舗 27.5万円の物件情報

上越大通りに面し、交通アクセス良好

物件名
所在地
面積
間取り
所在階
築年数
方位
賃料
管理費等
共益費
敷金
保証金
礼金
種別
構造
北城町3丁目 店舗
上越市北城町3丁目3-3
111㎡
(33.57坪)
-
-
24年
-
27.5万円
なし
なし
3ヶ月
なし
なし
店舗
鉄骨
  • 北城町3丁目 店舗
    上越宅地販売株式会社
  • この物件を問い合わせる/無料
  • TEL: 025-522-3838 025-522-3838

物件画像

外観
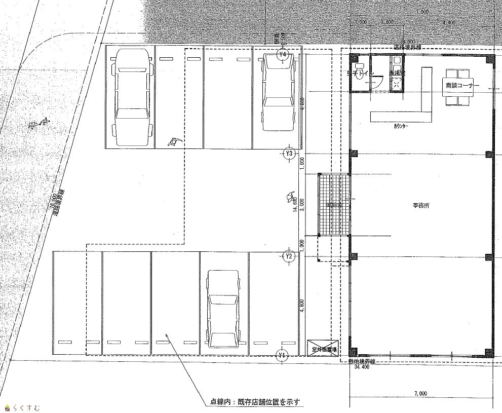
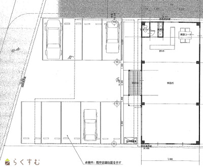
間取り
物件画像
※画像クリックで拡大表示
外観
物件画像
※画像クリックで拡大表示
間取り
詳細画像
物件画像
玄関
物件画像
内観
物件画像
内観
物件画像
内観
物件画像
給湯室
物件画像
トイレ
物件画像
駐車場
物件画像
店舗裏側
物件画像
印刷用地図


物件概要

物件コード 00308-100440
物件名 北城町3丁目 店舗
交通 駅:妙高はねうまライン 高田駅から徒歩16分
所在地 上越市北城町3丁目3-3
物件種別 店舗
総戸数 -
構造 鉄骨 階建 地上1階建
所在階/階数 - 号室 -
面積 111㎡ /33.57坪 方位 -
間取り -
賃料 27.5万円/月
25万+税
管理費 -
礼金 -
敷金 3ヶ月
ほか初期費用 - その他諸費用 -
更新料 - 火災(家財)保険 要加入
共益費 - 町内費 実費負担
駐車場
15台
バイク料金 -
鍵交換費 - 清掃料 -
更新事務手数料 -
保証区分 保証会社+緊急連絡先
保証会社 区分:加入要
保証会社名:CIZ
月額総賃料の77%(契約時) 事務手数料2,200円
家賃保証金 213,950円
連帯保証人 区分:不要
-
仲介手数料 275,000円
築年月 2001年10月(築24年)
利用制限 法人:可、事務所利用:可
学校区 大町小学校(778m)・城北中学校(711m)
設備 1階、融雪設備あり、エアコン、駐車場あり
入居時期 相談
取引態様 仲介
備考 -
手数料負担割合/配分割合 貸主:0%   借主:100% / 元付:50%   客付:50%  
取り扱い会社

上越宅地販売株式会社

新潟県上越市南高田町1-2アサノビル1階

情報登録日 2025/11/08 次回更新予定日 2026/03/06
  • 北城町3丁目 店舗
    上越宅地販売株式会社
  • この物件を問い合わせる/無料
  • TEL: 025-522-3838 025-522-3838

この物件の地図・周辺情報・行政情報

この物件の周辺情報・行政情報を詳しく見る
【周辺情報】
物件の近くにあるコンビニや銀行・学校など、アイコン付のマップで詳しく表示できます!
【行政情報】
水道料や下水道料・ガス料金など、暮らしに関係のある情報を表示しています。
セブン-イレブン 上越北城店(コンビニ)まで90m
ナルス 北城店(スーパー)まで180m
第四北越銀行 高田営業部(銀行)まで610m

※カメラのアイコンがある場合は、マウスをポイントするとその施設の画像がご覧いただけます。


担当取扱い店舗情報

取扱い店舗画像
上越宅地販売株式会社
TEL: 025-522-3838
所在地: 新潟県上越市南高田町1-2アサノビル1階
交通: 妙高はねうまライン 南高田駅 徒歩1分
営業時間: 9:00~18:30/定休日:毎週水曜日・GW・夏季・・年末年始
免許番号: 新潟県知事(9)第3372号
所属団体名: 公社 新潟県宅地建物取引協会 上越支部
取引態様: 仲介
ホームページ: http://takuhan.com/