上越市春日野1-10-51 アパート 1K 2.8万円の物件情報

春日山駅、市役所、スーパーに近く生活に便利な環境です

物件名
所在地
面積
間取り
所在階
築年数
方位
賃料
管理費等
共益費
敷金
保証金
礼金
種別
構造
セピアハイツ101号室
上越市春日野1-10-51
27.3㎡
(8.25坪)
1K
-
33年
2.8万円
なし
なし
1ヶ月
なし
なし
アパート・マンション・一戸建て
木造
  • セピアハイツ101号室
    上越住宅建築事業協同組合
  • この物件を問い合わせる/無料
  • TEL: 080-3363-7300 080-3363-7300

物件画像

外観
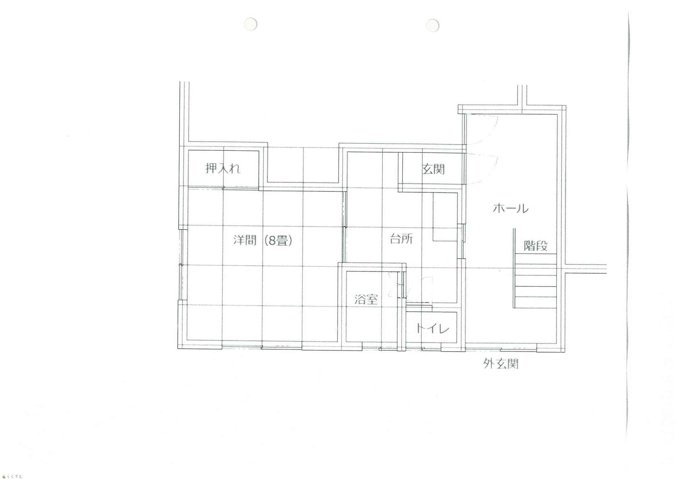
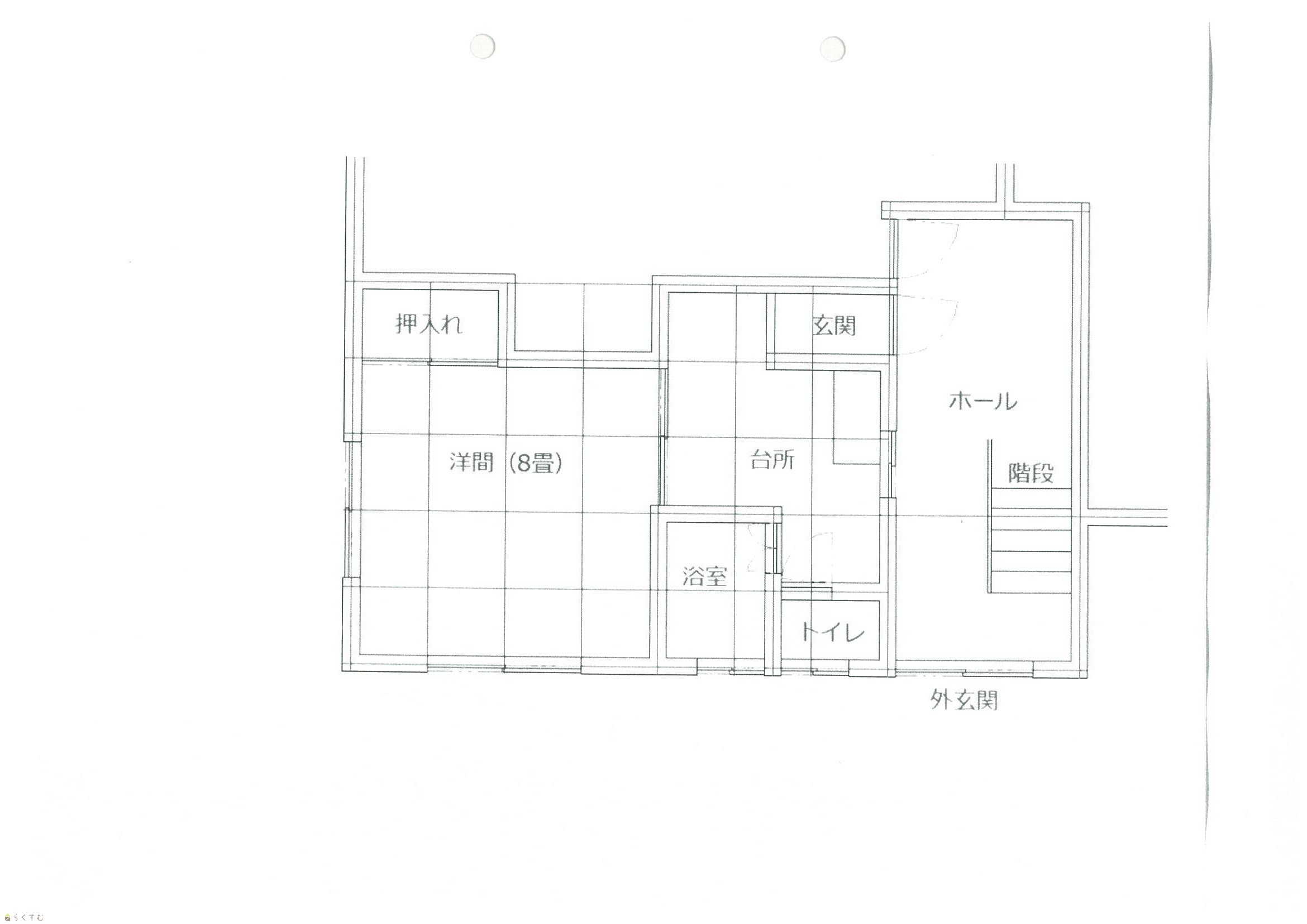
間取り
物件画像
※画像クリックで拡大表示
外観
物件画像
※画像クリックで拡大表示
詳細画像
物件画像
前面道路
物件画像
洋間8帖
物件画像
台所
物件画像
浴室
物件画像
トイレ
物件画像
洗面


物件概要

★事務所可物件です♪♪★短期賃貸契約可
物件コード 00287-100001
物件名 セピアハイツ101号室
交通 駅:妙高はねうまライン春日山駅から徒歩7分
所在地 上越市春日野1-10-51
物件種別 アパート・マンション・一戸建て
総戸数 -
構造 木造 階建 -
所在階/階数 - 号室 -
面積 27.3㎡ /8.25坪 方位
間取り 1K
賃料 2.8万円/月
管理費 -
礼金 -
敷金 1ヶ月
ほか初期費用 - その他諸費用 借家人賠償保険料、鍵交換費用、退去時ハウスクリーニング費用は別途かかります。
更新料 - 火災(家財)保険 -
共益費 - 町内費 -
駐車場 - バイク料金 -
鍵交換費 - 清掃料 -
更新事務手数料 -
保証区分 連帯保証人のみ
保証会社 区分:指定なし
-
連帯保証人 区分:要
-
仲介手数料 30,800円
築年月 1993年4月(築33年)
利用制限 事務所利用:可
学校区 春日小学校(867m)・春日中学校(212m)
設備 駐車場1台無料、バストイレ別、エアコン、都市ガス、外装リフォーム済み、即入居可、礼金不要、上越教育大学生におすすめ
入居時期 即入居可
取引態様 仲介
備考 ★町内会費は家賃に含んでおります
★火災保険料、鍵交換費用、退去時ハウスクリーニング費用は別途かかります。
手数料負担割合/配分割合 貸主:-%   借主:-% / 元付:-%   客付:-%  
取り扱い会社

上越住宅建築事業協同組合

新潟県上越市東本町2-2-17

情報登録日 2025/04/16 次回更新予定日 2026/06/07
  • セピアハイツ101号室
    上越住宅建築事業協同組合
  • この物件を問い合わせる/無料
  • TEL: 080-3363-7300 080-3363-7300

この物件の地図・周辺情報・行政情報

この物件の周辺情報・行政情報を詳しく見る
【周辺情報】
物件の近くにあるコンビニや銀行・学校など、アイコン付のマップで詳しく表示できます!
【行政情報】
水道料や下水道料・ガス料金など、暮らしに関係のある情報を表示しています。

担当取扱い店舗情報

取扱い店舗画像
上越住宅建築事業協同組合
TEL: 080-3363-7300
所在地: 新潟県上越市東本町2-2-17
交通: 妙高はねうまライン高田駅
営業時間: 8:30~17:15/定休日:土、日、祝日
免許番号: 新潟県知事(11)第2597号
所属団体名: (公社)新潟県宅地建物取引業協会上越支部
取引態様: 仲介
ホームページ: http://www.chuokai-niigata.or.jp/jyojyuken/