新潟県上越市本町6-1-23 事務所 19.8万円の物件情報

駅近ビルをワンフロア貸切で

物件名
所在地
面積
間取り
所在階
築年数
方位
賃料
管理費等
共益費
敷金
保証金
礼金
種別
構造
高田館ビル(2階一括貸し)
新潟県上越市本町6-1-23
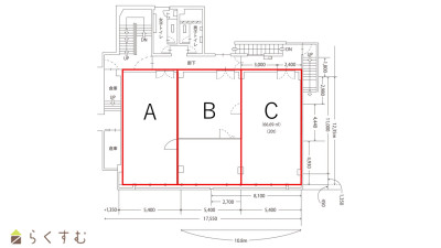
283.94㎡
(85.89坪)
-
2階
不詳
-
19.8万円
なし
なし
なし
なし
なし
事務所
鉄筋コン
  • 高田館ビル(2階一括貸し)
    ピタットハウス上越店 日建不動産
  • この物件を問い合わせる/無料
  • TEL: 025-544-6015 025-544-6015

物件画像

外観
間取り
物件画像
※画像クリックで拡大表示
外観
物件画像
※画像クリックで拡大表示
間取り
詳細画像
物件画像
事務所
物件画像
事務所
物件画像
その他
物件画像
その他
物件画像
その他
物件画像
その他
物件画像
その他
物件画像
その他
物件画像
駐車場
物件画像
印刷用地図


物件概要

高田駅から徒歩5分の立地。 2階をワンフロアで貸し出した場合の価格です。(約60坪ほど) 分割での貸し出しもご相談ください。 トイレと流し台は共同となります。
物件コード 00263-100096
物件名 高田館ビル(2階一括貸し)
交通 駅:高田から徒歩5分
所在地 新潟県上越市本町6-1-23
物件種別 事務所
総戸数 -
構造 鉄筋コン 階建 地上4階建
所在階/階数 2階/4階 号室 -
面積 283.94㎡ /85.89坪 方位 -
間取り -
賃料 19.8万円/月
管理費 -
礼金 - 敷金 -
ほか初期費用 - その他諸費用 -
更新料 - 火災(家財)保険 加入要
共益費 - 町内費 直接支払い
駐車場 3台可能。追加分ご相談ください。消雪設備あり バイク料金 -
鍵交換費 - 清掃料 -
更新事務手数料 22,000円
保証区分 連帯保証人+保証会社
保証会社 区分:加入要
保証会社名:日本セーフティ
初回保証料:賃料等合計の100%、継続保証料:賃料等合計の0.8%。※最低保証料あり
家賃保証金 198,000円
連帯保証人 区分:要
-
仲介手数料 198,000円
築年月 不詳
利用制限 -
学校区 大町小学校(403m)
設備 2階以上、融雪設備あり、駐車場あり
入居時期 相談
取引態様 仲介
備考 1階は株式会社新潟ビルサービス 上越営業所
町内会費:直接支払い
駐車場:建物前に3台可能。追加分ご相談ください。消雪設備あり。
テナント保険:加入要
保証会社:日本セーフティー株式会社
(初回保証料:賃料等合計の100%、継続保証料:賃料等合計の0.8%。※最低保証料あり )
◆店舗・事務所はテナントショップ上越でお探しください!◆
手数料負担割合/配分割合 貸主:-%   借主:100% / 元付:50%   客付:50%  
取り扱い会社

ピタットハウス上越店 日建不動産

新潟県上越市春日新田1-20-8

情報登録日 2025/10/17 次回更新予定日 2026/06/06
  • 高田館ビル(2階一括貸し)
    ピタットハウス上越店 日建不動産
  • この物件を問い合わせる/無料
  • TEL: 025-544-6015 025-544-6015

この物件の地図・周辺情報・行政情報

この物件の周辺情報・行政情報を詳しく見る
【周辺情報】
物件の近くにあるコンビニや銀行・学校など、アイコン付のマップで詳しく表示できます!
【行政情報】
水道料や下水道料・ガス料金など、暮らしに関係のある情報を表示しています。

担当取扱い店舗情報

取扱い店舗画像
ピタットハウス上越店 日建不動産
TEL: 025-544-6015
所在地: 新潟県上越市春日新田1-20-8
交通:
営業時間: 9:00~18:00/定休日:水・日・祝
免許番号: 新潟県知事(10)第3031号
所属団体名: 公社 新潟県宅地建物取引協会 上越支部
取引態様: 仲介
ホームページ: https://www.pitat-j.com/