新潟県上越市西本町1丁目16番20号 店舗 8.8万円の物件情報

居抜き物件!!即開店できます!!

物件名
所在地
面積
間取り
所在階
築年数
方位
賃料
管理費等
共益費
敷金
保証金
礼金
種別
構造
【募集中】マリーベビル D号室
D号室
新潟県上越市西本町1丁目16番20号
32.86㎡
(9.94坪)
-
2階
28年
-
8.8万円
5,500円/月
なし
8万円
なし
なし
店舗
鉄骨
  • 【募集中】マリーベビル D号室
    株式会社 お不動さん
  • この物件を問い合わせる/無料
  • TEL: 025-520-8197 025-520-8197

物件画像

外観
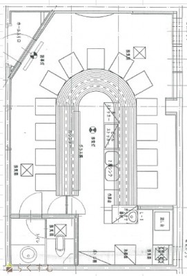
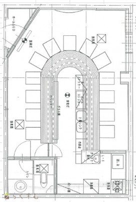
間取り
物件画像
※画像クリックで拡大表示
外観
物件画像
※画像クリックで拡大表示
詳細画像
物件画像
ホール
物件画像
厨房
物件画像
トイレ
物件画像
内装
物件画像
所在地


物件概要

物件コード 00200-100155
物件名 【募集中】マリーベビル D号室
交通 駅:信越線 直江津駅から徒歩5分、バス:西本町一丁目から徒歩1分
所在地 新潟県上越市西本町1丁目16番20号
物件種別 店舗
総戸数 -
構造 鉄骨 階建 地上2階建
所在階/階数 2階/2階 号室 D号室
面積 32.86㎡ /9.94坪 方位 -
間取り -
賃料 8.8万円/月
(課税表記)
管理費 5,500円/月
(課税表記)
礼金 -
敷金 8万円
賃料の1ヶ月分
ほか初期費用 - その他諸費用 -
更新料 - 火災(家財)保険 21,300円
テナント保険 (2年)
共益費 - 町内費 1,200円
借主にて別途町内に納入
駐車場 - バイク料金 -
鍵交換費 - 清掃料 -
保証審査事務手数料 2,200円
更新事務手数料 -
保証区分 保証会社+緊急連絡先
保証会社 区分:加入要
保証会社名:CIZ
保証料:町内会費を含む月額合計賃料の77%、更新料なし
家賃保証金 72,919円
連帯保証人 区分:不要
-
仲介手数料 88,000円
築年月 1997年7月(築28年)
利用制限 子供:不可、ペット:不可
学校区 直江津南小学校(317m)・直江津中学校(384m)
設備 2階以上、エアコン、即引き渡し可、飲食店可、居抜き、給湯
入居時期 即入居可
取引態様 仲介
備考 ☆間取り:ワンフロア(カウンター席・ミニキッチン)
☆設備:電気、低圧電力、上水道、下水道、都市ガス、エアコン、温水洗浄便座、化粧台、非常灯、非常口誘導灯、給湯、看板設置箇所(3か所あり) ・カウンター席13人掛け・駐車場近隣
☆引渡し条件:即時可能/現況渡し
☆その他:物件内にあるシンク、ガスコンロ、冷蔵庫、ホットウオーマーは残置扱い、使用可能!但し、修理・入替え・撤去は借主負担でお願いいたします。
☆礼金・更新料なし☆
☆居抜き物件!!即開店できます。
☆常時、内覧可能です!その他、応相談
手数料負担割合/配分割合 貸主:-%   借主:100% / 元付:50%   客付:50%  
取り扱い会社

株式会社 お不動さん

上越市中央一丁目12番36号

情報登録日 2025/01/17 次回更新予定日 2026/06/05
  • 【募集中】マリーベビル D号室
    株式会社 お不動さん
  • この物件を問い合わせる/無料
  • TEL: 025-520-8197 025-520-8197

この物件の地図・周辺情報・行政情報

この物件の周辺情報・行政情報を詳しく見る
【周辺情報】
物件の近くにあるコンビニや銀行・学校など、アイコン付のマップで詳しく表示できます!
【行政情報】
水道料や下水道料・ガス料金など、暮らしに関係のある情報を表示しています。
セブン-イレブン 直江津駅前通り店(コンビニ)まで350m
イチコスーパー 直江津西店(スーパー)まで790m
直江津郵便局(郵便局)までm

※カメラのアイコンがある場合は、マウスをポイントするとその施設の画像がご覧いただけます。


担当取扱い店舗情報

取扱い店舗画像
株式会社 お不動さん
TEL: 025-520-8197
所在地: 上越市中央一丁目12番36号
交通: 直江津駅
営業時間: 8:30~17:30/定休日:日曜・祝日・第2土曜日・第4土曜日
免許番号: 新潟県知事(2)第5449号
所属団体名: 公社 新潟県宅地建物取引協会 上越支部
取引態様: 仲介
ホームページ: https://ofudousan.amebaownd.com/