新潟県上越市春日野1丁目4番38号 事務所 11万円の物件情報

山麓線近く交通のアクセス良好ーーー!事務所、サロンなどにいかがでしょうか♪♪

物件名
所在地
面積
間取り
所在階
築年数
方位
賃料
管理費等
共益費
敷金
保証金
礼金
種別
構造
new【商談中】ヤマダオフィス Ⅱ
B号室
新潟県上越市春日野1丁目4番38号
52.99㎡
(16.02坪)
-
1階
6年
-
11万円
2,200円/月
なし
なし
なし
11万円
事務所
木造
  • new【商談中】ヤマダオフィス Ⅱ
    株式会社 お不動さん
  • この物件を問い合わせる/無料
  • TEL: 025-520-8197 025-520-8197

物件画像

外観
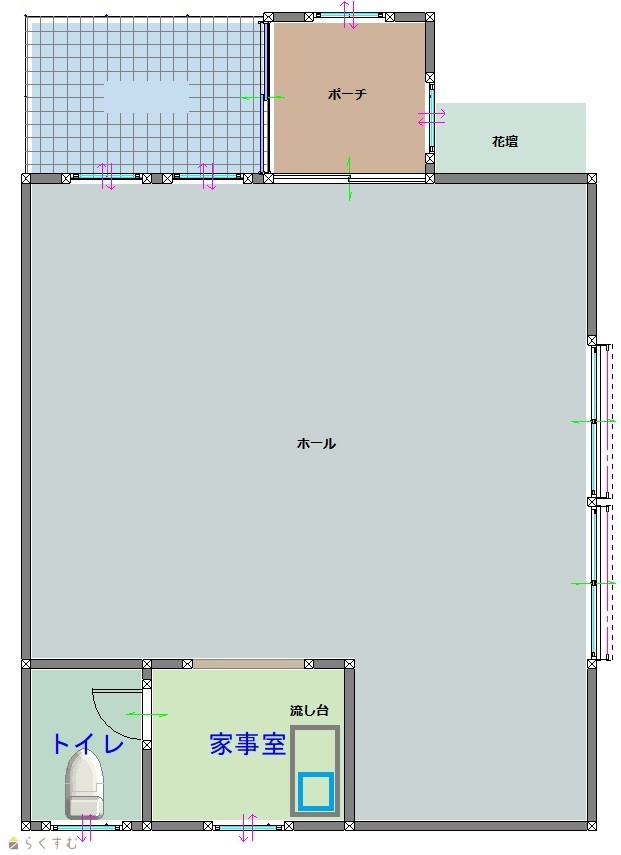
間取り
物件画像
※画像クリックで拡大表示
外観
物件画像
※画像クリックで拡大表示
間取り図
詳細画像
物件画像
ワーキングスペース
物件画像
ワーキングスペース
物件画像
ワーキングスペース
物件画像
風除室
物件画像
設備
物件画像
ダイヤル式ポスト
物件画像
トイレ
物件画像
給湯室
物件画像
電気温水器
物件画像
ワーキングスペース
物件画像
設備


物件概要

テナントのご主人様☆☆募集中ーーー☆☆
物件コード 00200-100120
物件名 new【商談中】ヤマダオフィス Ⅱ
交通 駅:妙高はねうまライン 春日山駅から徒歩12分、バス:春日山町三丁目北から徒歩3分
所在地 新潟県上越市春日野1丁目4番38号
物件種別 事務所
総戸数 -
構造 木造 階建 地上1階建
所在階/階数 1階/1階 号室 B号室
面積 52.99㎡ /16.02坪 方位 -
間取り -
賃料 11万円/月
(課税表記)
管理費 2,200円/月
(課税表記)
礼金 11万円
(課税表記)
敷金 -
ほか初期費用 - その他諸費用 -
更新料 - 火災(家財)保険 21,300円
(2年)
共益費 - 町内費 -
駐車場 - バイク料金 -
鍵交換費 - 清掃料 -
更新事務手数料 -
保証区分 保証会社+緊急連絡先
保証会社 区分:加入要
保証会社名:CIZ
保証料:月額合計賃料の77%、更新料不要。
家賃保証金 86,394円
連帯保証人 区分:不要
-
仲介手数料 110,000円
築年月 2019年1月(築6年)
利用制限 法人:可、ペット:不可、楽器:不可、事務所利用:可
学校区 春日小学校(316m)・春日中学校(474m)
設備 1階、融雪設備あり、光ファイバー、エアコン、スケルトン、給湯、駐車場あり
入居時期 即入居可
取引態様 仲介
備考 ・2025.9.22より、商談中です。

※賃料、管理費は課税後の表記金額です。
※現在、賃貸中のため内覧は令和 7年 9月以降可能。
・その他:町内会は事業所は加入できない為町内会費不要。但し、ごみ等は借主にて別途、回収業者を手配となります。
【設備】・電気・上水道・下水道・流し台・給湯室・電気温水器・エアコン(2台)・ブラインドつき・火災報知器・温水洗浄便座・ネット環境光コンセント・照明あり・風除室・花壇・外水道・ポーチ・駐車場 5台つき・消雪設備あり
手数料負担割合/配分割合 貸主:-%   借主:100% / 元付:50%   客付:50%  
取り扱い会社

株式会社 お不動さん

上越市中央一丁目12番36号

情報登録日 2025/09/22 次回更新予定日 2025/11/16
  • new【商談中】ヤマダオフィス Ⅱ
    株式会社 お不動さん
  • この物件を問い合わせる/無料
  • TEL: 025-520-8197 025-520-8197

この物件の地図・周辺情報・行政情報

この物件の周辺情報・行政情報を詳しく見る
【周辺情報】
物件の近くにあるコンビニや銀行・学校など、アイコン付のマップで詳しく表示できます!
【行政情報】
水道料や下水道料・ガス料金など、暮らしに関係のある情報を表示しています。

担当取扱い店舗情報

取扱い店舗画像
株式会社 お不動さん
TEL: 025-520-8197
所在地: 上越市中央一丁目12番36号
交通: 直江津駅
営業時間: 8:30~17:30/定休日:日曜・祝日・第2土曜日・第4土曜日
免許番号: 新潟県知事(2)第5449号
所属団体名: 公社 新潟県宅地建物取引協会 上越支部
取引態様: 仲介
ホームページ: https://ofudousan.amebaownd.com/