| 物件名
							 所在地  | 
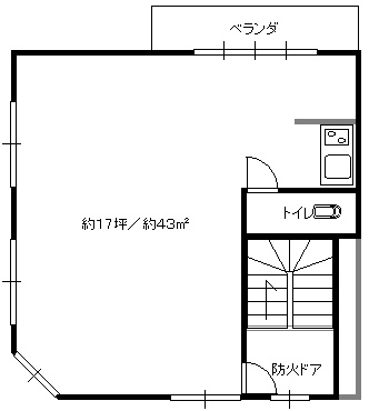
							面積
							 間取り 所在階  | 
							築年数
							 方位  | 
							賃料
							 管理費等 共益費  | 
							敷金
							 保証金 礼金  | 
							種別
							 構造  | 
						
|---|---|---|---|---|---|
| シバノビル 2F 新潟県長岡市福住2丁目5-22シバノビル2F  | 43㎡ (13坪) - 2階  | 不詳 -  | 5万円 なし なし  | 1ヶ月 なし なし  | 事務所 鉄骨  | 
						
| 物件コード | 00156-100048 | ||
|---|---|---|---|
| 物件名 | シバノビル 2F | ||
| 交通 | 駅:信越線 長岡駅から徒歩11分、バス:福住から徒歩5分 | ||
| 所在地 | 新潟県長岡市福住2丁目5-22シバノビル2F | ||
| 物件種別 | 事務所 | ||
| 総戸数 | 3戸 | ||
| 構造 | 鉄骨 | 階建 | 地上3階建 | 
| 所在階/階数 | 2階/3階 | 号室 | - | 
| 面積 | 43㎡ /13坪 | 方位 | - | 
| 間取り | - | ||
| 賃料 | 5万円/月
								
								 | 
							管理費 | - | 
| 礼金 | -
								
								 | 
							敷金 | 1ヶ月
								
								 | 
						
| ほか初期費用 | - | その他諸費用 | - | 
| 更新料 | - | 火災(家財)保険 | - | 
| 共益費 | - | 町内費 | 実費 | 
| 駐車場 | 付賃料込 | バイク料金 | - | 
| 鍵交換費 | - | 清掃料 | - | 
| 更新事務手数料 | - | ||
| 保証区分 | 
								連帯保証人のみ | 
						||
| 保証会社 | 
							   区分:指定なし
							   
							  	 
							   
							   							    -  | 
							
						||
| 連帯保証人 | 
							   区分:要 -  | 
						||
| 仲介手数料 | 
								
																	55,000円
									 | 
							
						||
| 築年月 | 不詳 | ||
| 利用制限 | 事務所利用:可 | ||
| 学校区 | 川崎小学校(431m)・東北中学校(1,137m) | ||
| 設備 | 駐車場あり | ||
| 入居時期 | 相談 | ||
| 取引態様 | 仲介 | ||
| 備考 | - | ||
| 手数料負担割合/配分割合 | 貸主:0% 借主:100% / 元付:50% 客付:50% | ||
| 取り扱い会社 | 
								 株式会社 よつば不動産 新潟県長岡市城内町3-8-17  | 
						||
| 情報登録日 | 2024/11/05 | 次回更新予定日 | 2025/11/18 | 
						| TEL: | 0258-32-4331 | |
|---|---|---|
| 所在地: | 新潟県長岡市城内町3-8-17 | |
| 交通: | 長岡駅徒歩5分 | |
| 営業時間: | 9:00~17:30/定休日:土日祝 | |
| 免許番号: | 新潟県知事(16)第337号 | |
| 所属団体名: | 公社新潟県宅地建物取引業協会 長岡支部 | |
| 取引態様: | 仲介 | |