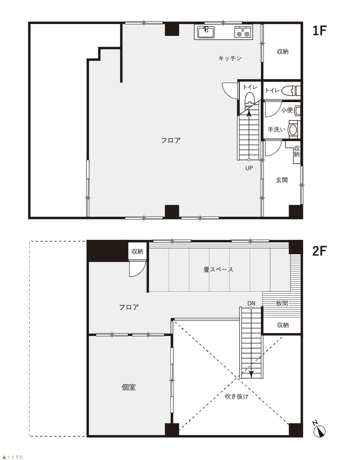
1階フリースペース+2階個室 ◆事務所利用や様々な用途に最適な多機能レイアウト◆
| 物件名
所在地 |
面積
間取り 所在階 |
築年数
方位 |
賃料
管理費等 共益費 |
敷金
保証金 礼金 |
種別
構造 |
|---|---|---|---|---|---|
| ADI福住ビル 新潟県長岡市福住2丁目4-44 | 152.24㎡ (46.05坪) - - | 54年 - | 16.5万円 なし あり | 2ヶ月 なし 1ヶ月 | 事務所 鉄筋コン |
| ◇◆収納充実・水回り完備。 すぐに使える長岡駅近オフィス◇◆ | |||
| 物件コード | 00127-100040 | ||
|---|---|---|---|
| 物件名 | ADI福住ビル | ||
| 交通 | 駅:上越新幹線 長岡駅から徒歩9分 | ||
| 所在地 | 新潟県長岡市福住2丁目4-44 | ||
| 物件種別 | 事務所 | ||
| 総戸数 | - | ||
| 構造 | 鉄筋コン | 階建 | 地上2階建 |
| 所在階/階数 | - | 号室 | - |
| 面積 | 152.24㎡ /46.05坪 | 方位 | - |
| 間取り | - | ||
| 賃料 | 16.5万円/月
|
管理費 | - |
| 礼金 | 1ヶ月
|
敷金 | 2ヶ月
|
| ほか初期費用 | - | その他諸費用 | - |
| 更新料 | - | 火災(家財)保険 | - |
| 共益費 |
3,300円
|
町内費 | - |
| 駐車場 | 3台駐車可能。賃料込み。 | バイク料金 | - |
| 鍵交換費 | - | 清掃料 | - |
| 更新事務手数料 | - | ||
| 保証区分 |
連帯保証人+緊急連絡先 |
||
| 保証会社 |
区分:指定なし
- |
||
| 連帯保証人 |
区分:要 - |
||
| 仲介手数料 | - | ||
| 築年月 | 1971年6月(築54年) | ||
| 利用制限 | 法人:可、事務所利用:可 | ||
| 学校区 | 阪之上小学校(451m)・東北中学校(1,281m) | ||
| 設備 | 融雪設備あり、エアコン、男女トイレ別、即引き渡し可、駐車場あり | ||
| 入居時期 | 即入居可 | ||
| 取引態様 | 貸主 | ||
| 備考 | - | ||
| 手数料負担割合/配分割合 | 貸主:-% 借主:-% / 元付:-% 客付:-% | ||
| 取り扱い会社 |
ADI 株式会社 新潟県長岡市古正寺町5-9 |
||
| 情報登録日 | 2026/03/04 | 次回更新予定日 | 2026/06/05 |
| TEL: | 090-4133-0001 | |
|---|---|---|
| 所在地: | 新潟県長岡市古正寺町5-9 | |
| 交通: | ||
| 営業時間: | 9:00~19:00/定休日:日曜日 | |
| 免許番号: | 新潟県知事(3)第5007号 | |
| 所属団体名: | 新潟県宅地建物取引業協会 | |
| 取引態様: | 貸主 | |