新潟県長岡市関東町3番地9 事務所 9.9万円の物件情報

物件名
所在地
面積
間取り
所在階
築年数
方位
賃料
管理費等
共益費
敷金
保証金
礼金
種別
構造
棚橋不動産 関東町ビル(旧斉木ビル)
201号室
新潟県長岡市関東町3番地9
78.42㎡
(23.72坪)
-
2階
52年
-
9.9万円
なし
なし
2ヶ月
なし
1ヶ月
事務所
鉄筋コン
  • 棚橋不動産 関東町ビル(旧斉木ビル)
    株式会社 棚橋不動産
  • この物件を問い合わせる/無料
  • TEL: 0258-31-1700 0258-31-1700

物件画像

外観
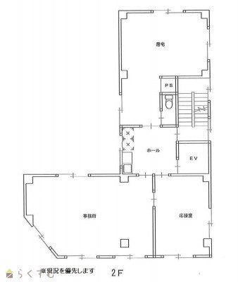
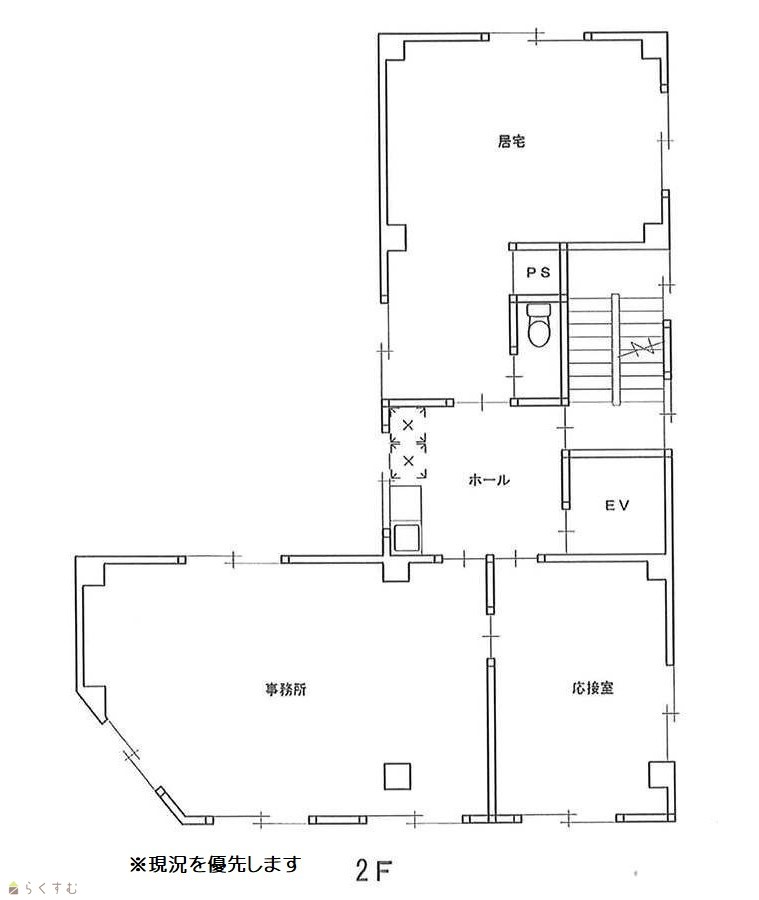
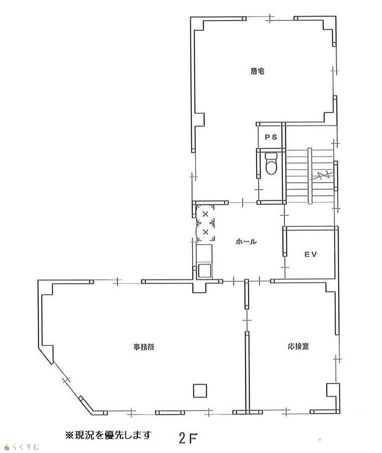
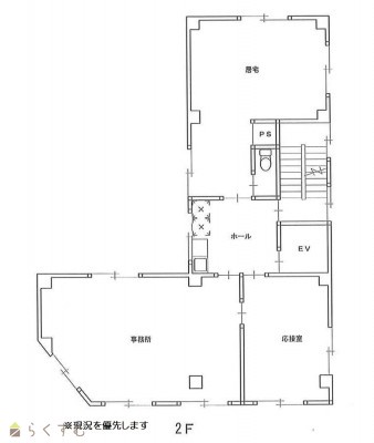
間取り
物件画像
※画像クリックで拡大表示
外観
物件画像
※画像クリックで拡大表示
間取図
詳細画像
物件画像
地図


物件概要

物件コード 00117-100075
物件名 棚橋不動産 関東町ビル(旧斉木ビル)
交通 駅:上越新幹線 長岡駅から徒歩8分
所在地 新潟県長岡市関東町3番地9
物件種別 事務所
総戸数 -
構造 鉄筋コン 階建 地上5階建
所在階/階数 2階/5階 号室 201号室
面積 78.42㎡ /23.72坪 方位 -
間取り -
賃料 9.9万円/月
管理費 -
礼金 1ヶ月
敷金 2ヶ月
ほか初期費用 - その他諸費用 -
更新料 - 火災(家財)保険 必須
共益費 - 町内費 -
駐車場 17,600円
1台17,600円屋根付
バイク料金 -
鍵交換費 - 清掃料 -
更新事務手数料 -
保証区分 連帯保証人のみ
保証会社 区分:指定なし
-
連帯保証人 区分:要
-
仲介手数料 99,000円
築年月 1974年2月(築52年)
利用制限 -
学校区 阪之上小学校(680m)・東中学校(1,026m)
設備 -
入居時期 相談
取引態様 仲介
備考 -
手数料負担割合/配分割合 貸主:-%   借主:100% / 元付:50%   客付:50%  
取り扱い会社

株式会社 棚橋不動産

新潟県長岡市泉1-7-1

情報登録日 2023/11/06 次回更新予定日 2026/06/05
  • 棚橋不動産 関東町ビル(旧斉木ビル)
    株式会社 棚橋不動産
  • この物件を問い合わせる/無料
  • TEL: 0258-31-1700 0258-31-1700

この物件の地図・周辺情報・行政情報

この物件の周辺情報・行政情報を詳しく見る
【周辺情報】
物件の近くにあるコンビニや銀行・学校など、アイコン付のマップで詳しく表示できます!
【行政情報】
水道料や下水道料・ガス料金など、暮らしに関係のある情報を表示しています。

担当取扱い店舗情報

取扱い店舗画像
株式会社 棚橋不動産
TEL: 0258-31-1700
所在地: 新潟県長岡市泉1-7-1
交通: 北長岡駅
営業時間: 8:30~17:30/定休日:土・日・祝
免許番号: 新潟県知事(5)第4749号
所属団体名: 全日本不動産協会 新潟県本部
取引態様: 仲介