新潟県三条市荒町12-30 店舗 10万円の物件情報

三条体育館目の前です!駐車場3台無料!

物件名
所在地
面積
間取り
所在階
築年数
方位
賃料
管理費等
共益費
敷金
保証金
礼金
種別
構造
モール荒町
1号室
新潟県三条市荒町12-30
57.8㎡
(17.48坪)
-
1階
59年
-
10万円
なし
なし
2ヶ月
なし
なし
店舗
木造鉄骨
  • モール荒町
    株式会社 ユタカ不動産
  • この物件を問い合わせる/無料
  • TEL: 0256-35-5825 0256-35-5825

物件画像

外観
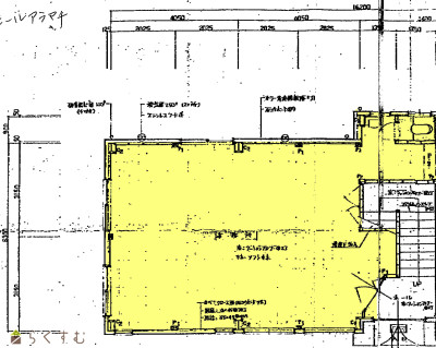
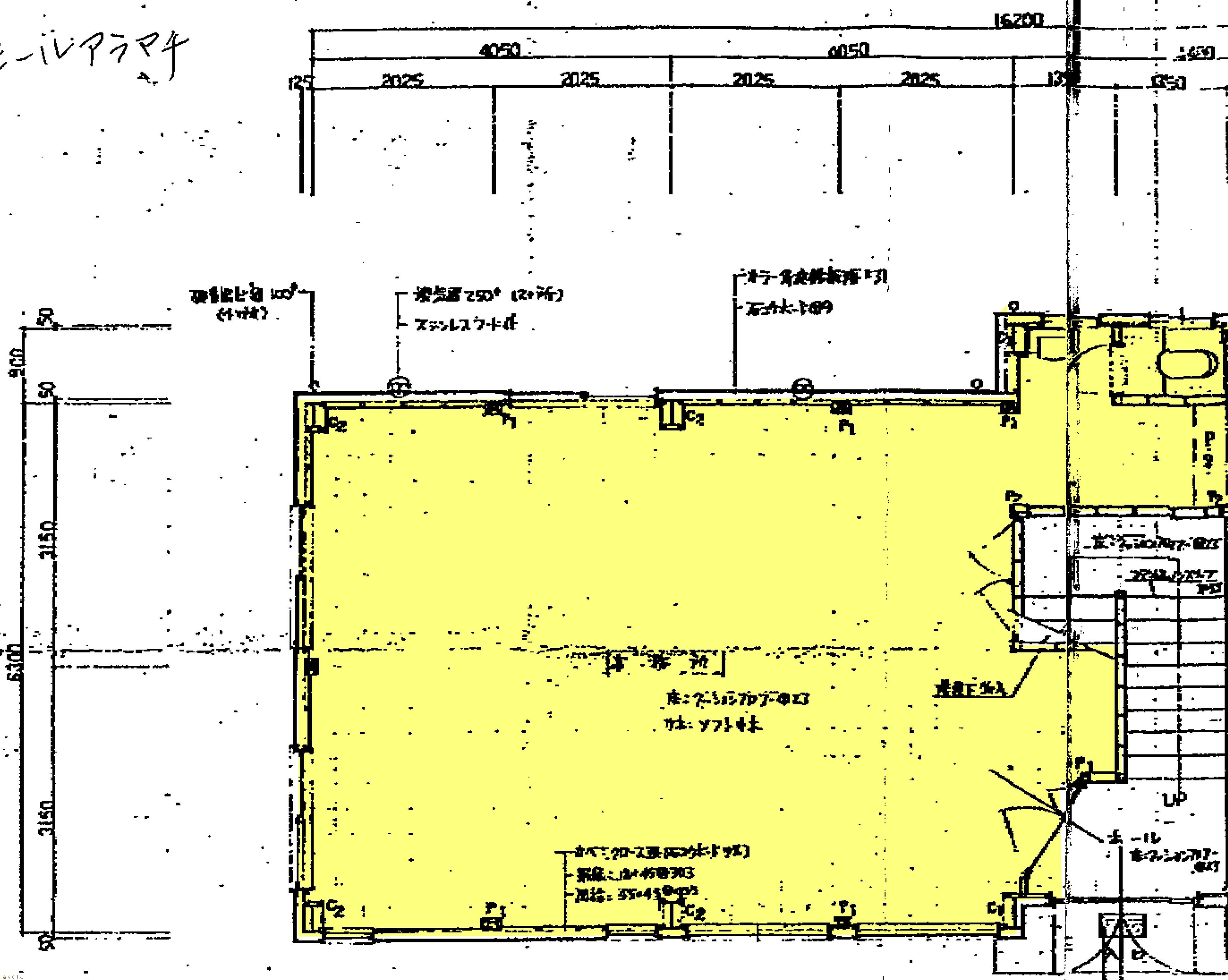
間取り
物件画像
※画像クリックで拡大表示
外観
物件画像
※画像クリックで拡大表示
間取り
詳細画像
物件画像
内装
物件画像
内装
物件画像
洗面所


物件概要

物件コード 00052-100239
物件名 モール荒町
交通 駅:弥彦線 北三条駅から徒歩9分、バス:体育文化センターから徒歩1分
所在地 新潟県三条市荒町12-30
物件種別 店舗
総戸数 4戸
構造 木造鉄骨 階建 地上2階建
所在階/階数 1階/2階 号室 1号室
面積 57.8㎡ /17.48坪 方位 -
間取り -
賃料 10万円/月
管理費 -
礼金 -
敷金 2ヶ月
ほか初期費用 - その他諸費用 -
更新料 - 火災(家財)保険 加入必須
共益費 - 町内費 -
駐車場 3台無料 バイク料金 -
鍵交換費 - 清掃料 -
更新事務手数料 -
保証区分 連帯保証人+保証会社
保証会社 区分:加入要
保証会社名:その他 (ジェイリース株式会社)
初回保証料:月額総額の100% 継続保証料(年):月額総額の10% ※必須※
連帯保証人 区分:要
-
仲介手数料 110,000円
築年月 1967年4月(築59年)
利用制限 事務所利用:可
学校区 裏館小学校(897m)・第三中学校(520m)
設備 1階、エアコン、居抜き、給湯、駐車場あり
入居時期 2026年9月以降
取引態様 仲介
備考 美容院居抜き店舗として募集します。
外装は外壁オレンジ色箇所は借主様でお好きな外装に変えて頂く事が出来ます。
※7月末迄営業中ですがご内覧希望の際は事前にお問合せください。
手数料負担割合/配分割合 貸主:0%   借主:100% / 元付:50%   客付:50%  
取り扱い会社

株式会社 ユタカ不動産

新潟県三条市旭町1丁目1-19-3ユタカビル

情報登録日 2026/04/06 次回更新予定日 2026/06/05
  • モール荒町
    株式会社 ユタカ不動産
  • この物件を問い合わせる/無料
  • TEL: 0256-35-5825 0256-35-5825

この物件の地図・周辺情報・行政情報

この物件の周辺情報・行政情報を詳しく見る
【周辺情報】
物件の近くにあるコンビニや銀行・学校など、アイコン付のマップで詳しく表示できます!
【行政情報】
水道料や下水道料・ガス料金など、暮らしに関係のある情報を表示しています。

担当取扱い店舗情報

取扱い店舗画像
株式会社 ユタカ不動産
TEL: 0256-35-5825
所在地: 新潟県三条市旭町1丁目1-19-3ユタカビル
交通: 東三条駅
営業時間: 9:00~18:00/定休日:火曜・祭日
免許番号: 新潟見知事(9)第3203号
所属団体名: 新潟県宅地建物取引協会 三条支部
取引態様: 仲介
ホームページ: http://www.yutakafudousan.com