新潟県三条市神明町2-1 店舗 7.7万円の物件情報

1階事務所兼店舗

物件名
所在地
面積
間取り
所在階
築年数
方位
賃料
管理費等
共益費
敷金
保証金
礼金
種別
構造
パルム2号館
105号室
新潟県三条市神明町2-1
63.75㎡
(19.28坪)
-
1階
38年
-
7.7万円
なし
なし
7万円
なし
7万円
店舗
鉄骨鉄筋コン
  • パルム2号館
    株式会社 ユタカ不動産
  • この物件を問い合わせる/無料
  • TEL: 0256-35-5825 0256-35-5825

物件画像

外観
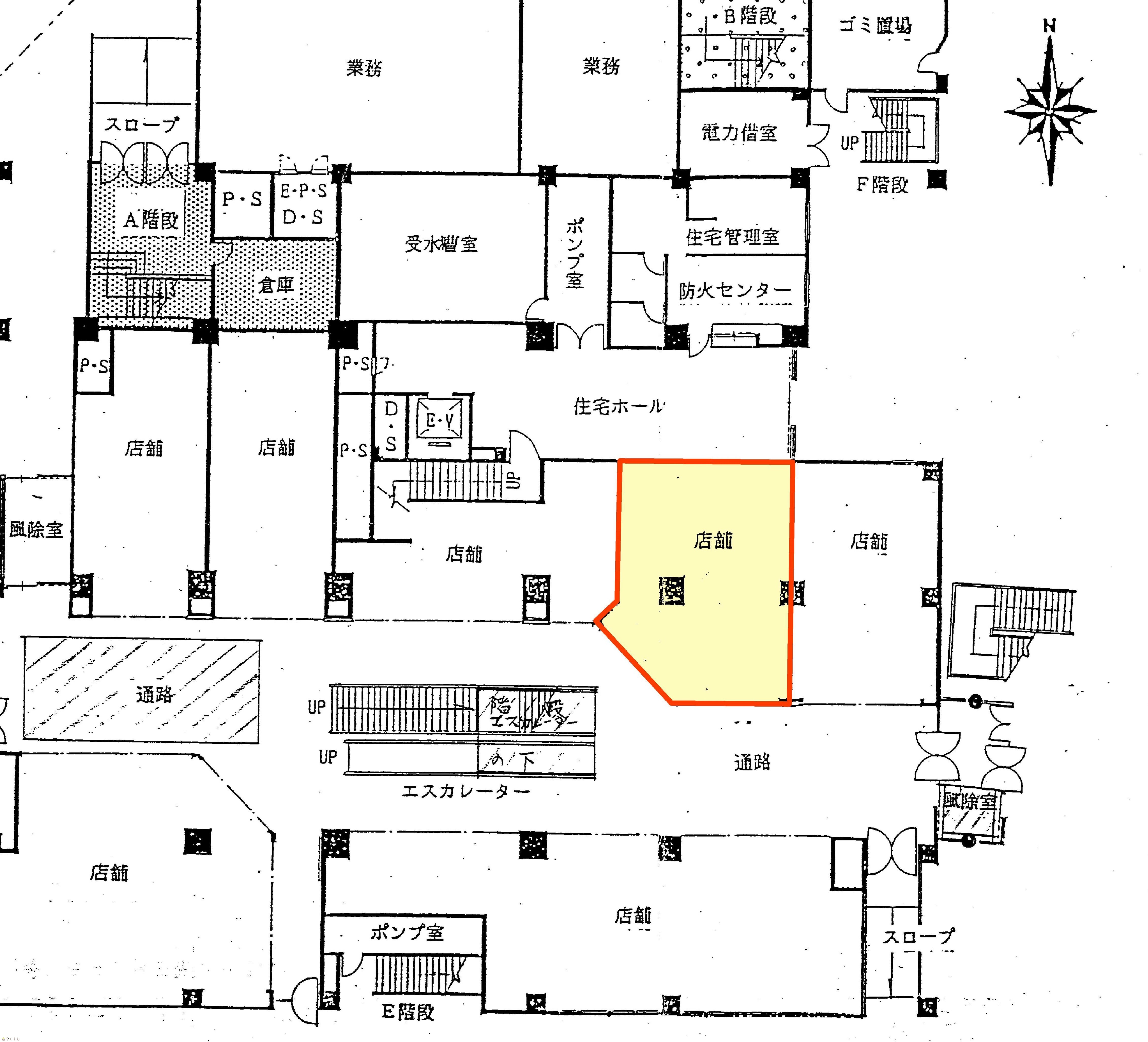
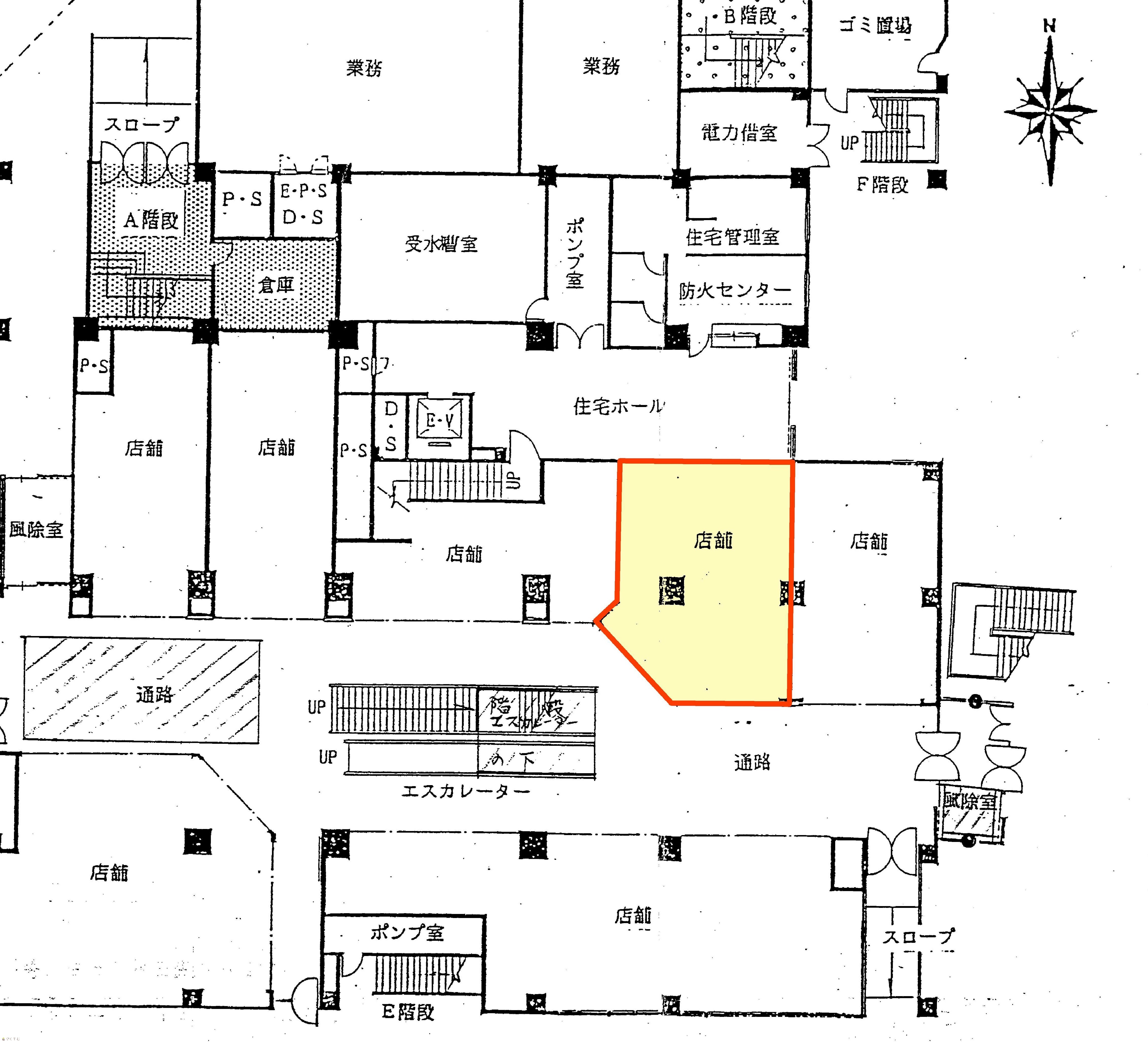
間取り
物件画像
※画像クリックで拡大表示
外観
物件画像
※画像クリックで拡大表示
図面
詳細画像
物件画像
入口1
物件画像
入口2
物件画像
内装1
物件画像
内装2
物件画像
内装3
物件画像
内装4
物件画像
内装5
物件画像
内装6
物件画像
内装7
物件画像
内装8
物件画像
内装9
360度画像
洋室
※下のリンクをクリックすると、上の画像が切り替わります。

インターネットエクスプローラーでは360°画像は閲覧できません。それ以外のブラウザでご覧下さい。

360度画像を詳しく見る


物件概要

2025年11月19日以降内覧可★
物件コード 00052-100155
物件名 パルム2号館
交通 駅:弥彦線 北三条駅から徒歩9分、バス:三條信用組合中央支店から徒歩2分
所在地 新潟県三条市神明町2-1
物件種別 店舗
総戸数 -
構造 鉄骨鉄筋コン 階建 地上14階建
所在階/階数 1階/14階 号室 105号室
面積 63.75㎡ /19.28坪 方位 -
間取り -
賃料 7.7万円/月
管理費 -
礼金 7万円
敷金 7万円
ほか初期費用 - その他諸費用 -
更新料 - 火災(家財)保険 加入必須
共益費 - 町内費 -
駐車場 近有 13,200円/月 バイク料金 -
鍵交換費 - 清掃料 -
更新事務手数料 -
保証区分 連帯保証人+保証会社
保証会社 区分:加入要
保証会社名:その他 (ジェイリース株式会社)
初回保証料:月額総額の100%。 継続保証料(年):月額総額の10%。
連帯保証人 区分:要
-
仲介手数料 77,000円
築年月 1988年3月(築38年)
利用制限 事務所利用:可
学校区 裏館小学校(1,195m)・第三中学校(1,032m)
設備 1階
入居時期 2025年12月上旬
取引態様 仲介
備考 トイレは共用
手数料負担割合/配分割合 貸主:0%   借主:100% / 元付:50%   客付:50%  
取り扱い会社

株式会社 ユタカ不動産

新潟県三条市旭町1丁目1-19-3ユタカビル

情報登録日 2025/08/22 次回更新予定日 2026/06/05
  • パルム2号館
    株式会社 ユタカ不動産
  • この物件を問い合わせる/無料
  • TEL: 0256-35-5825 0256-35-5825

この物件の地図・周辺情報・行政情報

この物件の周辺情報・行政情報を詳しく見る
【周辺情報】
物件の近くにあるコンビニや銀行・学校など、アイコン付のマップで詳しく表示できます!
【行政情報】
水道料や下水道料・ガス料金など、暮らしに関係のある情報を表示しています。

担当取扱い店舗情報

取扱い店舗画像
株式会社 ユタカ不動産
TEL: 0256-35-5825
所在地: 新潟県三条市旭町1丁目1-19-3ユタカビル
交通: 東三条駅
営業時間: 9:00~18:00/定休日:火曜・祭日
免許番号: 新潟見知事(9)第3203号
所属団体名: 新潟県宅地建物取引協会 三条支部
取引態様: 仲介
ホームページ: http://www.yutakafudousan.com