新潟県長岡市蓮潟4丁目9-15 事務所 15万円の物件情報

物件名
所在地
面積
間取り
所在階
築年数
方位
賃料
管理費等
共益費
敷金
保証金
礼金
種別
構造
【駐車場5台付】蓮潟4丁目 貸事務所 
新潟県長岡市蓮潟4丁目9-15
96.88㎡
(29.3坪)
-
-
34年
-
15万円
なし
なし
3ヶ月
なし
なし
事務所
鉄骨
  • 【駐車場5台付】蓮潟4丁目 貸事務所 
    有限会社 高治企画 
  • この物件を問い合わせる/無料
  • TEL: 0258-27-6599 0258-27-6599

物件画像

外観
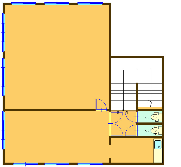
間取り
物件画像
※画像クリックで拡大表示
外観
物件画像
※画像クリックで拡大表示
間取り
詳細画像
物件画像
2F
物件画像
2F
物件画像
2F
物件画像
2F
物件画像
階段
物件画像
トイレ
物件画像
トイレ
物件画像
給湯室
物件画像
トイレ
物件画像
印刷用地図


物件概要

物件コード 00051-100157
物件名 【駐車場5台付】蓮潟4丁目 貸事務所 
交通 駅:長岡から徒歩56分、バス:長岡造形大学前から徒歩4分
所在地 新潟県長岡市蓮潟4丁目9-15
物件種別 事務所
総戸数 -
構造 鉄骨 階建 地上2階建
所在階/階数 - 号室 -
面積 96.88㎡ /29.3坪 方位 -
間取り -
賃料 15万円/月
管理費 -
礼金 -
敷金 3ヶ月
ほか初期費用 - その他諸費用 -
更新料 - 火災(家財)保険 要相談
共益費 - 町内費 実費
駐車場
4台無料+車庫1台分あり
バイク料金 -
鍵交換費 17,600円
エントランス玄関のみ
清掃料 -
更新事務手数料 -
保証区分 連帯保証人のみ
保証会社 区分:指定なし
-
連帯保証人 区分:要
-
仲介手数料 165,000円
築年月 1992年4月(築34年)
利用制限 -
学校区 上川西小学校(965m)・江陽中学校(1,549m)
設備 融雪設備あり、男女トイレ別、給湯、駐車場あり
入居時期 2026年7月中旬
取引態様 仲介
備考 現況優先
手数料負担割合/配分割合 貸主:0%   借主:100% / 元付:50%   客付:50%  
取り扱い会社

有限会社 高治企画 

新潟県長岡市荻野1丁目6番7号

情報登録日 2026/03/25 次回更新予定日 2026/06/05
  • 【駐車場5台付】蓮潟4丁目 貸事務所 
    有限会社 高治企画 
  • この物件を問い合わせる/無料
  • TEL: 0258-27-6599 0258-27-6599

この物件の地図・周辺情報・行政情報

この物件の周辺情報・行政情報を詳しく見る
【周辺情報】
物件の近くにあるコンビニや銀行・学校など、アイコン付のマップで詳しく表示できます!
【行政情報】
水道料や下水道料・ガス料金など、暮らしに関係のある情報を表示しています。

担当取扱い店舗情報

取扱い店舗画像
有限会社 高治企画 
TEL: 0258-27-6599
所在地: 新潟県長岡市荻野1丁目6番7号
交通: JR長岡駅、バス(越後交通)
営業時間: 9:00~17:00/定休日:土曜・日曜・祭日(3月は無休)
免許番号: 新潟県知事(6)第4078号
所属団体名: 新潟県宅地建物取引協会 長岡支部
取引態様: 仲介
ホームページ: http://www.takaharu-k.co.jp