新潟県長岡市台町1-8-13ウェステリア台町1・2F 店舗 16.5万円の物件情報

長岡駅東口近く♪

物件名
所在地
面積
間取り
所在階
築年数
方位
賃料
管理費等
共益費
敷金
保証金
礼金
種別
構造
ウェステリア台町 1・2階
新潟県長岡市台町1-8-13ウェステリア台町1・2F
306.1㎡
(92.59坪)
-
1.2階
28年
-
16.5万円
なし
なし
1ヶ月
なし
なし
店舗
鉄骨
  • ウェステリア台町 1・2階
    株式会社 高野不動産販売
  • この物件を問い合わせる/無料
  • TEL: 0258-34-7111 0258-34-7111

物件画像

外観
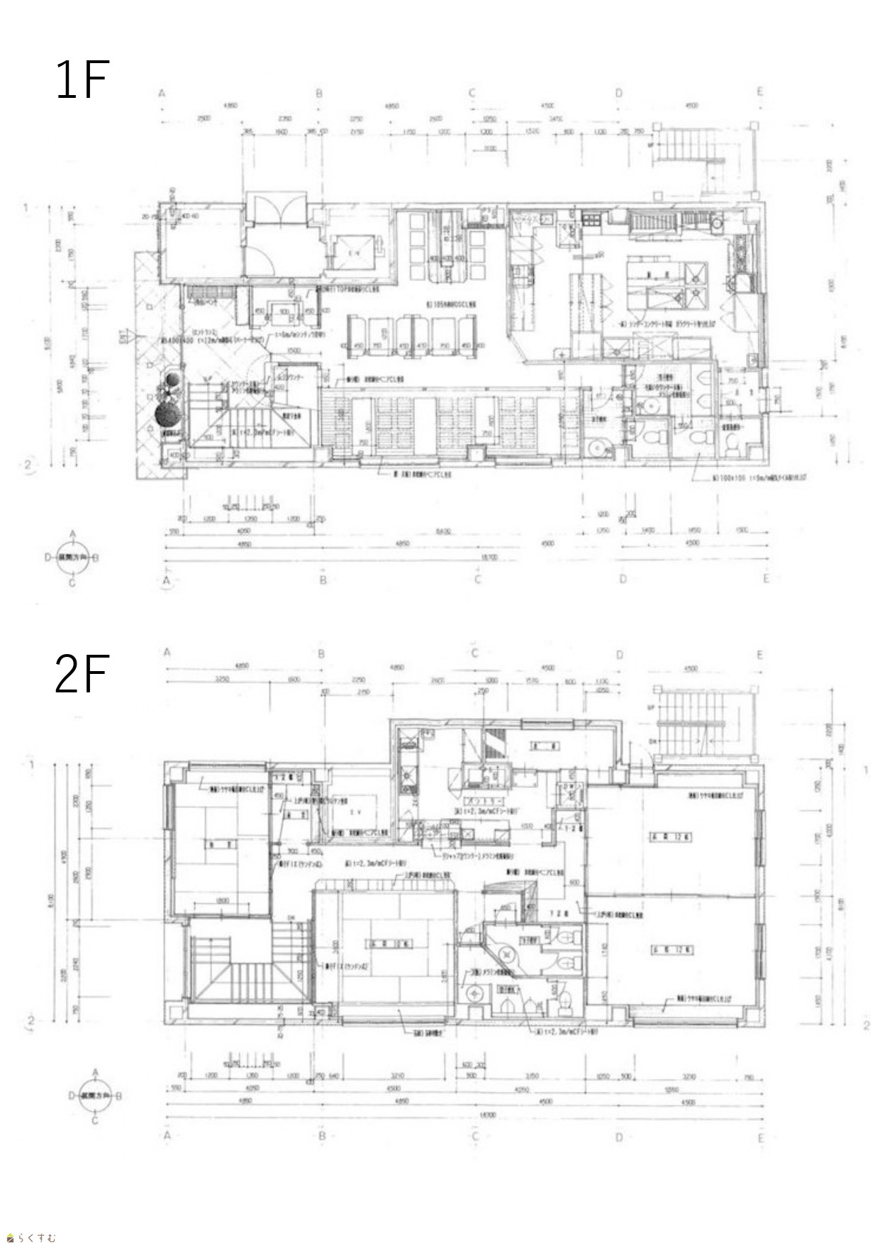
間取り
物件画像
※画像クリックで拡大表示
外観
物件画像
※画像クリックで拡大表示
間取り
詳細画像
物件画像
入口
物件画像
店舗内
物件画像
店舗内
物件画像
厨房
物件画像
厨房
物件画像
手洗い
物件画像
トイレ
物件画像
2階
物件画像
2階店舗内
物件画像
2階店舗内
物件画像
2階店舗内
物件画像
2階店舗内
物件画像
地図画像


物件概要

物件コード 00041-100447
物件名 ウェステリア台町 1・2階
交通 駅:信越線 長岡駅から徒歩6分、バス:長岡駅東口から徒歩3分
所在地 新潟県長岡市台町1-8-13ウェステリア台町1・2F
物件種別 店舗
総戸数 6戸
構造 鉄骨 階建 地上5階建
所在階/階数 1.2階/5階 号室 -
面積 306.1㎡ /92.59坪 方位 -
間取り -
賃料 16.5万円/月
管理費 -
礼金 -
敷金 1ヶ月
ほか初期費用 - その他諸費用 -
更新料 - 火災(家財)保険 別途要加入
共益費 - 町内費 -
駐車場 - バイク料金 -
鍵交換費 - 清掃料 -
更新事務手数料 -
保証区分 連帯保証人+保証会社
保証会社 区分:加入要
保証会社名:その他 (USEN)
-
家賃保証金 220,000円
連帯保証人 区分:要
-
仲介手数料 165,000円
築年月 1997年10月(築28年)
利用制限 法人:可、ペット:不可、事務所利用:可
学校区 阪之上小学校(363m)・南中学校(799m)
設備 1階、2階以上、融雪設備あり、エアコン、男女トイレ別、飲食店可、居抜き
入居時期 相談
取引態様 仲介
備考 -
手数料負担割合/配分割合 貸主:-%   借主:100% / 元付:50%   客付:50%  
取り扱い会社

株式会社 高野不動産販売

新潟県長岡市柏町1丁目4-33

情報登録日 2024/06/25 次回更新予定日 2026/06/05
  • ウェステリア台町 1・2階
    株式会社 高野不動産販売
  • この物件を問い合わせる/無料
  • TEL: 0258-34-7111 0258-34-7111

この物件の地図・周辺情報・行政情報

この物件の周辺情報・行政情報を詳しく見る
【周辺情報】
物件の近くにあるコンビニや銀行・学校など、アイコン付のマップで詳しく表示できます!
【行政情報】
水道料や下水道料・ガス料金など、暮らしに関係のある情報を表示しています。
デイリーヤマザキ 長岡駅東口店(コンビニ)まで680m
セブン-イレブン アオーレ長岡店(コンビニ)まで520m
原信 今朝白店(スーパー)まで800m

※カメラのアイコンがある場合は、マウスをポイントするとその施設の画像がご覧いただけます。


担当取扱い店舗情報

取扱い店舗画像
株式会社 高野不動産販売
TEL: 0258-33-7711
所在地: 新潟県長岡市柏町1丁目4-33
交通: 長岡駅
営業時間: 9:00~17:30/定休日:土曜日・日曜日・祝日・お盆・年末年始
免許番号: 新潟県知事(1)第5568号
所属団体名: (公社)新潟県宅地建物取引業協会,(公社)首都圏不動産公正取引協議会,(公財)日本賃貸住宅管理協会
取引態様: 仲介
ホームページ: https://www.tknf.co.jp