新潟県長岡市栄町2丁目7-15 店舗 22万円の物件情報

栃尾の医院建物 介護施設の利用も可

物件名
所在地
面積
間取り
所在階
築年数
方位
賃料
管理費等
共益費
敷金
保証金
礼金
種別
構造
栃尾 栄町2丁目 医院
新潟県長岡市栄町2丁目7-15
314.55㎡
(95.15坪)
-
-
23年
-
22万円
10,000円/月
なし
3ヶ月
なし
なし
店舗
鉄骨
  • 栃尾 栄町2丁目 医院
    ふどうさんの相談所 (ライフデザイン合同会社 イオン長岡店)
  • この物件を問い合わせる/無料
  • TEL: 0258-94-4370 0258-94-4370

物件画像

外観
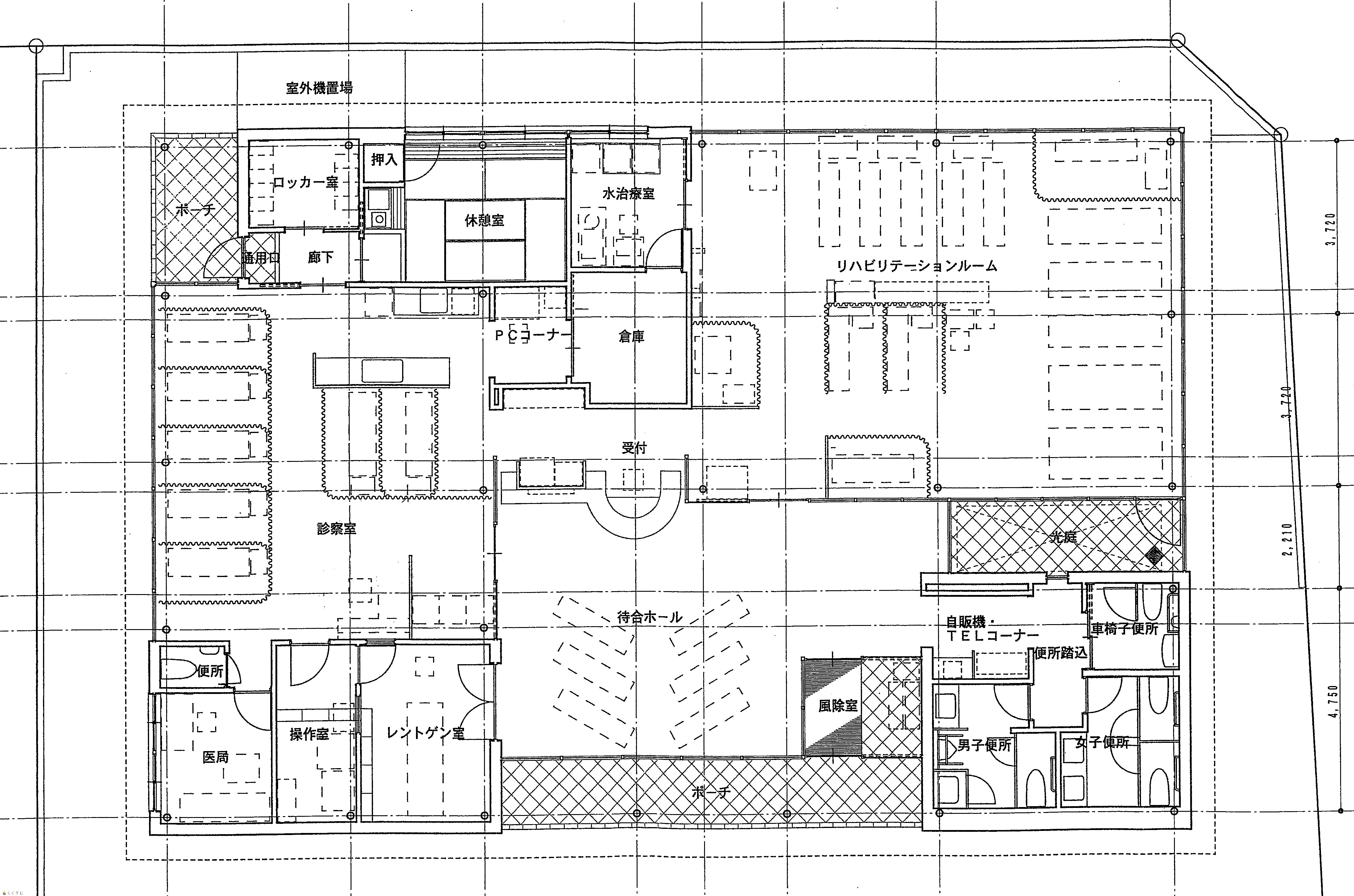
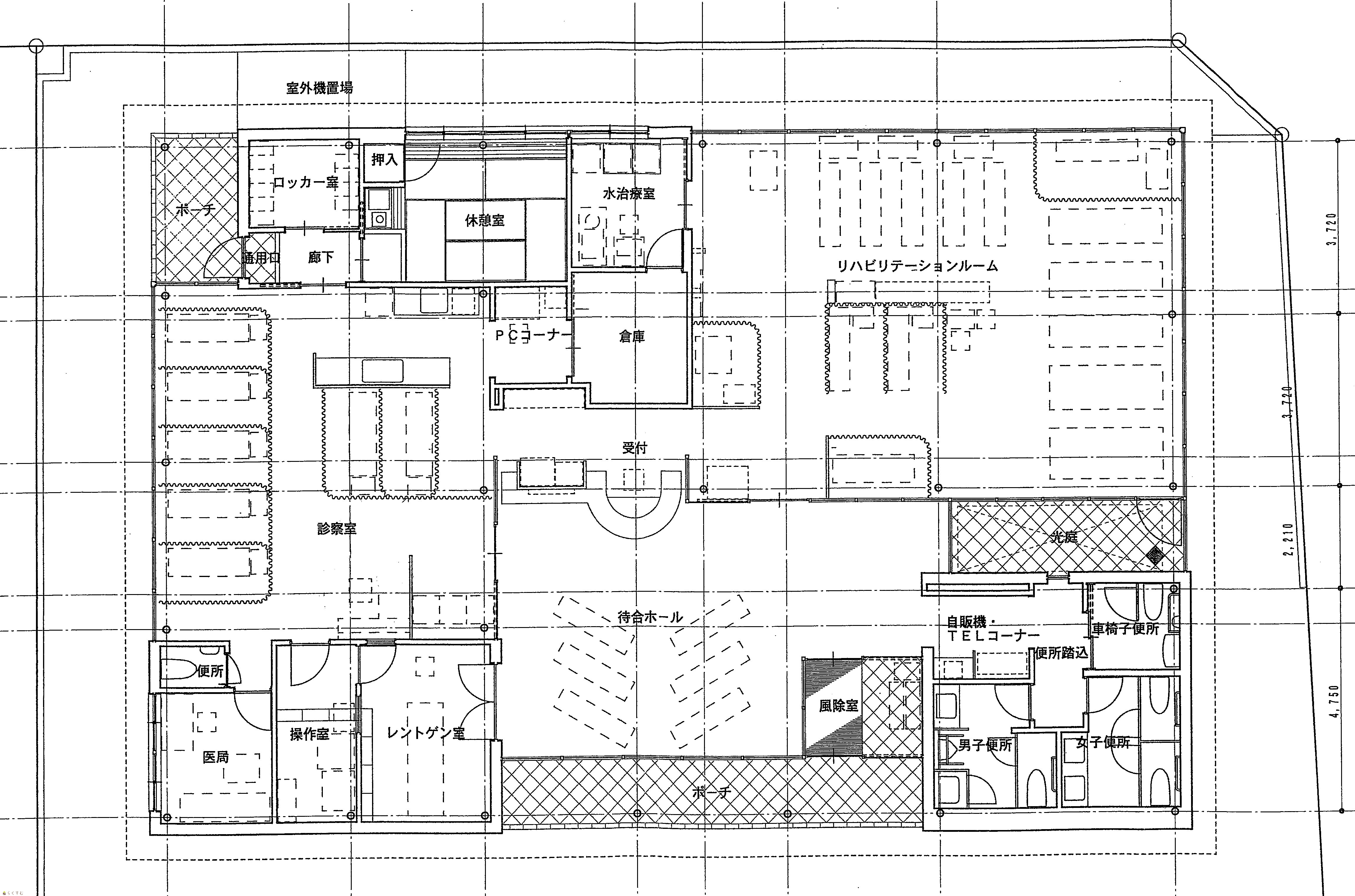
間取り
物件画像
※画像クリックで拡大表示
外観
物件画像
※画像クリックで拡大表示
間取り
詳細画像
物件画像
外観
物件画像
建物内部
物件画像
建物内部
物件画像
トイレ
物件画像
トイレ
物件画像
トイレ
物件画像
内装
物件画像
和室
物件画像
外観
物件画像
印刷用地図


物件概要

物件コード 00039-100104
物件名 栃尾 栄町2丁目 医院
交通 駅:信越線 見附駅から徒歩145分、バス:警察署前から徒歩4分
所在地 新潟県長岡市栄町2丁目7-15
物件種別 店舗
総戸数 -
構造 鉄骨 階建 地上1階建
所在階/階数 - 号室 -
面積 314.55㎡ /95.15坪 方位 -
間取り -
賃料 22万円/月
管理費 10,000円/月
礼金 - 敷金 3ヶ月
ほか初期費用 - その他諸費用 -
更新料 30,000円
火災(家財)保険 -
共益費 - 町内費 -
駐車場 - バイク料金 -
鍵交換費 - 清掃料 -
更新事務手数料 -
保証区分 保証会社のみ
保証会社 区分:加入要
保証会社名:ジェイリース
jakinai 初回保証料100%+継続保証料(毎年)10%
家賃保証金 230,000円
連帯保証人 区分:不要
-
仲介手数料 242,000円
築年月 2002年12月(築23年)
利用制限 法人:可、学生:不可、単身者:不可、二人入居:不可、シニア(60歳以上)入居:不可、子供:不可、ペット:不可、楽器:不可、事務所利用:可、ルームシェア:不可
学校区 栃尾東小学校(488m)・刈谷田中学校(1,340m)
設備 1階、エアコン
入居時期 相談
取引態様 貸主
備考 -
手数料負担割合/配分割合 貸主:-%   借主:100% / 元付:50%   客付:50%  
取り扱い会社

ふどうさんの相談所 (ライフデザイン合同会社 イオン長岡店)

新潟県長岡市古正寺1-249-1イオン長岡店3F

情報登録日 2026/05/14 次回更新予定日 2026/06/05
  • 栃尾 栄町2丁目 医院
    ふどうさんの相談所 (ライフデザイン合同会社 イオン長岡店)
  • この物件を問い合わせる/無料
  • TEL: 0258-94-4370 0258-94-4370

この物件の地図・周辺情報・行政情報

この物件の周辺情報・行政情報を詳しく見る
【周辺情報】
物件の近くにあるコンビニや銀行・学校など、アイコン付のマップで詳しく表示できます!
【行政情報】
水道料や下水道料・ガス料金など、暮らしに関係のある情報を表示しています。

担当取扱い店舗情報

取扱い店舗画像
ふどうさんの相談所 (ライフデザイン合同会社 イオン長岡店)
TEL: 0258-94-4370
所在地: 新潟県長岡市古正寺1-249-1イオン長岡店3F
交通: 長岡駅
営業時間: 10:00~20:00/定休日:年末年始・特別日はお休みいたします
免許番号: 新潟県知事(3)第5090号
所属団体名: 全日本不動産協会 新潟県本部
取引態様: 貸主
ホームページ: http://life-dn.com