新潟県柏崎市北半田2丁目1-14新栄ビル 事務所 40万円の物件情報

1~3階の1棟貸 倉庫・事務所として

物件名
所在地
面積
間取り
所在階
築年数
方位
賃料
管理費等
共益費
敷金
保証金
礼金
種別
構造
1棟貸 北半田 国道252号線沿い 倉庫付き貸事務所
新潟県柏崎市北半田2丁目1-14新栄ビル
381.59㎡
(115.43坪)
-
-
44年
-
40万円
なし
なし
1ヶ月
なし
なし
事務所
鉄骨
  • 1棟貸 北半田 国道252号線沿い 倉庫付き貸事務所
    株式会社 ai-will
  • この物件を問い合わせる/無料
  • TEL: 0257-35-5370 0257-35-5370

物件画像

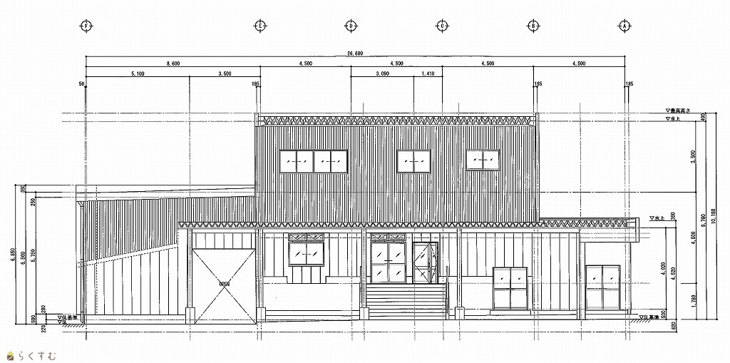
外観
間取り
物件画像
※画像クリックで拡大表示
外観
物件画像
※画像クリックで拡大表示
間取り
詳細画像
物件画像
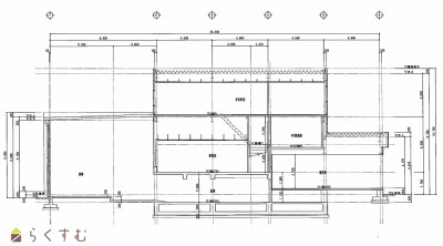
1F事務所・テナント
物件画像
中2F倉庫
物件画像
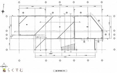
2F事務所(リフォーム後完成予定図)
物件画像
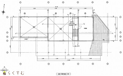
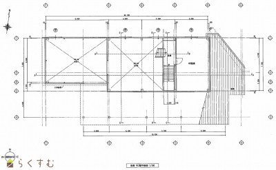
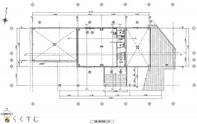
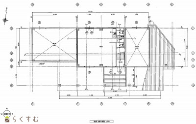
3F間取図(リフォーム後完成予定図)
物件画像
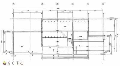
階層断面図
物件画像
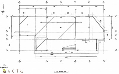
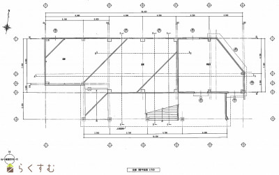
3F(リフォーム中)
物件画像
3F(リフォーム中)
物件画像
外観
物件画像
1F店舗としても可能
物件画像
中2F倉庫
物件画像
国道側駐車場
物件画像
裏側駐車場
物件画像
外観
物件画像
国道添い
物件画像
印刷用地図


物件概要

駐車場30~40台可能
物件コード 00037-100765
物件名 1棟貸 北半田 国道252号線沿い 倉庫付き貸事務所
交通 駅:信越線 茨目駅から徒歩20分、バス:北半田1丁目から徒歩4分
所在地 新潟県柏崎市北半田2丁目1-14新栄ビル
物件種別 事務所
総戸数 1戸
構造 鉄骨 階建 地上3階建
所在階/階数 - 号室 -
面積 381.59㎡ /115.43坪 方位 -
間取り -
賃料 40万円/月
管理費 -
礼金 - 敷金 1ヶ月
ほか初期費用 - その他諸費用 -
更新料 - 火災(家財)保険 別途ご加入ください
共益費 - 町内費 -
駐車場
バイク料金 -
鍵交換費 - 清掃料 -
更新事務手数料 11,000円
保証区分 保証会社+緊急連絡先
保証会社 区分:加入要
保証会社名:ジェイリース
事業用プランは保証料賃料の100%となります
家賃保証金 400,000円
連帯保証人 区分:不要
-
仲介手数料 440,000円
築年月 1982年1月(築44年)
利用制限 法人:可、事務所利用:可
学校区 比角小学校(566m)・第二中学校(857m)
設備 男女トイレ別、駐車場あり
入居時期 相談
取引態様 仲介
備考 -
手数料負担割合/配分割合 貸主:-%   借主:100% / 元付:50%   客付:50%  
取り扱い会社

株式会社 ai-will

新潟県柏崎市田中10-31

情報登録日 2026/01/09 次回更新予定日 2026/03/07
  • 1棟貸 北半田 国道252号線沿い 倉庫付き貸事務所
    株式会社 ai-will
  • この物件を問い合わせる/無料
  • TEL: 0257-35-5370 0257-35-5370

この物件の地図・周辺情報・行政情報

この物件の周辺情報・行政情報を詳しく見る
【周辺情報】
物件の近くにあるコンビニや銀行・学校など、アイコン付のマップで詳しく表示できます!
【行政情報】
水道料や下水道料・ガス料金など、暮らしに関係のある情報を表示しています。
ローソン 柏崎インター店(コンビニ)まで320m
ピアレマート 柏崎店(スーパー)まで510m
クスリのアオキ 柏崎中央店(ドラッグストア)まで360m
JA新潟厚生連 柏崎総合医療センター(病院)まで580m
大光銀行 柏崎南支店(銀行)まで350m
第四北越銀行 柏崎南支店(銀行)まで310m

※カメラのアイコンがある場合は、マウスをポイントするとその施設の画像がご覧いただけます。


担当取扱い店舗情報

取扱い店舗画像
株式会社 ai-will
TEL: 0257-35-5370
所在地: 新潟県柏崎市田中10-31
交通: 国道8号線よりすぐ
営業時間: 平日9:00~18:00土日祝10:00~16:0/定休日:当社規定 (お盆・年末年始・GW)
免許番号: 新潟県知事(4)4821号
所属団体名: 新潟県宅地建物取引協会 柏崎支部
取引態様: 仲介
ホームページ: http://www.ai-will.co.jp/