新潟県長岡市下山2丁目2421−2 事務所 7.7万円の物件情報

【駐車場2台付き(追加駐車場相談可)】事務所としても店舗としても利用可能!フェニックス大橋近くでアクセス抜群♬キッチン・水洗トイレ付きです(^^♪

物件名
所在地
面積
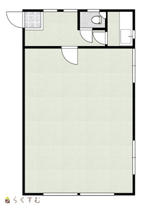
間取り
所在階
築年数
方位
賃料
管理費等
共益費
敷金
保証金
礼金
種別
構造
ザ・ライトウィング 1階 事務所・店舗
103号室
新潟県長岡市下山2丁目2421−2
46.68㎡
(14.12坪)
-
1階
39年
-
7.7万円
なし
なし
14万円
なし
7.7万円
事務所
木造
  • ザ・ライトウィング 1階 事務所・店舗
    株式会社 長岡総合開発
  • この物件を問い合わせる/無料
  • TEL: 0258-46-8777 0258-46-8777

物件画像

外観
間取り
物件画像
※画像クリックで拡大表示
外観
物件画像
※画像クリックで拡大表示
間取り
詳細画像
物件画像
室内写真
物件画像
室内写真
物件画像
流し台・洗濯機置場
物件画像
温水洗浄便座
物件画像
室内写真
物件画像
室内写真
物件画像
室内写真
物件画像
玄関
物件画像
室内写真


物件概要

ご見学のお申込み、またはご不明な点がある場合は、お問い合わせフォームよりお気軽にご相談ください♪お電話でもかまいません。
物件コード 00030-100983
物件名 ザ・ライトウィング 1階 事務所・店舗
交通 駅:上越線 宮内駅から徒歩44分、バス:下山から徒歩2分
所在地 新潟県長岡市下山2丁目2421−2
物件種別 事務所
総戸数 -
構造 木造 階建 地上2階建
所在階/階数 1階/2階 号室 103号室
面積 46.68㎡ /14.12坪 方位 -
間取り -
賃料 7.7万円/月
管理費 -
礼金 7.7万円
敷金 14万円
ほか初期費用 - その他諸費用 -
更新料 - 火災(家財)保険 別途要加入
共益費 - 町内費 別途実費
駐車場 2台込み バイク料金 -
鍵交換費 - 清掃料 -
更新事務手数料 -
保証区分 連帯保証人+保証会社
保証会社 区分:加入要
保証会社名:ジェイリース
初回保証料:月額総賃料の100%(契約時)・継続保証料:月額総賃料の10%(毎年)
家賃保証金 77,000円
連帯保証人 区分:要
-
仲介手数料 77,000円
築年月 1987年5月(築39年)
利用制限 法人:可、事務所利用:可
学校区 希望が丘小学校(433m)・西中学校(865m)
設備 1階、融雪設備あり、即引き渡し可、スケルトン、駐車場あり
入居時期 即入居可
取引態様 仲介
備考 ・敷地内駐車場2台付です。(駐車場追加の場合はご相談ください。1台/3,300円※要空き確認)

※内装諸設備を変更される場合は借主者様にてご負担ください。
手数料負担割合/配分割合 貸主:-%   借主:100% / 元付:-%   客付:-%  
取り扱い会社

株式会社 長岡総合開発

新潟県長岡市南七日町89-21

情報登録日 2026/04/07 次回更新予定日 2026/06/05
  • ザ・ライトウィング 1階 事務所・店舗
    株式会社 長岡総合開発
  • この物件を問い合わせる/無料
  • TEL: 0258-46-8777 0258-46-8777

この物件の地図・周辺情報・行政情報

この物件の周辺情報・行政情報を詳しく見る
【周辺情報】
物件の近くにあるコンビニや銀行・学校など、アイコン付のマップで詳しく表示できます!
【行政情報】
水道料や下水道料・ガス料金など、暮らしに関係のある情報を表示しています。

担当取扱い店舗情報

取扱い店舗画像
株式会社 長岡総合開発
TEL: 0258-46-8777
所在地: 新潟県長岡市南七日町89-21
交通: バス停「南七日町」徒歩3分
営業時間: 9:00~18:00/定休日:日曜・祭日
免許番号: 新潟県知事(10)2876号
所属団体名: 新潟県宅地建物取引業協会 長岡支部
取引態様: 仲介
ホームページ: http://www.nagaoka-sk.co.jp