新潟県長岡市下山3丁目1180 駐車場 0.55万円の物件情報

【№3】 即、御利用できます。前面道路も融雪機能あり 車の通りが少ないのでゆっくり駐車できます

物件名
所在地
面積
間取り
所在階
築年数
方位
賃料
管理費等
共益費
敷金
保証金
礼金
種別
構造
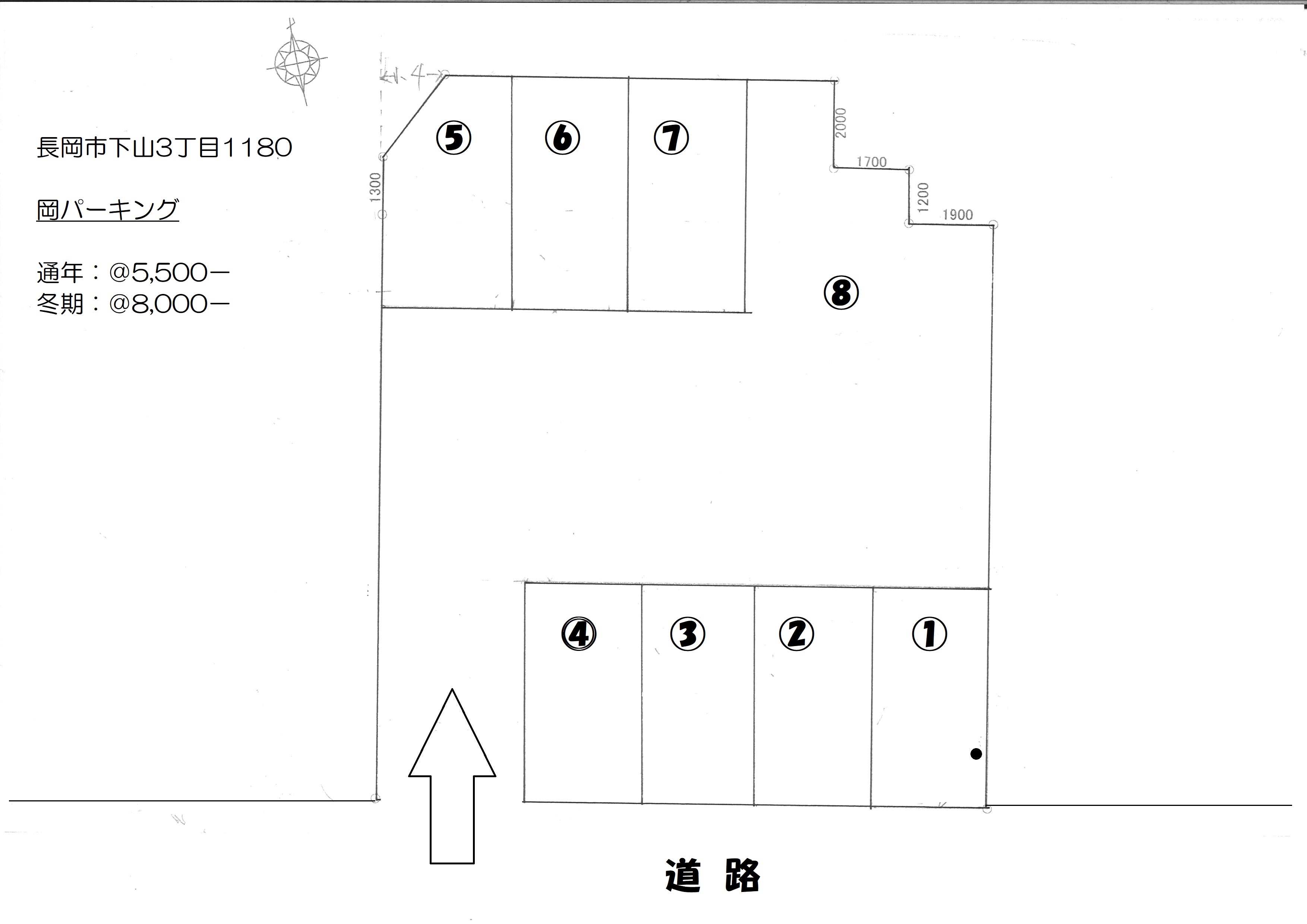
岡パーキング №3
新潟県長岡市下山3丁目1180
-
-
-
-
-
0.55万円
なし
なし
なし
なし
なし
駐車場
-
  • 岡パーキング №3
    株式会社 第一住宅新潟
  • この物件を問い合わせる/無料
  • TEL: 0258-28-1951 0258-28-1951

物件画像

外観
間取り
物件画像
※画像クリックで拡大表示
全体
物件画像
※画像クリックで拡大表示
配置図
詳細画像
物件画像
手前から2台目
物件画像
奥からの様子
物件画像
地図画像
360度画像
外観
※下のリンクをクリックすると、上の画像が切り替わります。
外観     

インターネットエクスプローラーでは360°画像は閲覧できません。それ以外のブラウザでご覧下さい。

360度画像を詳しく見る


物件概要

4ヶ月未満のご利用は月額10,000円、全期間分一括払いになります。
物件コード 00029-100513
物件名 岡パーキング №3
交通 駅:信越線 長岡駅から徒歩60分、バス:下山から徒歩3分
所在地 新潟県長岡市下山3丁目1180
物件種別 駐車場
総戸数 -
構造 - 階建 -
所在階/階数 - 号室 -
面積 - 方位 -
間取り -
賃料 0.55万円/月
管理費 -
礼金 -
敷金 -
ほか初期費用 - その他諸費用 -
更新料 - 火災(家財)保険 -
共益費 - 町内費 -
駐車場 - バイク料金 -
鍵交換費 - 清掃料 -
更新事務手数料 -
保証区分 連帯保証人のみ
保証会社 区分:指定なし
-
連帯保証人 区分:要
-
仲介手数料 5,500円
築年月 -
利用制限 -
学校区 希望が丘小学校(411m)・西中学校(834m)
設備 舗装、融雪井戸あり
入居時期 即入居可
取引態様 仲介
備考 -
手数料負担割合/配分割合 貸主:-%   借主:100% / 元付:50%   客付:50%  
取り扱い会社

株式会社 第一住宅新潟

新潟県長岡市希望が丘南5-7-15

情報登録日 2025/11/28 次回更新予定日 2026/03/07
  • 岡パーキング №3
    株式会社 第一住宅新潟
  • この物件を問い合わせる/無料
  • TEL: 0258-28-1951 0258-28-1951

この物件の地図・周辺情報・行政情報

この物件の周辺情報・行政情報を詳しく見る
【周辺情報】
物件の近くにあるコンビニや銀行・学校など、アイコン付のマップで詳しく表示できます!
【行政情報】
水道料や下水道料・ガス料金など、暮らしに関係のある情報を表示しています。

担当取扱い店舗情報

取扱い店舗画像
株式会社 第一住宅新潟
TEL: 0258-28-1951
所在地: 新潟県長岡市希望が丘南5-7-15
交通: 「希望が丘1丁目」バス停から約徒歩5分
営業時間: (平日)9~17:30時(土曜日)10~16時/定休日:日曜・祝日(夏季・冬季休暇)
免許番号: 新潟県知事(11)第2486号
所属団体名: (公社)新潟県宅地建物取引業協会 長岡支部
取引態様: 仲介
ホームページ: https://www.d1-jyutaku.co.jp