新潟県長岡市千秋2丁目2788番地1 事務所 75.46万円の物件情報

古正寺エリアに事務所をお探しの方にお勧めです!各室ALSOK警備がついているのでセキュリティー面も安心♪上層階の為、窓からの眺望も良好です★

物件名
所在地
面積
間取り
所在階
築年数
方位
賃料
管理費等
共益費
敷金
保証金
礼金
種別
構造
千秋が原ビル
6A号室
新潟県長岡市千秋2丁目2788番地1
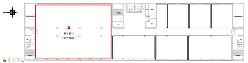
453.25㎡
(137.1坪)
-
6階
40年
-
75.46万円
なし
あり
150.92万円
なし
なし
事務所
鉄骨鉄筋コン
  • 千秋が原ビル
    株式会社 エヌ・アール・ケー総合企画
  • この物件を問い合わせる/無料
  • TEL: 0258-41-5336 0258-41-5336

物件画像

外観
間取り
物件画像
※画像クリックで拡大表示
外観
物件画像
※画像クリックで拡大表示
間取り
詳細画像
物件画像
室内
物件画像
室内
物件画像
室内
物件画像
室内
物件画像
室内
物件画像
室内
物件画像
室内
物件画像
室内
物件画像
室内
物件画像
室内
物件画像
給湯室
物件画像
トイレ
物件画像
トイレ
物件画像
印刷用地図
物件画像
印刷用地図


物件概要

物件コード 00024-100806
物件名 千秋が原ビル
交通 駅:上越新幹線 長岡駅から徒歩42分、バス:本社営業所前から徒歩3分
所在地 新潟県長岡市千秋2丁目2788番地1
物件種別 事務所
総戸数 -
構造 鉄骨鉄筋コン 階建 地上8階建
所在階/階数 6階/8階 号室 6A号室
面積 453.25㎡ /137.1坪 方位 -
間取り -
賃料 75.46万円/月
(税込)
管理費 -
礼金 - 敷金 150.92万円
ほか初期費用 - その他諸費用 -
更新料 - 火災(家財)保険 借主負担
共益費 241,400円
町内費 -
駐車場 7,700円
(税込)/1台
バイク料金 -
鍵交換費 - 清掃料 -
更新事務手数料 -
保証区分 連帯保証人のみ
保証会社 区分:指定なし
-
連帯保証人 区分:要
-
仲介手数料 754,600円
築年月 1985年11月(築40年)
利用制限 -
学校区 大島小学校(1,186m)・大島中学校(1,046m)
設備 2階以上、エアコン、男女トイレ別、即引き渡し可、エレベーター、給湯、駐車場あり
入居時期 即入居可
取引態様 仲介
備考 ・電気、ガス、水道は別途請求
・給湯室、トイレは共同利用
・ALSOKの警備あり
・貸室内装工事及び撤去費用は借主負担
・定期借家契約(2年)
・現況渡し
・フロアを間仕切りして196㎡で契約する事も可能。
(間仕切工事は貸主負担。詳細はお問い合わせください。)
・賃料、駐車場料金は税込の金額です。
手数料負担割合/配分割合 貸主:-%   借主:100% / 元付:50%   客付:50%  
取り扱い会社

株式会社 エヌ・アール・ケー総合企画

新潟県長岡市与板町与板119番地

情報登録日 2025/09/18 次回更新予定日 2026/03/07
  • 千秋が原ビル
    株式会社 エヌ・アール・ケー総合企画
  • この物件を問い合わせる/無料
  • TEL: 0258-41-5336 0258-41-5336

この物件の地図・周辺情報・行政情報

この物件の周辺情報・行政情報を詳しく見る
【周辺情報】
物件の近くにあるコンビニや銀行・学校など、アイコン付のマップで詳しく表示できます!
【行政情報】
水道料や下水道料・ガス料金など、暮らしに関係のある情報を表示しています。

担当取扱い店舗情報

取扱い店舗画像
株式会社 エヌ・アール・ケー総合企画
TEL: 0258-41-5336
所在地: 新潟県長岡市与板町与板119番地
交通:
営業時間: 8:30~17:30/定休日:土日・祝祭日 (電話対応しております)
免許番号: 新潟県知事(5)第4750号
所属団体名: 新潟県宅地建物取引業協会 長岡支部
取引態様: 仲介
ホームページ: http://www.nrk-sogo.jp