新潟県長岡市東蔵王2-6-26 事務所 6万円の物件情報

95.87㎡ 広いスペースの事務所です。

物件名
所在地
面積
間取り
所在階
築年数
方位
賃料
管理費等
共益費
敷金
保証金
礼金
種別
構造
東蔵王2丁目 『吉沢ビル 右棟3階』 A号室
A号室
新潟県長岡市東蔵王2-6-26
95.87㎡
(29坪)
-
3階
40年
-
6万円
なし
なし
3ヶ月
なし
なし
事務所
鉄骨
  • 東蔵王2丁目 『吉沢ビル 右棟3階』 A号室
    ㈱スタッフサイトウ不動産部
  • この物件を問い合わせる/無料
  • TEL: 0258-24-0623 0258-24-0623

物件画像

外観
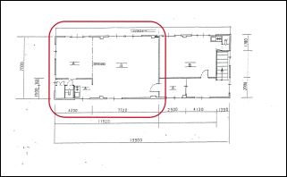
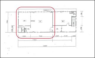
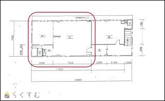
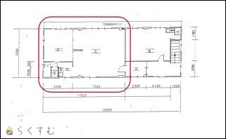
間取り
物件画像
※画像クリックで拡大表示
外観
物件画像
※画像クリックで拡大表示
間取り
詳細画像
物件画像
事務所
物件画像
事務室
物件画像
北面
物件画像
流し台
物件画像
奥の部屋入り口
物件画像
奥の部屋
物件画像
奥の部屋
物件画像
奥の部屋
物件画像
奥の部屋
物件画像
収納
物件画像
暖房
物件画像
冷房
物件画像
入り口
物件画像
地図画像


物件概要

駐車場1台6,000円かかります
物件コード 00011-100396
物件名 東蔵王2丁目 『吉沢ビル 右棟3階』 A号室
交通 駅:信越線 北長岡駅から徒歩30分、バス:北中学校前から徒歩3分
所在地 新潟県長岡市東蔵王2-6-26
物件種別 事務所
総戸数 -
構造 鉄骨 階建 地上3階建
所在階/階数 3階/3階 号室 A号室
面積 95.87㎡ /29坪 方位 -
間取り -
賃料 6万円/月
管理費 -
礼金 -
敷金 3ヶ月
ほか初期費用 - その他諸費用 融雪電気代別途必要
更新料 - 火災(家財)保険 加入の事
共益費 - 町内費 -
駐車場 - バイク料金 -
鍵交換費 - 清掃料 -
更新事務手数料 -
保証区分 連帯保証人+緊急連絡先
保証会社 区分:指定なし
-
連帯保証人 区分:要
-
仲介手数料 66,000円
築年月 1986年2月(築40年)
利用制限 -
学校区 新町小学校(927m)・北中学校(211m)
設備 最上階、融雪設備あり、エアコン、給湯、駐車場あり
入居時期 相談
取引態様 代理
備考 融雪電気代別途必要
賃料 消費税がかかります。
手数料負担割合/配分割合 貸主:-%   借主:100% / 元付:50%   客付:50%  
取り扱い会社

㈱スタッフサイトウ不動産部

新潟県長岡市蔵王2丁目4番17号

情報登録日 2025/10/20 次回更新予定日 2026/06/05
  • 東蔵王2丁目 『吉沢ビル 右棟3階』 A号室
    ㈱スタッフサイトウ不動産部
  • この物件を問い合わせる/無料
  • TEL: 0258-24-0623 0258-24-0623

この物件の地図・周辺情報・行政情報

この物件の周辺情報・行政情報を詳しく見る
【周辺情報】
物件の近くにあるコンビニや銀行・学校など、アイコン付のマップで詳しく表示できます!
【行政情報】
水道料や下水道料・ガス料金など、暮らしに関係のある情報を表示しています。

担当取扱い店舗情報

取扱い店舗画像
㈱スタッフサイトウ不動産部
TEL: 0258-24-0623
所在地: 新潟県長岡市蔵王2丁目4番17号
交通: JR北長岡駅
営業時間: 8:30~17:30/定休日:第2・4土曜・日曜・祭日
免許番号: 新潟県知事(2)第5364号
所属団体名: 新潟県宅地建物取引業協会 長岡支部
取引態様: 代理
ホームページ: http://hokuetsu-fudousan.com