新潟県長岡市大島本町3-10-1 駐車場 0.6万円の物件情報

大島中央公園となり

物件名
所在地
面積
間取り
所在階
築年数
方位
賃料
管理費等
共益費
敷金
保証金
礼金
種別
構造
大島本町3丁目 『高由パーキング』 1台空きました
新潟県長岡市大島本町3-10-1
-
-
-
-
-
0.6万円
なし
なし
なし
なし
なし
駐車場
-
  • 大島本町3丁目 『高由パーキング』 1台空きました
    ㈱スタッフサイトウ不動産部
  • この物件を問い合わせる/無料
  • TEL: 0258-24-0623 0258-24-0623

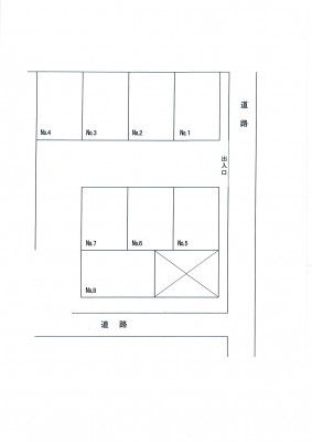
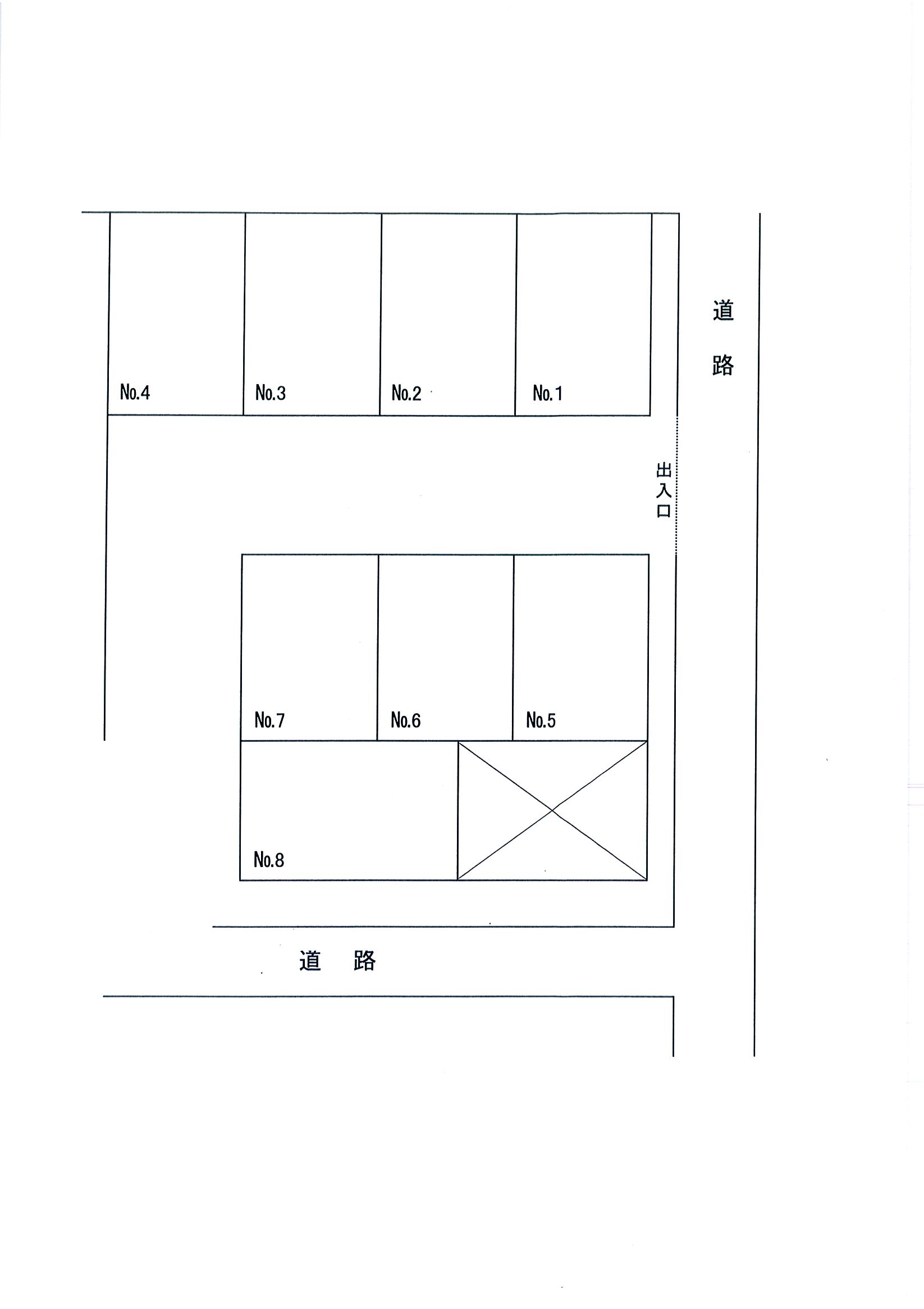
物件画像

外観
間取り
物件画像
※画像クリックで拡大表示
外観
物件画像
※画像クリックで拡大表示
間取り
詳細画像
物件画像
公園側
物件画像
道路より
物件画像
地図画像


物件概要

物件コード 00011-100343
物件名 大島本町3丁目 『高由パーキング』 1台空きました
交通 バス:大島本町から徒歩1分
所在地 新潟県長岡市大島本町3-10-1
物件種別 駐車場
総戸数 -
構造 - 階建 -
所在階/階数 - 号室 -
面積 - 方位 -
間取り -
賃料 0.6万円/月
管理費 -
礼金 -
敷金 -
ほか初期費用 - その他諸費用 -
更新料 - 火災(家財)保険 -
共益費 - 町内費 -
駐車場 - バイク料金 -
鍵交換費 - 清掃料 -
更新事務手数料 -
保証区分 緊急連絡先のみ
保証会社 区分:指定なし
-
連帯保証人 区分:不要
-
仲介手数料 6,600円
築年月 -
利用制限 -
学校区 大島小学校(395m)・大島中学校(868m)
設備 舗装、即利用可能、融雪井戸あり
入居時期 即入居可
取引態様 代理
備考 第四北越銀行大島支店裏に位置します。
手数料負担割合/配分割合 貸主:-%   借主:100% / 元付:50%   客付:50%  
取り扱い会社

㈱スタッフサイトウ不動産部

新潟県長岡市蔵王2丁目4番17号

情報登録日 2026/04/01 次回更新予定日 2026/04/21
  • 大島本町3丁目 『高由パーキング』 1台空きました
    ㈱スタッフサイトウ不動産部
  • この物件を問い合わせる/無料
  • TEL: 0258-24-0623 0258-24-0623

この物件の地図・周辺情報・行政情報

この物件の周辺情報・行政情報を詳しく見る
【周辺情報】
物件の近くにあるコンビニや銀行・学校など、アイコン付のマップで詳しく表示できます!
【行政情報】
水道料や下水道料・ガス料金など、暮らしに関係のある情報を表示しています。
セブン-イレブン 長岡大山店(コンビニ)まで380m
ファミリーマート 長岡大島本町店(コンビニ)まで440m
クスリのアオキ 大島店(ドラッグストア)まで380m
第四北越銀行 大島支店(銀行)まで190m
長岡信用金庫 大島支店(銀行)まで180m
長岡大島郵便局(郵便局)まで390m

※カメラのアイコンがある場合は、マウスをポイントするとその施設の画像がご覧いただけます。


担当取扱い店舗情報

取扱い店舗画像
㈱スタッフサイトウ不動産部
TEL: 0258-24-0623
所在地: 新潟県長岡市蔵王2丁目4番17号
交通: JR北長岡駅
営業時間: 8:30~17:30/定休日:第2・4土曜・日曜・祭日
免許番号: 新潟県知事(2)第5364号
所属団体名: 新潟県宅地建物取引業協会 長岡支部
取引態様: 代理
ホームページ: http://hokuetsu-fudousan.com