新潟県長岡市台町2丁目8番35号 店舗 21.738万円の物件情報

~ホテルニューオータニ長岡のテナントスペース ~ 中庭を囲むように配置された店舗。ショップやオフィスにおすすめですよ。

物件名
所在地
面積
間取り
所在階
築年数
方位
賃料
管理費等
共益費
敷金
保証金
礼金
種別
構造
ホテルニューオータニ長岡 テナント 201
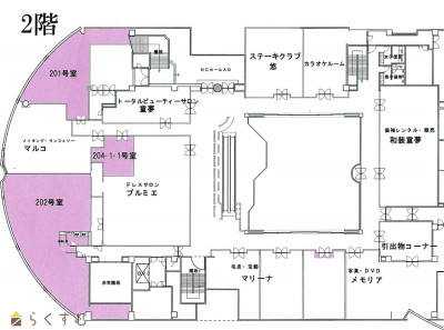
201号室
新潟県長岡市台町2丁目8番35号
119.77㎡
(36.23坪)
-
2階
41年
-
21.738万円
なし
あり
10ヶ月
なし
なし
店舗
鉄骨鉄筋コン
  • ホテルニューオータニ長岡 テナント 201
    株式会社 長岡土地
  • この物件を問い合わせる/無料
  • TEL: 0258-33-4844 0258-33-4844

物件画像

外観
間取り
物件画像
※画像クリックで拡大表示
物件画像
※画像クリックで拡大表示
間取り図
詳細画像


物件概要

物件コード 00006-101306
物件名 ホテルニューオータニ長岡 テナント 201
交通 駅:信越線 長岡駅から徒歩1分、バス:長岡駅東口から徒歩1分
所在地 新潟県長岡市台町2丁目8番35号
物件種別 店舗
総戸数 -
構造 鉄骨鉄筋コン 階建 地上12階建
所在階/階数 2階/12階 号室 201号室
面積 119.77㎡ /36.23坪 方位 -
間取り -
賃料 21.738万円/月
管理費 -
礼金 -
敷金 10ヶ月
ほか初期費用 - その他諸費用 -
更新料 - 火災(家財)保険 別途加入
共益費 181,150円
町内費 -
駐車場 - バイク料金 -
鍵交換費 - 清掃料 -
更新事務手数料 -
保証区分 連帯保証人のみ
保証会社 区分:指定なし
-
連帯保証人 区分:要
-
仲介手数料 239,118円
築年月 1984年11月(築41年)
利用制限 法人:可
学校区 阪之上小学校(165m)・南中学校(1,022m)
設備 2階以上、エレベーター
入居時期 即入居可
取引態様 仲介
備考 敷金は、家賃と共益費の合計10ヶ月分です。家賃と共益費には消費税が別途必要になります。
手数料負担割合/配分割合 貸主:-%   借主:100% / 元付:-%   客付:-%  
取り扱い会社

株式会社 長岡土地

新潟県長岡市東坂之上町3-4-8

情報登録日 2024/05/23 次回更新予定日 2026/04/21
  • ホテルニューオータニ長岡 テナント 201
    株式会社 長岡土地
  • この物件を問い合わせる/無料
  • TEL: 0258-33-4844 0258-33-4844

この物件の地図・周辺情報・行政情報

この物件の周辺情報・行政情報を詳しく見る
【周辺情報】
物件の近くにあるコンビニや銀行・学校など、アイコン付のマップで詳しく表示できます!
【行政情報】
水道料や下水道料・ガス料金など、暮らしに関係のある情報を表示しています。

担当取扱い店舗情報

取扱い店舗画像
株式会社 長岡土地
TEL: 0258-33-4844
所在地: 新潟県長岡市東坂之上町3-4-8
交通: 長岡駅大手口より徒歩約10分
営業時間: 8:30~18:30/定休日:水曜日・祝祭日(他 GW、夏季休暇、年末年始等)
免許番号: 新潟県知事(9)3247号
所属団体名: 全国宅地建物取引業協会 長岡支部
取引態様: 仲介
ホームページ: https://nagaokatoti.com