新潟県長岡市上富岡2丁目1864-7 アパート 1K 4万円の物件情報

長岡技術科学大学近くの物件です。インターネット無料になります。

物件名
所在地
面積
間取り
所在階
築年数
方位
賃料
管理費等
共益費
敷金
保証金
礼金
種別
構造
プレオハイツA
101号室
新潟県長岡市上富岡2丁目1864-7
19.53㎡
(5.9坪)
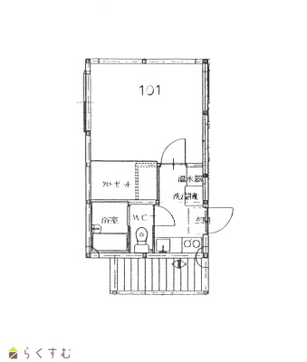
1K
1階
27年
指定なし
4万円
なし
なし
なし
なし
なし
アパート・マンション・一戸建て
木造
  • プレオハイツA
    有限会社 五十嵐商事
  • この物件を問い合わせる/無料
  • TEL: 0258-28-1414 0258-28-1414

物件画像

外観
間取り
物件画像
※画像クリックで拡大表示
外観
物件画像
※画像クリックで拡大表示
平面図
詳細画像
物件画像
内観
物件画像
内観
物件画像
内観
物件画像
内観
物件画像
内観
物件画像
内観
物件画像
内観
物件画像
内観
物件画像
内観
物件画像
内観
物件画像
内観
物件画像
内観
物件画像
内観
物件画像
内観
物件画像
印刷用地図


物件概要

物件コード 00004-100441
物件名 プレオハイツA
交通 駅:信越線 来迎寺駅から徒歩46分、バス:技大前から徒歩7分
所在地 新潟県長岡市上富岡2丁目1864-7
物件種別 アパート・マンション・一戸建て
総戸数 -
構造 木造 階建 地上2階建
所在階/階数 1階/2階 号室 101号室
面積 19.53㎡ /5.9坪 方位 指定なし
間取り 1K (洋室:7)
賃料 4万円/月
管理費 -
礼金 -
敷金 -
ほか初期費用 - その他諸費用 -
更新料 - 火災(家財)保険 要加入
共益費 - 町内費 -
駐車場
月額4000円、空き要確認
バイク料金 -
鍵交換費 17,600円
清掃料 -
更新事務手数料 -
保証区分 保証会社+緊急連絡先
保証会社 区分:加入要
保証会社名:ジェイリース
①Jフラット 初回保証料 月額の総賃料70%、継続保証料 月額1,200円 ②学生プラン 初回保証料 一律 2万円、継続保証料 月額1,000円 ③留学生 連帯保証人 学校、敷金 4万円
家賃保証金 28,000円
連帯保証人 区分:不要
-
仲介手数料 44,000円
築年月 1999年2月(築27年)
利用制限 学生:可、単身者:可、二人入居:不可、ペット:不可、楽器:不可、ルームシェア:不可
学校区 才津小学校(1,500m)・西中学校(3,286m)
設備 ロフト、駐輪場あり、角住居、バストイレ別、温水洗浄便座、エアコン、オール電化、全居室フローリング、洗濯機置場 室内、クロゼット、TVモニター付きインターホン、インターネット無料、各居室照明、学生向け、一人暮らし・学生向け、長岡技術科学大学生におすすめ
入居時期 2026年4月上旬予定
取引態様 仲介
備考 画像と現況が異なる場合、現況を優先します。駐車場を借りる場合は月額4000円です(仲介手数料、保証料が変わります)。
手数料負担割合/配分割合 貸主:-%   借主:100% / 元付:50%   客付:50%  
取り扱い会社

有限会社 五十嵐商事

新潟県長岡市三ツ郷屋2丁目5-23

情報登録日 2026/02/16 次回更新予定日 2026/04/17
  • プレオハイツA
    有限会社 五十嵐商事
  • この物件を問い合わせる/無料
  • TEL: 0258-28-1414 0258-28-1414

この物件の地図・周辺情報・行政情報

この物件の周辺情報・行政情報を詳しく見る
【周辺情報】
物件の近くにあるコンビニや銀行・学校など、アイコン付のマップで詳しく表示できます!
【行政情報】
水道料や下水道料・ガス料金など、暮らしに関係のある情報を表示しています。
セブン-イレブン 長岡上富岡店(コンビニ)まで310m

※カメラのアイコンがある場合は、マウスをポイントするとその施設の画像がご覧いただけます。


担当取扱い店舗情報

取扱い店舗画像
有限会社 五十嵐商事
TEL: 0258-28-1414
所在地: 新潟県長岡市三ツ郷屋2丁目5-23
交通: 西長岡案内所バス停徒歩2分
営業時間: 平日9時~18時・土曜日10時~15時(3月休みなし)/定休日:日曜、祝祭日、年末年始(12/27~1/4)
免許番号: 新潟県知事(14)1645号
所属団体名: 新潟県宅地建物取引業協会 長岡支部
取引態様: 仲介
ホームページ: https://ikarashi-shouji.com/