物件掲載企業数:295|賃貸物件:3,620件|売買物件:3,318件|今週の登録物件:227
閲覧中のブラウザ(インターネットエクスプローラー)は非推奨ブラウザです。
物件が正しく表示されなかったり、正しく検索されない場合があります。最新のブラウザ(Google Chrome・Edgeなど)にてご利用お願いいたします。
  

新潟県三条市中新25-41 アパート 2K 3.5万円の物件情報

ロフト・大容量のクローゼット付き

物件名
所在地
面積
間取り
所在階
築年数
方位
賃料
管理費等
共益費
敷金
保証金
礼金
種別
構造
ドリームレジデンス
201号室
新潟県三条市中新25-41
33.05㎡
(9.99坪)
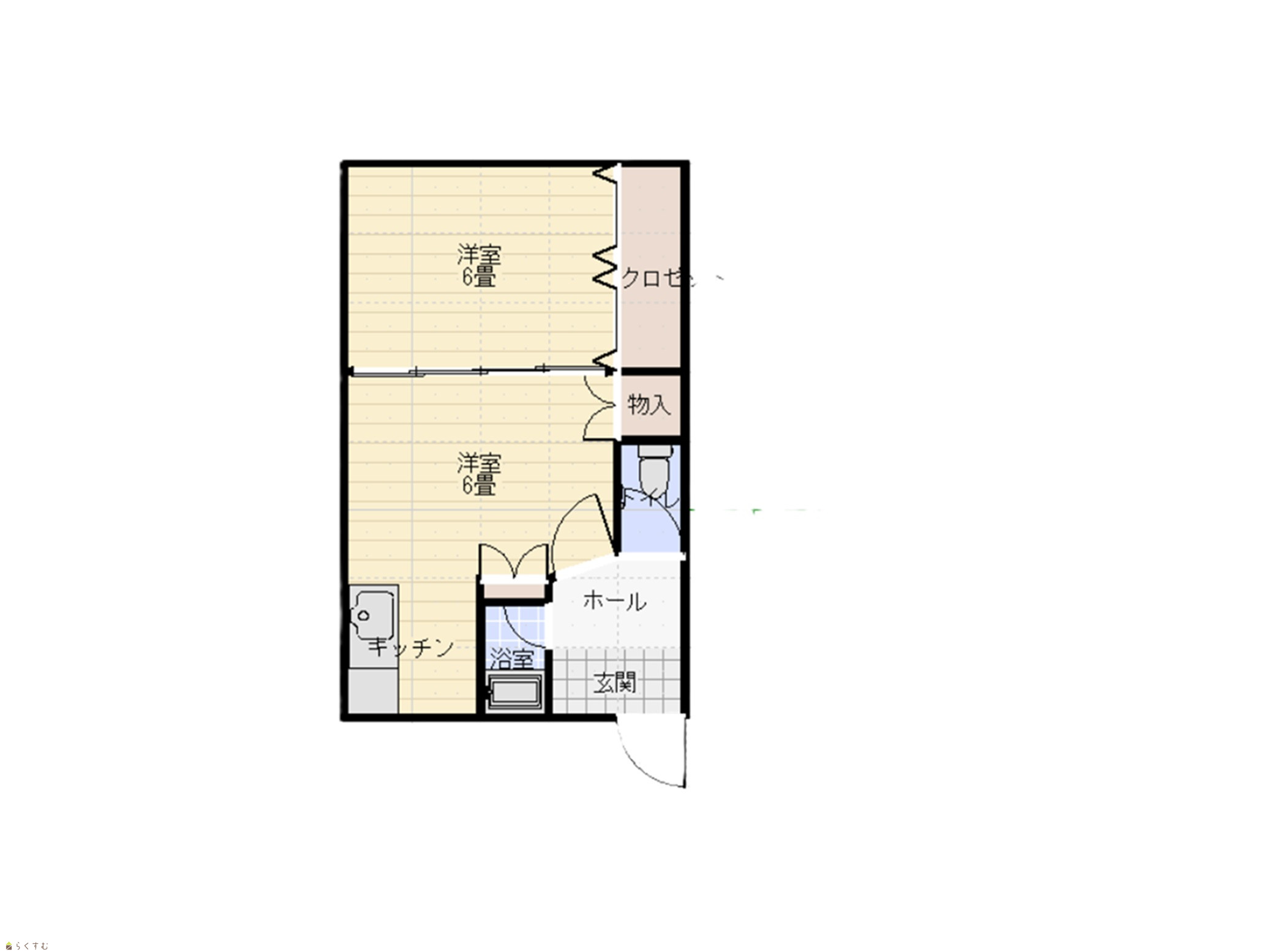
2K
2階
44年
-
3.5万円
なし
なし
1ヶ月
なし
なし
アパート・マンション・一戸建て
木造
  • ドリームレジデンス
    株式会社 山常組
  • この物件を問い合わせる/無料
  • TEL: 0258-62-0804

物件画像

外観 間取り
物件画像
※画像クリックで拡大表示
外観
物件画像
※画像クリックで拡大表示
クロゼットの上がロフトになっています。
詳細画像


物件概要

平成29年5月リフォーム済み
物件コード 00337-100022
物件名 ドリームレジデンス
交通 駅:信越線 東三条駅から徒歩40分、バス:中新(上)から徒歩3分
所在地 新潟県三条市中新25-41
物件種別 アパート・マンション・一戸建て
総戸数 4戸
構造 木造 階建 地上2階建
所在階/階数 2階/2階 号室 201号室
面積 33.05㎡ /9.99坪 方位 -
間取り 2K (洋室:6、6)
賃料 3.5万円/月
管理費 -
礼金 - 敷金 1ヶ月
ほか初期費用 - その他諸費用 -
更新料 - 火災(家財)保険 別途
共益費 - 町内費 別途
駐車場 - バイク料金 -
鍵交換費 - 清掃料 -
更新事務手数料 -
保証区分 連帯保証人+緊急連絡先
保証会社 区分:指定なし
-
連帯保証人 区分:要
-
仲介手数料 38,500円
築年月 1981年11月(築44年)
利用制限 -
学校区 大崎学園(小)(1,990m)・大崎学園(中)(1,990m)
設備 公園そば、外壁タイル張り、ロフト、駐車場1台無料、バストイレ別、浴室乾燥機、ユニットバス、温水洗浄便座、エアコン、LPG、複層サッシ、洗濯機置場 室内、玄関収納、クロゼット、全室収納、各居室照明、内装リフォーム済み、外装リフォーム済み、保証会社利用可能、礼金不要
入居時期 相談
取引態様 仲介
備考 -
手数料負担割合/配分割合 貸主:-%   借主:-% / 元付:-%   客付:-%  
取り扱い会社

株式会社 山常組

新潟県見附市新町3-7-21

情報登録日 2023/11/24 次回更新予定日 2025/11/18
  • ドリームレジデンス
    株式会社 山常組
  • この物件を問い合わせる/無料
  • TEL: 0258-62-0804

この物件の地図・周辺情報・行政情報

この物件の周辺情報・行政情報を詳しく見る
【周辺情報】
物件の近くにあるコンビニや銀行・学校など、アイコン付のマップで詳しく表示できます!
【行政情報】
水道料や下水道料・ガス料金など、暮らしに関係のある情報を表示しています。

担当取扱い店舗情報

取扱い店舗画像
株式会社 山常組
TEL: 0258-62-0804
所在地: 新潟県見附市新町3-7-21
交通:
営業時間: 8:00~18:00/定休日:第2・4土曜、日曜、祝日
免許番号: 新潟県知事(8)第3541号 この会社の情報を詳しく見る
所属団体名: 公社 新潟県宅地建物取引協会 三条支部
取引態様: 仲介
ホームページ: http://www.yamatsune.com