上越大通りに面し、交通アクセス良好
| 物件名
							 所在地  | 
							面積
							 間取り 所在階  | 
							築年数
							 方位  | 
							賃料
							 管理費等 共益費  | 
							敷金
							 保証金 礼金  | 
							種別
							 構造  | 
						
|---|---|---|---|---|---|
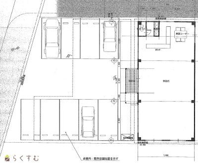
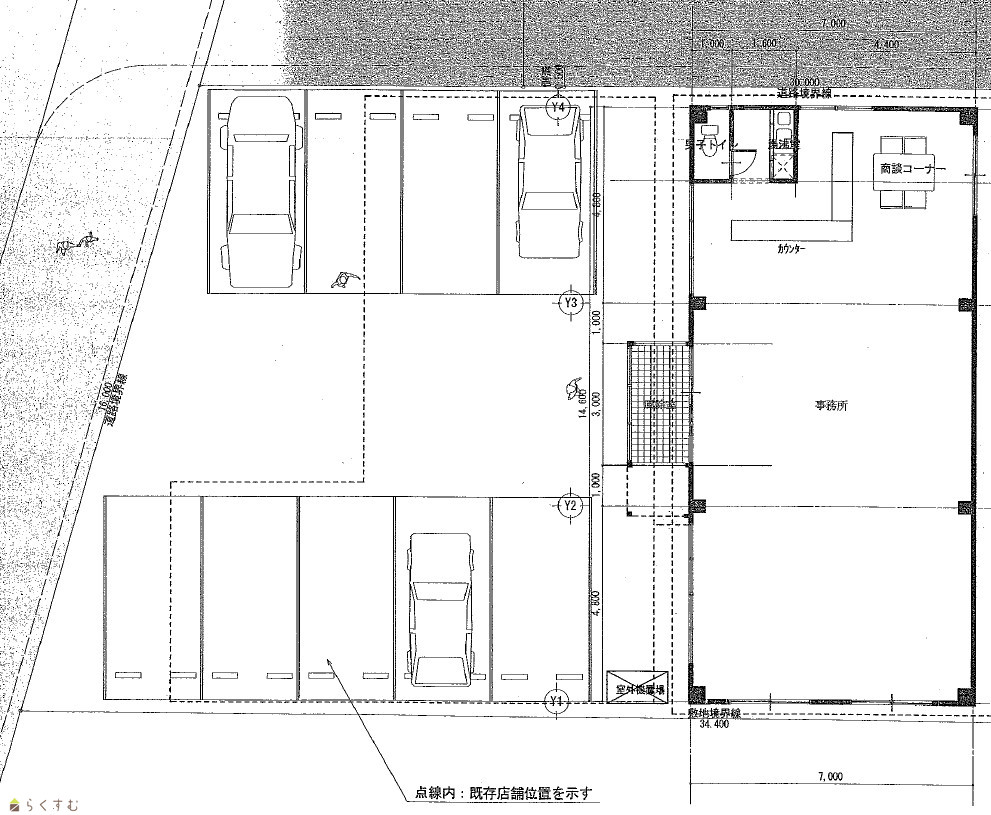
| 北城町3丁目 店舗 上越市北城町3丁目3-3  | 111㎡ (33.57坪) - -  | 24年 -  | 27.5万円 なし なし  | 3ヶ月 なし なし  | 店舗 鉄骨  | 
						
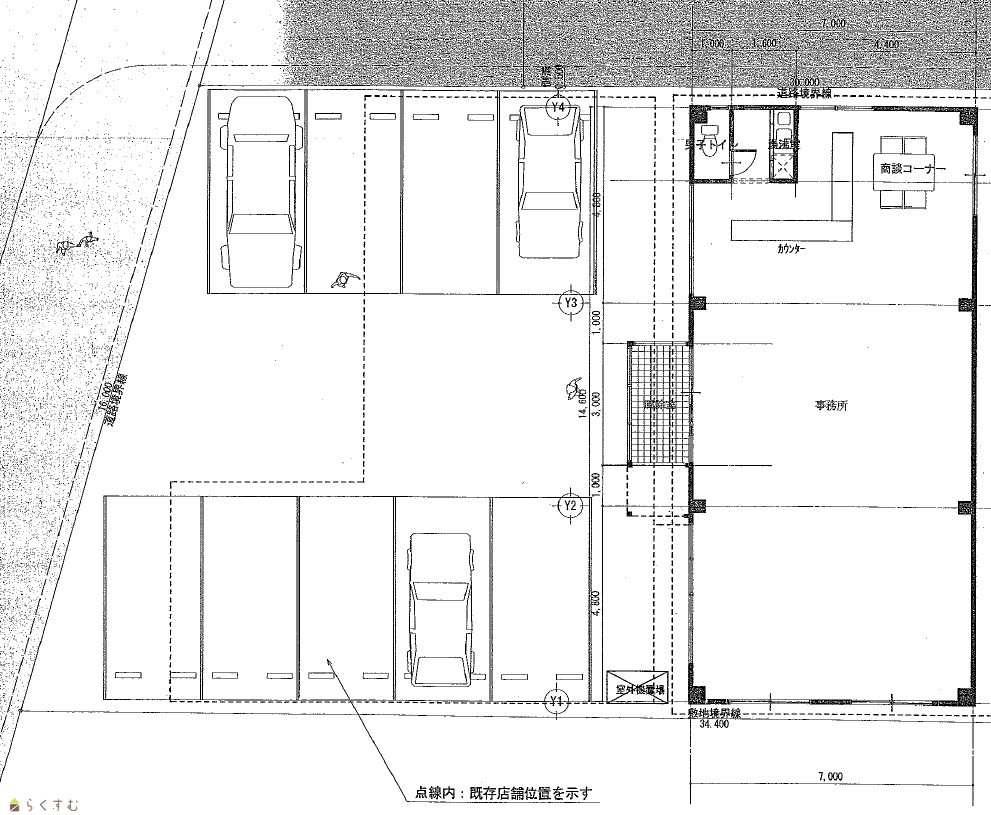
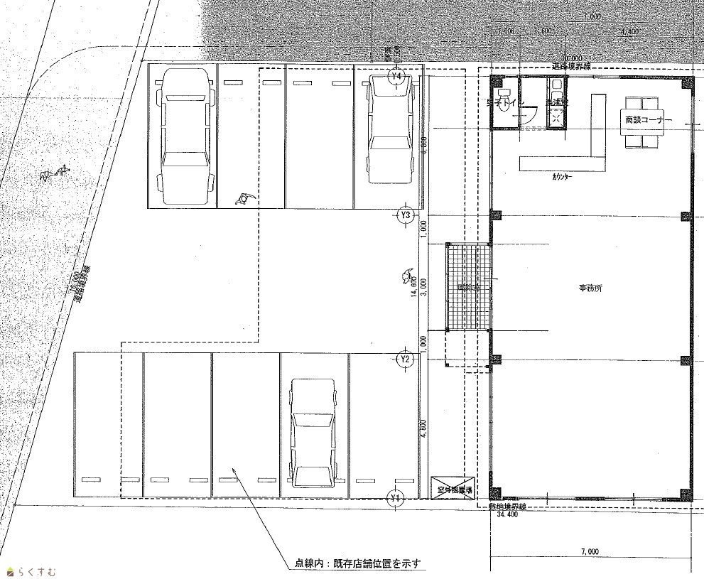
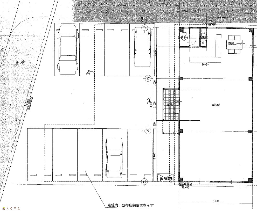
| 外観 | 間取り | 
|---|---|
| 
								 ※画像クリックで拡大表示 外観 
							 | 
							
								![]() ※画像クリックで拡大表示 間取り 
							 | 
						
| 詳細画像 | |
| 
								 | 
						|
| 物件コード | 00308-100440 | ||
|---|---|---|---|
| 物件名 | 北城町3丁目 店舗 | ||
| 交通 | 駅:妙高はねうまライン 高田駅から徒歩16分 | ||
| 所在地 | 上越市北城町3丁目3-3 | ||
| 物件種別 | 店舗 | ||
| 総戸数 | - | ||
| 構造 | 鉄骨 | 階建 | 地上1階建 | 
| 所在階/階数 | - | 号室 | - | 
| 面積 | 111㎡ /33.57坪 | 方位 | - | 
| 間取り | - | ||
| 賃料 | 27.5万円/月
								
								 25万+税  | 
							管理費 | - | 
| 礼金 | -
								
								 | 
							敷金 | 3ヶ月
								
								 | 
						
| ほか初期費用 | - | その他諸費用 | - | 
| 更新料 | - | 火災(家財)保険 | 要加入 | 
| 共益費 | - | 町内費 | 実費負担 | 
| 駐車場 | 
																									
										
										 15台  | 
							
														バイク料金 | - | 
| 鍵交換費 | - | 清掃料 | - | 
| 更新事務手数料 | - | ||
| 保証区分 | 
								保証会社+緊急連絡先 | 
						||
| 保証会社 | 
							   区分:加入要
							   
							  	 							    保証会社名:CIZ 月額総賃料の77%  | 
							
						||
| 家賃保証金 | 
							211,750円							
															 | 
						||
| 連帯保証人 | 
							   区分:不要 -  | 
						||
| 仲介手数料 | 
								
																	275,000円
									 | 
							
						||
| 築年月 | 2001年10月(築24年) | ||
| 利用制限 | 法人:可、事務所利用:可 | ||
| 学校区 | 大町小学校(778m)・城北中学校(711m) | ||
| 設備 | 1階、融雪設備あり、エアコン、駐車場あり | ||
| 入居時期 | 相談 | ||
| 取引態様 | 仲介 | ||
| 備考 | - | ||
| 手数料負担割合/配分割合 | 貸主:0% 借主:100% / 元付:50% 客付:50% | ||
| 取り扱い会社 | 
								 上越宅地販売株式会社 新潟県上越市南高田町1-2アサノビル1階  | 
						||
| 情報登録日 | 2025/10/13 | 次回更新予定日 | 2025/11/19 | 
| 
																		セブン-イレブン 上越北城店(コンビニ)まで90m ナルス 北城店(スーパー)まで180m  | 
																
																		第四北越銀行 高田営業部(銀行)まで610m | 
															
※カメラのアイコンがある場合は、マウスをポイントするとその施設の画像がご覧いただけます。
| TEL: | 025-522-3838 | |
|---|---|---|
| 所在地: | 新潟県上越市南高田町1-2アサノビル1階 | |
| 交通: | 妙高はねうまライン 南高田駅 徒歩1分 | |
| 営業時間: | 9:00~18:30/定休日:毎週水曜日・GW・夏季・臨時休業(9/21日曜日)・年末年始 | |
| 免許番号: | 新潟県知事(9)第3372号 | 
										
											 | 
								
| 所属団体名: | 公社 新潟県宅地建物取引協会 上越支部 | |
| 取引態様: | 仲介 | |
| ホームページ: | http://takuhan.com/ | |