物件掲載企業数:297|賃貸物件:3,610件|売買物件:3,333件|今週の登録物件:271
閲覧中のブラウザ(インターネットエクスプローラー)は非推奨ブラウザです。
物件が正しく表示されなかったり、正しく検索されない場合があります。最新のブラウザ(Google Chrome・Edgeなど)にてご利用お願いいたします。
  

新潟県上越市藤巻9-5 事務所 19.8万円の物件情報

◆上越市藤巻◆144.18㎡のゆとりのある広さの事務所

物件名
所在地
面積
間取り
所在階
築年数
方位
賃料
管理費等
共益費
敷金
保証金
礼金
種別
構造
上越市藤巻 貸事務所
新潟県上越市藤巻9-5
144.18㎡
(43.61坪)
-
2階
26年
-
19.8万円
なし
なし
2ヶ月
なし
なし
事務所
鉄骨
  • 上越市藤巻 貸事務所
    田中不動産株式会社
  • この物件を問い合わせる/無料
  • TEL: 025-512-5001

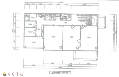
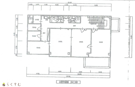
物件画像

外観 間取り
物件画像
※画像クリックで拡大表示
外観
物件画像
※画像クリックで拡大表示
間取り
詳細画像


物件概要

男女別トイレ2カ所・給湯室完備、プロパンガス対応。駐車スペース5台分あり◎ 2階ご契約で3階も利用可能! 元デイサービス・介護系事務所として使用されていたため、福祉・医療系にもおすすめ。 隣接する約12坪の倉庫もご希望により貸出可能。 現在1階はパソコン教室として利用中。 多目的に活用できる好立地物件です!
物件コード 00297-100044
物件名 上越市藤巻 貸事務所
交通 駅:妙高はねうまライン 春日山駅から徒歩22分、バス:藤巻から徒歩3分
所在地 新潟県上越市藤巻9-5
物件種別 事務所
総戸数 -
構造 鉄骨 階建 地上3階建
所在階/階数 2階/3階 号室 -
面積 144.18㎡ /43.61坪 方位 -
間取り -
賃料 19.8万円/月
管理費 -
礼金 - 敷金 2ヶ月
ほか初期費用 - その他諸費用 -
更新料 - 火災(家財)保険 -
共益費 - 町内費 -
駐車場 5台分程度 バイク料金 -
鍵交換費 - 清掃料 -
更新事務手数料 -
保証区分 連帯保証人のみ
保証会社 区分:指定なし
-
連帯保証人 区分:要
-
仲介手数料 -
築年月 1999年3月(築26年)
利用制限 法人:可、事務所利用:可
学校区 高志小学校(712m)・春日中学校(1,927m)
設備 2階以上、男女トイレ別、給湯
入居時期 相談
取引態様 仲介
備考 -
手数料負担割合/配分割合 貸主:-%   借主:-% / 元付:-%   客付:-%  
取り扱い会社

田中不動産株式会社

新潟県上越市土橋1154-1ワグリオフィスA

情報登録日 2025/12/12 次回更新予定日 2026/01/13
  • 上越市藤巻 貸事務所
    田中不動産株式会社
  • この物件を問い合わせる/無料
  • TEL: 025-512-5001

この物件の地図・周辺情報・行政情報

この物件の周辺情報・行政情報を詳しく見る
【周辺情報】
物件の近くにあるコンビニや銀行・学校など、アイコン付のマップで詳しく表示できます!
【行政情報】
水道料や下水道料・ガス料金など、暮らしに関係のある情報を表示しています。
セブン-イレブン 上越土橋店(コンビニ)まで460m
クスリのアオキ 藤巻店(ドラッグストア)まで420m
セブン-イレブン 上越土橋店(コンビニ)までm
クスリのアオキ 藤巻店(ドラッグストア)までm
たかし薬局(ドラッグストア)までm
あおば薬局 木田店(ドラッグストア)までm
はまだ皮ふ科(病院)までm
JAえちご上越 金融共済部融資貯金課(銀行)までm
JAえちご上越 金融共済部貯金業務課(銀行)までm
JAえちご上越 監査室(銀行)までm
JAえちご上越 経済部経済課(銀行)までm
JAえちご上越 春日支店(銀行)までm
JAえちご上越 経済部中央物流センター(銀行)までm
セブン銀行ATM(銀行)までm
上越信用金庫 はれまち支店(銀行)までm

※カメラのアイコンがある場合は、マウスをポイントするとその施設の画像がご覧いただけます。


担当取扱い店舗情報

取扱い店舗画像
田中不動産株式会社
TEL: 025-512-5001
所在地: 新潟県上越市土橋1154-1ワグリオフィスA
交通: 妙高はねうまライン 高田駅
営業時間: 9:00~18:00/定休日:土・日・祝
免許番号: 大臣免許(2)第9635号 この会社の情報を詳しく見る
所属団体名: 公社 新潟県宅地建物取引協会 上越支部
取引態様: 仲介
ホームページ: http://www.tanakafudousan-inc.co.jp