セーリングなどのマリンスポーツ用具の倉庫としての利用にもオススメです
| 物件名
							 所在地  | 
							面積
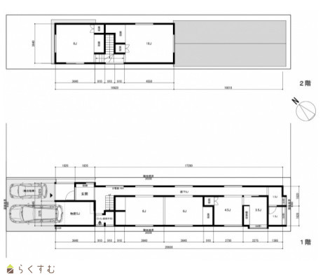
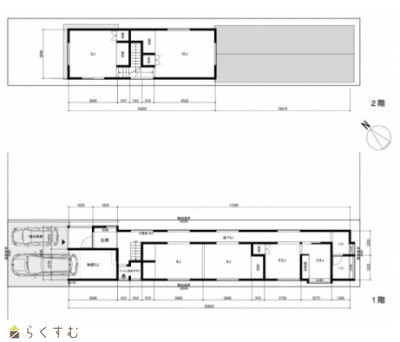
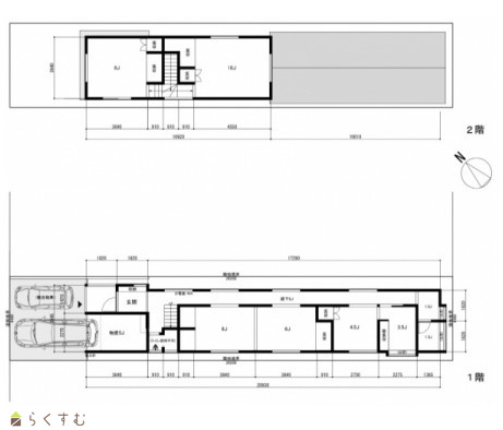
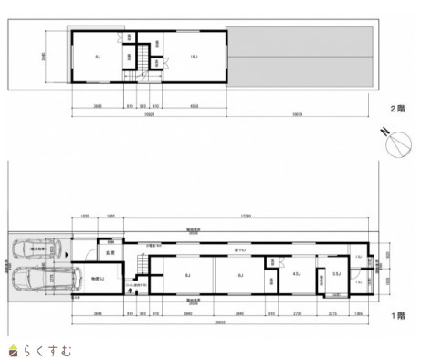
							 間取り 所在階  | 
							築年数
							 方位  | 
							賃料
							 管理費等 共益費  | 
							敷金
							 保証金 礼金  | 
							種別
							 構造  | 
						
|---|---|---|---|---|---|
| 柏崎市中央町 賃貸倉庫 スペース中央町 新潟県柏崎市中央町  | 113.83㎡ (34.43坪) - -  | 49年 -  | 3.3万円 なし なし  | 2ヶ月 なし なし  | 倉庫・工場・その他 木造  | 
						
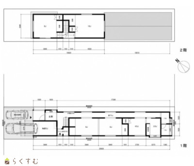
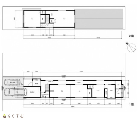
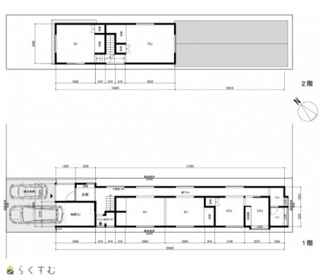
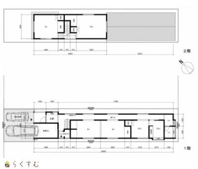
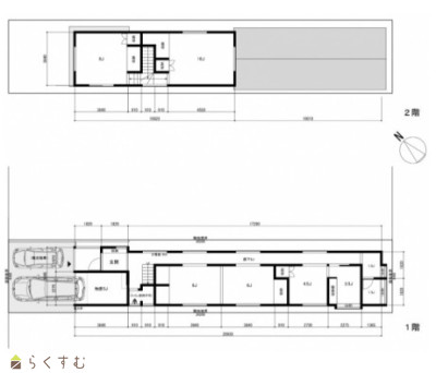
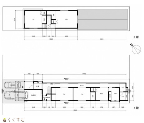
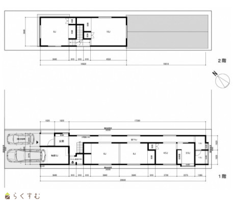
| 外観 | 間取り | 
|---|---|
								![]() ※画像クリックで拡大表示 外観 
							 | 
							
								![]() ※画像クリックで拡大表示 間取り 
							 | 
						
| 詳細画像 | |
| 
								 | 
						|
| 使用用途相談可能! まずはお気軽にお問い合わせください。 セーリング・サーフボード・釣り用具など、海に近い立地を利用して気軽に利用可能な倉庫として活用はいかがでしょうか♪ マリンスポーツが盛んな柏崎で隠れた物件です♪ | |||
| 物件コード | 00297-100038 | ||
|---|---|---|---|
| 物件名 | 柏崎市中央町 賃貸倉庫 スペース中央町 | ||
| 交通 | 駅:越後線 東柏崎駅から徒歩7分 | ||
| 所在地 | 新潟県柏崎市中央町 | ||
| 物件種別 | 倉庫・工場・その他 | ||
| 総戸数 | 1戸 | ||
| 構造 | 木造 | 階建 | 地上2階建 | 
| 所在階/階数 | - | 号室 | - | 
| 面積 | 113.83㎡ /34.43坪 | 方位 | - | 
| 間取り | - | ||
| 賃料 | 3.3万円/月
								
								 | 
							管理費 | - | 
| 礼金 | - | 敷金 | 2ヶ月
								
								 | 
						
| ほか初期費用 | - | その他諸費用 | - | 
| 更新料 | - | 火災(家財)保険 | プランにより金額が異なります | 
| 共益費 | - | 町内費 | - | 
| 駐車場 | 普通車1台、軽1台 | バイク料金 | - | 
| 鍵交換費 | - | 清掃料 | - | 
| 更新事務手数料 | - | ||
| 保証区分 | 
								連帯保証人のみ | 
						||
| 保証会社 | 
							   区分:指定なし
							   
							  	 
							   
							   							    -  | 
							
						||
| 連帯保証人 | 
							   区分:要 -  | 
						||
| 仲介手数料 | 
								
																	36,300円
									 | 
							
						||
| 築年月 | 1976年8月(築49年) | ||
| 利用制限 | - | ||
| 学校区 | 柏崎小学校(708m)・第一中学校(573m) | ||
| 設備 | 即引き渡し、駐車場あり | ||
| 入居時期 | 即入居可 | ||
| 取引態様 | 仲介 | ||
| 備考 | 【物置として利用】 ・保管する物品の内容は契約前に確認要 ・消防法上の危険物(第1~6類)の保管、重量物の保管、動物等の飼育は禁止 【事務所として利用】 ・トイレ・手洗い等が無い為、家賃を含め応相談 【その他概要】 ・1F床:張替済 ・電力(引込有)、下水道(排水桝有) ・ガス、上水道(引込無/予定も無) ・トイレ、エアコン使用不可 ※セーリングなどマリンスポーツの備品庫としての利用など、使用用途は多彩です お気軽にお問い合わせください。  | 
						||
| 手数料負担割合/配分割合 | 貸主:-% 借主:-% / 元付:-% 客付:-% | ||
| 取り扱い会社 | 
								 田中不動産株式会社 新潟県上越市土橋1154-1ワグリオフィスA  | 
						||
| 情報登録日 | 2025/06/13 | 次回更新予定日 | 2025/11/18 | 
| 
																		セブン-イレブン 柏崎新花町店(コンビニ)まで110m ローソン 柏崎学校町店(コンビニ)まで720m 中央町薬局(ドラッグストア)まで150m  | 
																
																		柏崎信用金庫 諏訪町支店(銀行)まで180m 第四北越銀行 柏崎東本町支店(銀行)まで650m 柏崎東本町郵便局(郵便局)まで790m  | 
															
※カメラのアイコンがある場合は、マウスをポイントするとその施設の画像がご覧いただけます。
						| TEL: | 025-512-5001 | |
|---|---|---|
| 所在地: | 新潟県上越市土橋1154-1ワグリオフィスA | |
| 交通: | 妙高はねうまライン 高田駅 | |
| 営業時間: | 9:00~18:00/定休日:土・日・祝 | |
| 免許番号: | 大臣免許(2)第9635号 | 
										
											 | 
								
| 所属団体名: | 公社 新潟県宅地建物取引協会 上越支部 | |
| 取引態様: | 仲介 | |
| ホームページ: | http://www.tanakafudousan-inc.co.jp | |