物件掲載企業数:297|賃貸物件:3,610件|売買物件:3,333件|今週の登録物件:272
閲覧中のブラウザ(インターネットエクスプローラー)は非推奨ブラウザです。
物件が正しく表示されなかったり、正しく検索されない場合があります。最新のブラウザ(Google Chrome・Edgeなど)にてご利用お願いいたします。
  

新潟県柏崎市四谷2丁目6番48号102号 アパート 3DK 6.9万円の物件情報

人気のメゾネット♪リビングCF張替え、クロス貼り替え、温水器新品入替済みです

物件名
所在地
面積
間取り
所在階
築年数
方位
賃料
管理費等
共益費
敷金
保証金
礼金
種別
構造
メゾネット四谷
102号室
新潟県柏崎市四谷2丁目6番48号102号
62.1㎡
(18.78坪)
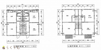
3DK
1階
20年
6.9万円
2,000円/月
なし
なし
なし
2ヶ月
アパート・マンション・一戸建て
木造
  • メゾネット四谷
    有限会社ひまわりネットワーク
  • この物件を問い合わせる/無料
  • TEL: 0257-22-0851

物件画像

外観 間取り
物件画像
※画像クリックで拡大表示
外観
物件画像
※画像クリックで拡大表示
間取り
詳細画像


物件概要

物件コード 00292-100029
物件名 メゾネット四谷
交通 駅:越後線 東柏崎駅から徒歩12分、バス:日吉町から徒歩1分
所在地 新潟県柏崎市四谷2丁目6番48号102号
物件種別 アパート・マンション・一戸建て
総戸数 2戸
構造 木造 階建 地上2階建
所在階/階数 1階/2階 号室 102号室
面積 62.1㎡ /18.78坪 方位
間取り 3DK (洋室:6、7、8)
DK6
賃料 6.9万円/月
管理費 2,000円/月
礼金 2ヶ月
敷金 -
ほか初期費用 - その他諸費用 -
更新料 - 火災(家財)保険 22,000円
2年
共益費 - 町内費 -
駐車場
2台込
バイク料金 -
鍵交換費 - 清掃料 -
更新事務手数料 -
保証区分 保証会社のみ
保証会社 区分:加入要
保証会社名:CIZ
-
家賃保証金 55,770円
連帯保証人 区分:不要
-
仲介手数料 -
築年月 2005年4月(築20年)
利用制限 ペット:不可、楽器:不可
学校区 比角小学校(157m)・第二中学校(354m)
設備 日当り良好、メゾネット、駐車場2台無料、駐車場 礼金なし、駐車場 敷金なし、南向き、角住居、全室南向き、IHクッキングヒーター、バストイレ別、浴室1坪以上、追いだき機能付き、温水洗浄便座、エアコン、オール電化、バルコニー、2面バルコニー、全居室フローリング、複層サッシ、洗濯機置場 室内、脱衣所、トランクルーム、BS端子・アンテナ、TVモニター付きインターホン、即入居可、礼金不要、予約可、メゾネット式
入居時期 10月上旬
取引態様 仲介
備考 -
手数料負担割合/配分割合 貸主:0%   借主:100% / 元付:-%   客付:100%  
取り扱い会社

有限会社ひまわりネットワーク

新潟県柏崎市宮場町9番23号

情報登録日 2025/10/28 次回更新予定日 2026/01/13
  • メゾネット四谷
    有限会社ひまわりネットワーク
  • この物件を問い合わせる/無料
  • TEL: 0257-22-0851

この物件の地図・周辺情報・行政情報

この物件の周辺情報・行政情報を詳しく見る
【周辺情報】
物件の近くにあるコンビニや銀行・学校など、アイコン付のマップで詳しく表示できます!
【行政情報】
水道料や下水道料・ガス料金など、暮らしに関係のある情報を表示しています。

担当取扱い店舗情報

取扱い店舗画像
有限会社ひまわりネットワーク
TEL: 0257-22-0851
所在地: 新潟県柏崎市宮場町9番23号
交通: 柏﨑駅南口から約950m(約12分)
営業時間: 平日9:00~17:00(土12:00まで)/定休日:日曜・祝日
免許番号: 新潟県知事(6)第4167号 この会社の情報を詳しく見る
所属団体名: (公社)新潟県宅地建物取引業協会 (一社)全国賃貸不動産管理業協会(全宅管理)
取引態様: 仲介
ホームページ: https://www.himawari-network.co.jp/