物件掲載企業数:301|賃貸物件:3,261件|売買物件:3,251件|今週の登録物件:296
閲覧中のブラウザ(インターネットエクスプローラー)は非推奨ブラウザです。
物件が正しく表示されなかったり、正しく検索されない場合があります。最新のブラウザ(Google Chrome・Edgeなど)にてご利用お願いいたします。
  

新潟県上越市石橋2丁目5-36 店舗 16.5万円の物件情報

雰囲気の良い内装のため、美容・アパレル関係にオススメ

物件名
所在地
面積
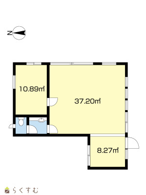
間取り
所在階
築年数
方位
賃料
管理費等
共益費
敷金
保証金
礼金
種別
構造
石橋2丁目貸店舗
新潟県上越市石橋2丁目5-36
60.51㎡
(18.3坪)
-
1階
4年
-
16.5万円
なし
なし
2ヶ月
なし
なし
店舗
木造
  • 石橋2丁目貸店舗
    ピタットハウス上越店 日建不動産
  • この物件を問い合わせる/無料
  • TEL: 025-544-6015

物件画像

外観 間取り
物件画像
※画像クリックで拡大表示
外観
物件画像
※画像クリックで拡大表示
間取り
詳細画像


物件概要

・雰囲気の良い内装のため、美容・アパレル関係にオススメ(飲食不可) ・専有面積の他、別途ロフトあり(約6帖) ・駐車場2台込み、有料で3台追加可能(1台6,000円/月) ・内覧可能 ※予約制ですので事前にお問合せください
物件コード 00263-100133
物件名 石橋2丁目貸店舗
交通 駅:妙高はねうまライン 直江津駅から徒歩19分
所在地 新潟県上越市石橋2丁目5-36
物件種別 店舗
総戸数 -
構造 木造 階建 地上1階建
所在階/階数 1階/1階 号室 -
面積 60.51㎡ /18.3坪 方位 -
間取り -
賃料 16.5万円/月
管理費 -
礼金 - 敷金 2ヶ月
ほか初期費用 - その他諸費用 -
更新料 - 火災(家財)保険 借家人賠償責任保障付きテナント保険:加入要
共益費 - 町内費 -
駐車場 2台込み、有料で3台追加可能(1台6,000円/月) バイク料金 -
鍵交換費 - 清掃料 -
更新事務手数料 22,000円
保証区分 連帯保証人+保証会社
保証会社 区分:加入要
保証会社名:日本セーフティ
初回保証料:賃料等合計の100%、継続保証料:1年毎に賃料等合計の10%。※最低保証料あり
連帯保証人 区分:要
-
仲介手数料 165,000円
築年月 2022年4月(築4年)
利用制限 法人:可
学校区 直江津南小学校(1,562m)
設備 1階、駐車場あり
入居時期 2026年3月中旬以降
取引態様 仲介
備考 ・原則、家具等は撤去後の引き渡し
・水道共用のためオーナーより請求あり
・エアコンは修繕非対応
・除雪は貸主で実施(費用負担あり)
手数料負担割合/配分割合 貸主:-%   借主:100% / 元付:50%   客付:50%  
取り扱い会社

ピタットハウス上越店 日建不動産

新潟県上越市春日新田1-20-8

情報登録日 2026/02/16 次回更新予定日 2026/06/05
  • 石橋2丁目貸店舗
    ピタットハウス上越店 日建不動産
  • この物件を問い合わせる/無料
  • TEL: 025-544-6015

この物件の地図・周辺情報・行政情報

この物件の周辺情報・行政情報を詳しく見る
【周辺情報】
物件の近くにあるコンビニや銀行・学校など、アイコン付のマップで詳しく表示できます!
【行政情報】
水道料や下水道料・ガス料金など、暮らしに関係のある情報を表示しています。
ローソン 上越石橋一丁目店(コンビニ)まで420m
ナルス 国府店(スーパー)まで660m

※カメラのアイコンがある場合は、マウスをポイントするとその施設の画像がご覧いただけます。


担当取扱い店舗情報

取扱い店舗画像
ピタットハウス上越店 日建不動産
TEL: 025-544-6015
所在地: 新潟県上越市春日新田1-20-8
交通:
営業時間: 9:00~18:00/定休日:水・日・祝
免許番号: 新潟県知事(10)第3031号 この会社の情報を詳しく見る
所属団体名: 公社 新潟県宅地建物取引協会 上越支部
取引態様: 仲介
ホームページ: https://www.pitat-j.com/