物件掲載企業数:301|賃貸物件:3,261件|売買物件:3,251件|今週の登録物件:296
閲覧中のブラウザ(インターネットエクスプローラー)は非推奨ブラウザです。
物件が正しく表示されなかったり、正しく検索されない場合があります。最新のブラウザ(Google Chrome・Edgeなど)にてご利用お願いいたします。
  

新潟県上越市本町6-1-23 事務所 19.8万円の物件情報

駅近ビルをワンフロア貸切で

物件名
所在地
面積
間取り
所在階
築年数
方位
賃料
管理費等
共益費
敷金
保証金
礼金
種別
構造
高田館ビル(2階一括貸し)
新潟県上越市本町6-1-23
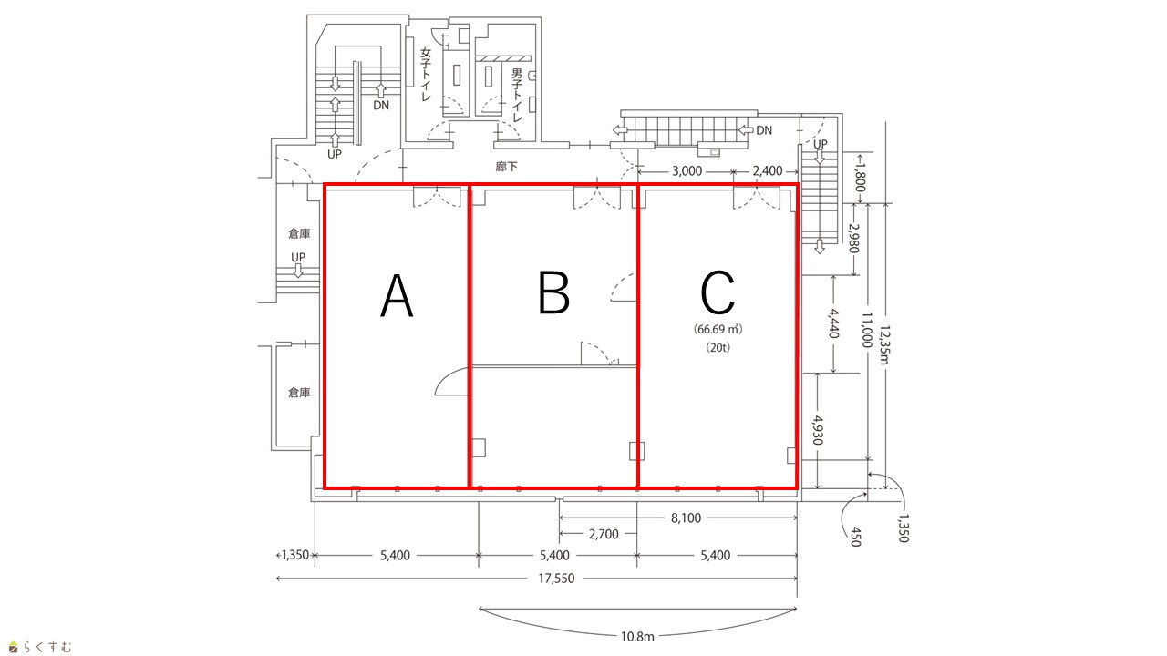
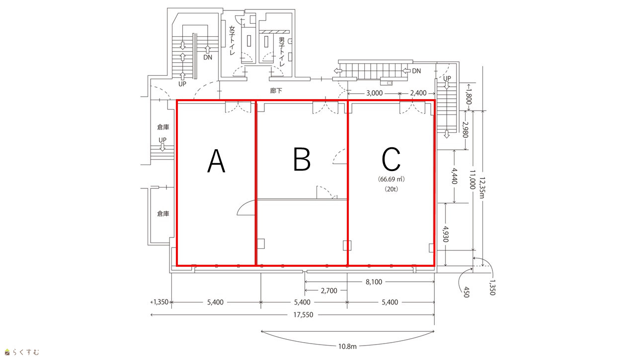
283.94㎡
(85.89坪)
-
2階
不詳
-
19.8万円
なし
なし
なし
なし
なし
事務所
鉄筋コン
  • 高田館ビル(2階一括貸し)
    ピタットハウス上越店 日建不動産
  • この物件を問い合わせる/無料
  • TEL: 025-544-6015

物件画像

外観 間取り
物件画像
※画像クリックで拡大表示
外観
物件画像
※画像クリックで拡大表示
間取り
詳細画像


物件概要

高田駅から徒歩5分の立地。 2階をワンフロアで貸し出した場合の価格です。(約60坪ほど) 分割での貸し出しもご相談ください。 トイレと流し台は共同となります。
物件コード 00263-100096
物件名 高田館ビル(2階一括貸し)
交通 駅:高田から徒歩5分
所在地 新潟県上越市本町6-1-23
物件種別 事務所
総戸数 -
構造 鉄筋コン 階建 地上4階建
所在階/階数 2階/4階 号室 -
面積 283.94㎡ /85.89坪 方位 -
間取り -
賃料 19.8万円/月
管理費 -
礼金 - 敷金 -
ほか初期費用 - その他諸費用 -
更新料 - 火災(家財)保険 加入要
共益費 - 町内費 直接支払い
駐車場 3台可能。追加分ご相談ください。消雪設備あり バイク料金 -
鍵交換費 - 清掃料 -
更新事務手数料 22,000円
保証区分 連帯保証人+保証会社
保証会社 区分:加入要
保証会社名:日本セーフティ
初回保証料:賃料等合計の100%、継続保証料:賃料等合計の0.8%。※最低保証料あり
家賃保証金 198,000円
連帯保証人 区分:要
-
仲介手数料 198,000円
築年月 不詳
利用制限 -
学校区 大町小学校(403m)
設備 2階以上、融雪設備あり、駐車場あり
入居時期 相談
取引態様 仲介
備考 1階は株式会社新潟ビルサービス 上越営業所
町内会費:直接支払い
駐車場:建物前に3台可能。追加分ご相談ください。消雪設備あり。
テナント保険:加入要
保証会社:日本セーフティー株式会社
(初回保証料:賃料等合計の100%、継続保証料:賃料等合計の0.8%。※最低保証料あり )
◆店舗・事務所はテナントショップ上越でお探しください!◆
手数料負担割合/配分割合 貸主:-%   借主:100% / 元付:50%   客付:50%  
取り扱い会社

ピタットハウス上越店 日建不動産

新潟県上越市春日新田1-20-8

情報登録日 2025/10/17 次回更新予定日 2026/06/05
  • 高田館ビル(2階一括貸し)
    ピタットハウス上越店 日建不動産
  • この物件を問い合わせる/無料
  • TEL: 025-544-6015

この物件の地図・周辺情報・行政情報

この物件の周辺情報・行政情報を詳しく見る
【周辺情報】
物件の近くにあるコンビニや銀行・学校など、アイコン付のマップで詳しく表示できます!
【行政情報】
水道料や下水道料・ガス料金など、暮らしに関係のある情報を表示しています。

担当取扱い店舗情報

取扱い店舗画像
ピタットハウス上越店 日建不動産
TEL: 025-544-6015
所在地: 新潟県上越市春日新田1-20-8
交通:
営業時間: 9:00~18:00/定休日:水・日・祝
免許番号: 新潟県知事(10)第3031号 この会社の情報を詳しく見る
所属団体名: 公社 新潟県宅地建物取引協会 上越支部
取引態様: 仲介
ホームページ: https://www.pitat-j.com/