貸工場(食品工場)冷凍加工商品 令和6年7月末まで稼働。すぐ使用できます。
| 物件名
							 所在地  | 
							面積
							 間取り 所在階  | 
							築年数
							 方位  | 
							賃料
							 管理費等 共益費  | 
							敷金
							 保証金 礼金  | 
							種別
							 構造  | 
						
|---|---|---|---|---|---|
| 柏崎市安田 貸食品工場 新潟県柏崎市安田4112-1  | 883.36㎡ (267.21坪) - -  | 51年 -  | 150万円 なし なし  | 6ヶ月 なし なし  | 倉庫・工場・その他 鉄骨  | 
						
| 外観 | 間取り | 
|---|---|
| 
								 ※画像クリックで拡大表示 外観1 
							 | 
							
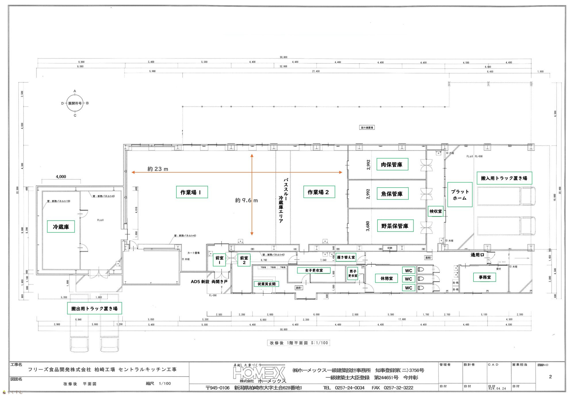
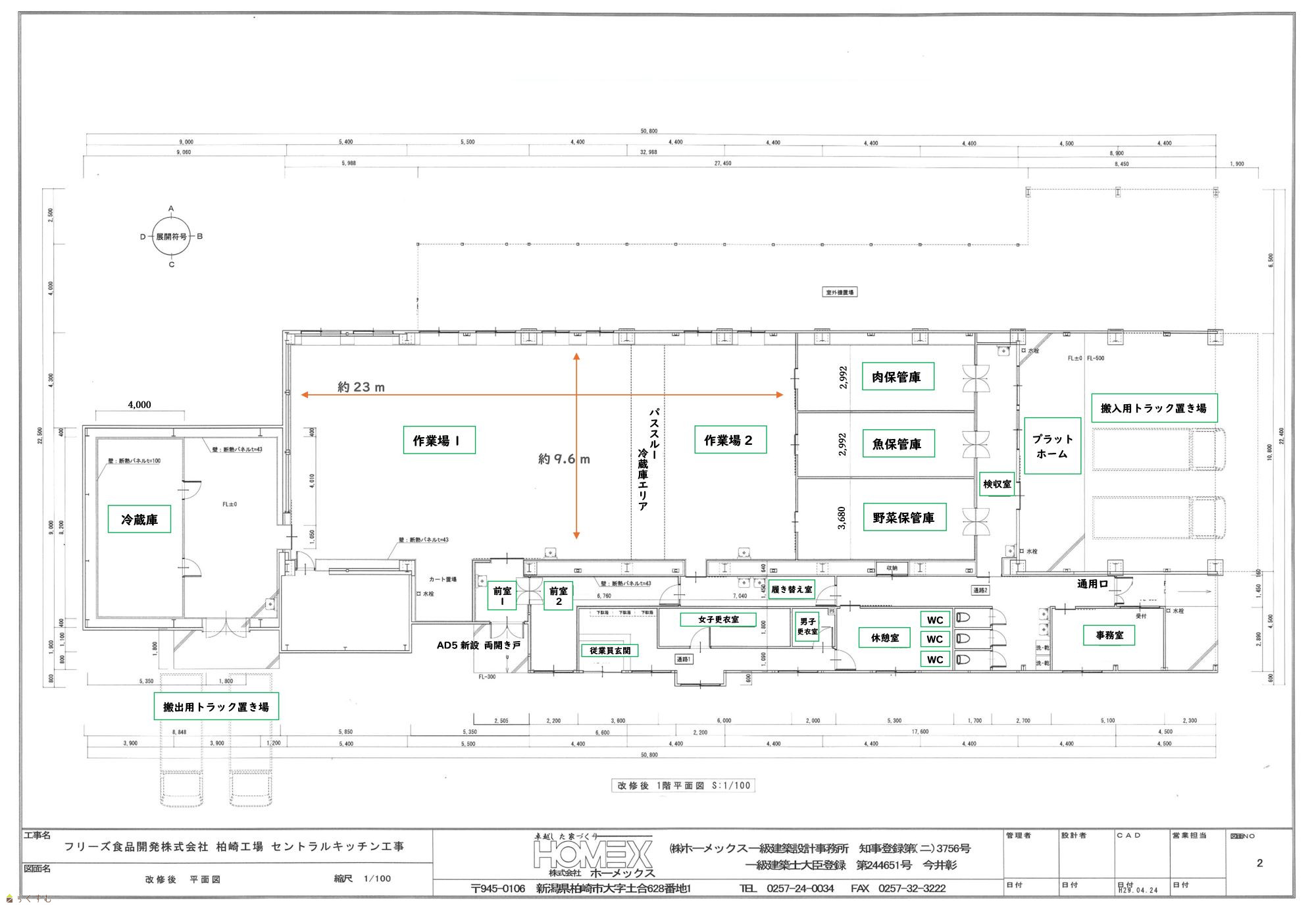
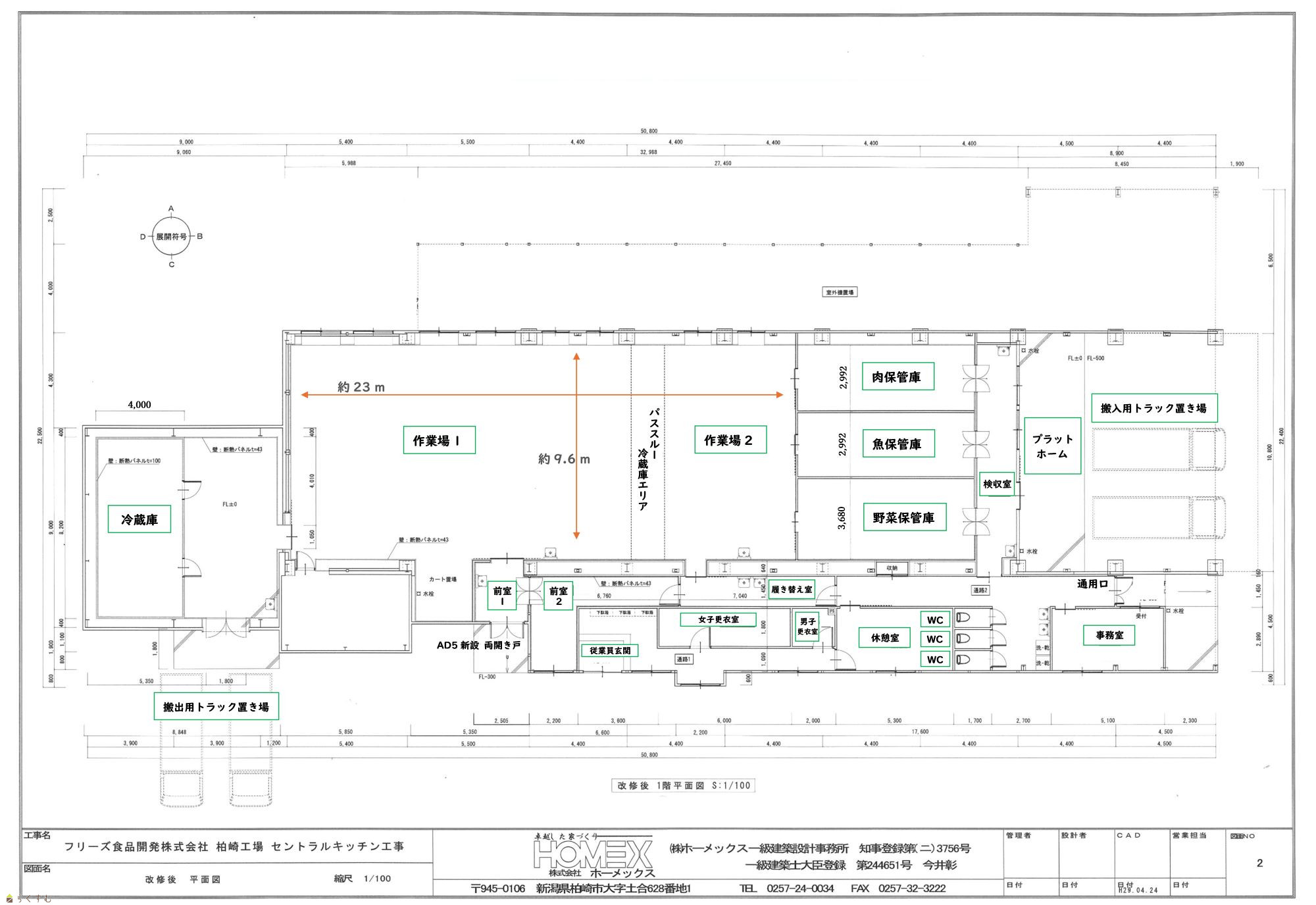
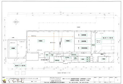
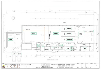
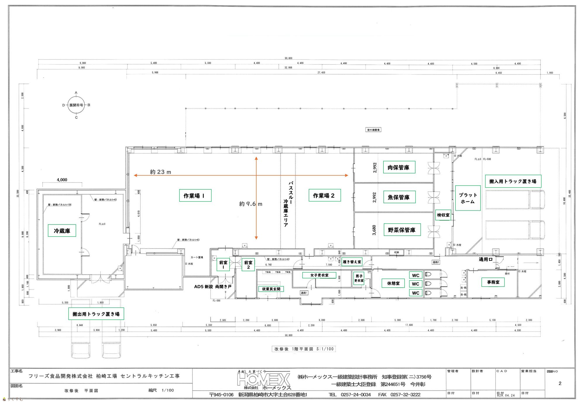
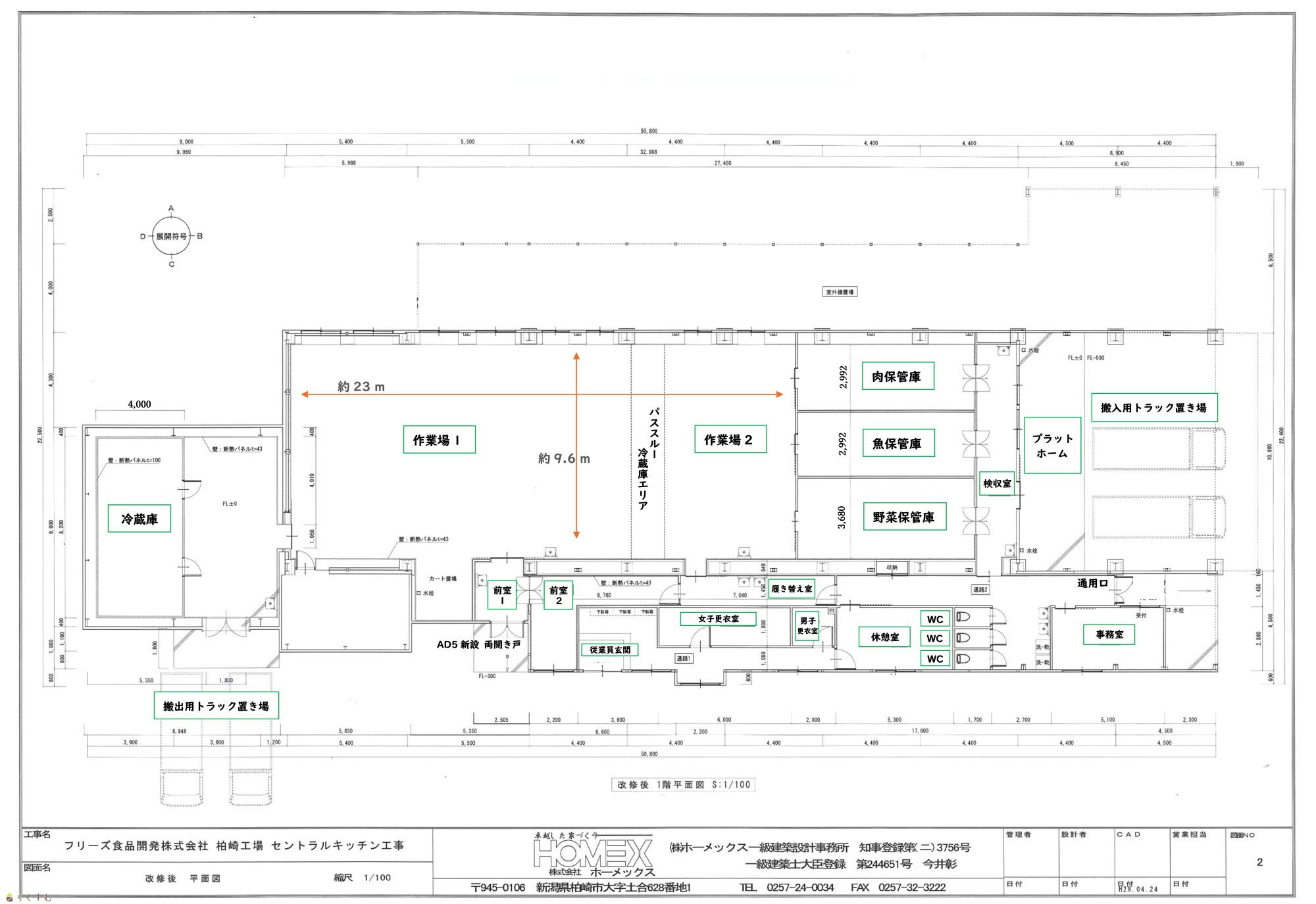
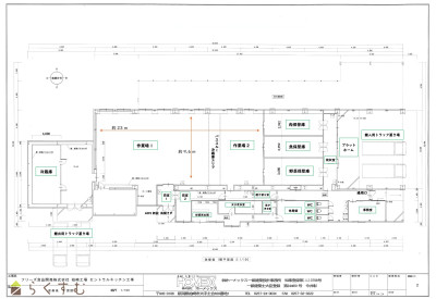
								![]() ※画像クリックで拡大表示 平面図 
							 | 
						
| 詳細画像 | |
| 
								 | 
						|
| 全館空調、プレハブ冷凍庫、パスツルー冷蔵庫、エアカーテン、オゾン殺菌、調理用什器一式含む | |||
| 物件コード | 00227-100002 | ||
|---|---|---|---|
| 物件名 | 柏崎市安田 貸食品工場 | ||
| 交通 | 駅:信越線 安田駅から徒歩28分、バス:平井から徒歩3分 | ||
| 所在地 | 新潟県柏崎市安田4112-1 | ||
| 物件種別 | 倉庫・工場・その他 | ||
| 総戸数 | 1戸 | ||
| 構造 | 鉄骨 | 階建 | 地上1階建 | 
| 所在階/階数 | - | 号室 | - | 
| 面積 | 883.36㎡ /267.21坪 | 方位 | - | 
| 間取り | - | ||
| 賃料 | 150万円/月
								
								 | 
							管理費 | - | 
| 礼金 | - | 敷金 | 6ヶ月
								
								 | 
						
| ほか初期費用 | - | その他諸費用 | - | 
| 更新料 | - | 火災(家財)保険 | 別途必須 | 
| 共益費 | - | 町内費 | 別途 | 
| 駐車場 | 込み | バイク料金 | - | 
| 鍵交換費 | - | 清掃料 | - | 
| 更新事務手数料 | - | ||
| 保証区分 | 
								連帯保証人+緊急連絡先 | 
						||
| 保証会社 | 
							   区分:指定なし
							   
							  	 
							   
							   							    -  | 
							
						||
| 連帯保証人 | 
							   区分:要 -  | 
						||
| 仲介手数料 | 
								
																	1,650,000円
									 | 
							
						||
| 築年月 | 1974年4月(築51年) | ||
| 利用制限 | - | ||
| 学校区 | 田尻小学校(806m)・東中学校(563m) | ||
| 設備 | 即引き渡し、駐車場あり | ||
| 入居時期 | 即入居可 | ||
| 取引態様 | 仲介 | ||
| 備考 | 貸工場(食品工場)冷凍加工商品 令和6年7月末まで稼働。すぐ使用できます。 全館空調、プレハブ冷凍庫、パスツルー冷蔵庫、エアカーテン、オゾン殺菌、調理用什器一式含む。 駐車20台以上可能。  | 
						||
| 手数料負担割合/配分割合 | 貸主:-% 借主:100% / 元付:-% 客付:-% | ||
| 取り扱い会社 | 
								 リメイク株式会社 新潟県柏崎市土合615番地  | 
						||
| 情報登録日 | 2024/08/28 | 次回更新予定日 | 2025/11/18 | 
| TEL: | 0257-41-6381 | |
|---|---|---|
| 所在地: | 新潟県柏崎市土合615番地 | |
| 交通: | ||
| 営業時間: | 8:30~17:30/定休日:土日年末年始・夏季など | |
| 免許番号: | 新潟県知事(2)第5472号 | 
										
											 | 
								
| 所属団体名: | 公社新潟県宅地建物取引業協会 柏崎支部 | |
| 取引態様: | 仲介 | |
| ホームページ: | https://remake-kabu.com/ | |