物件掲載企業数:296|賃貸物件:3,618件|売買物件:3,316件|今週の登録物件:244
閲覧中のブラウザ(インターネットエクスプローラー)は非推奨ブラウザです。
物件が正しく表示されなかったり、正しく検索されない場合があります。最新のブラウザ(Google Chrome・Edgeなど)にてご利用お願いいたします。
  

新潟県上越市とよば150 マンション 1DK 5.6万円の物件情報

人気のとよば!1LDKメゾネット!インターネット無料!

物件名
所在地
面積
間取り
所在階
築年数
方位
賃料
管理費等
共益費
敷金
保証金
礼金
種別
構造
M.MICASA
106号室
新潟県上越市とよば150
44.13㎡
(13.34坪)
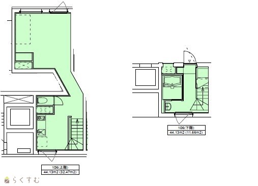
1DK
1階
15年
5.6万円
4,000円/月
-
1ヶ月
なし
なし
アパート・マンション・一戸建て
鉄筋コン
  • M.MICASA
    株式会社リビングギャラリー上越センター店
  • この物件を問い合わせる/無料
  • TEL: 025-521-6322

物件画像

外観 間取り
物件画像
※画像クリックで拡大表示
外観
物件画像
※画像クリックで拡大表示
間取図
詳細画像


物件概要

上越のデザイナーズマンションです!駐車場消雪設備、光インターネット無料!
物件コード 00203-114194
物件名 M.MICASA
交通 駅:南高田
所在地 新潟県上越市とよば150
物件種別 アパート・マンション・一戸建て
総戸数 19戸
構造 鉄筋コン 階建 地上4階建
所在階/階数 1階/4階 号室 106号室
面積 44.13㎡ /13.34坪 方位
間取り 1DK (洋室:7)
賃料 5.6万円/月
管理費 4,000円/月
礼金 -
敷金 1ヶ月
ほか初期費用 7150円(投てき消火剤/1本:7150円) その他諸費用 町内会費:500円
更新料 - 火災(家財)保険 15,000円
損害保険:2年間1.5万円
駐車場 3,300円
有敷地内 3300円
バイク料金 -
鍵交換費 - 清掃料 -
投てき消火剤/1本 7,150円
町内会費 500円
更新事務手数料 -
保証区分 保証会社のみ
保証会社 区分:加入要
保証会社名:その他 (-)
初回月額賃料合計の50%が必要、更新1万円/年毎
連帯保証人 区分:不要+保証会社利用が必要
-
仲介手数料 61,600円
築年月 2010年4月(築15年)
利用制限 単身者:可、ペット:不可、事務所利用:不可
学校区 -
設備 日当り良好、デザイナーズ、エレベーター、宅配BOX、敷地内ゴミ置き場、メゾネット、駐車2台可、駐輪場あり、駐車場 礼金なし、駐車場 敷金なし、玄関オートロック、カードキー、システムキッチン、IHクッキングヒーター、バストイレ別、追いだき機能付き、浴室乾燥機、温水洗浄便座、洗面所独立、シャワー付き洗面台、エアコン、オール電化、3か所給湯、洗濯機置場 室内、脱衣所、床下収納、クロゼット、BS端子・アンテナ、TVモニター付きインターホン、インターネット無料、インターネット接続可、インターネット 光、メゾネット式
入居時期 2026年1月下旬 入居可能予定
取引態様 仲介
備考 -
手数料負担割合/配分割合 貸主:0%   借主:100% / 元付:50%   客付:50%  
取り扱い会社

株式会社リビングギャラリー上越センター店

新潟県上越市春日山町3-20-53

情報登録日 2025/11/06 次回更新予定日 2025/11/21
  • M.MICASA
    株式会社リビングギャラリー上越センター店
  • この物件を問い合わせる/無料
  • TEL: 025-521-6322

この物件の地図・周辺情報・行政情報

この物件の周辺情報・行政情報を詳しく見る
【周辺情報】
物件の近くにあるコンビニや銀行・学校など、アイコン付のマップで詳しく表示できます!
【行政情報】
水道料や下水道料・ガス料金など、暮らしに関係のある情報を表示しています。

担当取扱い店舗情報

取扱い店舗画像
株式会社リビングギャラリー上越センター店
TEL: 025-521-6322
所在地: 新潟県上越市春日山町3-20-53
交通:
営業時間: 10:00~18:00/定休日:水曜日
免許番号: 国土交通大臣(5)第5854号 この会社の情報を詳しく見る
所属団体名: 公社新潟県宅地建物取引業協会 上越支部
取引態様: 仲介
ホームページ: http://www.living-gallery-chintai.com/shop/jouetsu