| 物件名
							 所在地  | 
							面積
							 間取り 所在階  | 
							築年数
							 方位  | 
							賃料
							 管理費等 共益費  | 
							敷金
							 保証金 礼金  | 
							種別
							 構造  | 
						
|---|---|---|---|---|---|
| 三越アパート 102号室 新潟県長岡市新保1丁目8-27  | 38㎡ (11.49坪) 1LDK 1階  | 57年 -  | 3.8万円 なし あり  | 1ヶ月 なし 1ヶ月  | アパート・マンション・一戸建て 木造  | 
						
| 外観 | 間取り | 
|---|---|
								![]() ※画像クリックで拡大表示 外観・手前が駐車場です 
							 | 
							
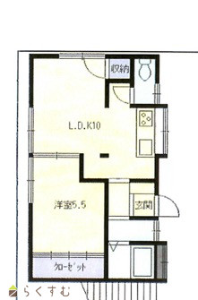
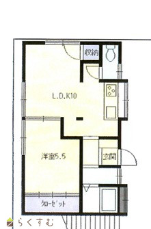
								![]() ※画像クリックで拡大表示 間取図 
							 | 
						
| 詳細画像 | |
| 
								 | 
						|
| 物件コード | 00201-100116 | ||
|---|---|---|---|
| 物件名 | 三越アパート | ||
| 交通 | 駅:上越新幹線 長岡駅から徒歩33分、バス:新保1丁目から徒歩1分 | ||
| 所在地 | 新潟県長岡市新保1丁目8-27 | ||
| 物件種別 | アパート・マンション・一戸建て | ||
| 総戸数 | 4戸 | ||
| 構造 | 木造 | 階建 | 地上2階建 | 
| 所在階/階数 | 1階/2階 | 号室 | 102号室 | 
| 面積 | 38㎡ /11.49坪 | 方位 | - | 
| 間取り | 1LDK (洋室:5.5) LDK10  | 
						||
| 賃料 | 3.8万円/月
								
								 | 
							管理費 | - | 
| 礼金 | 1ヶ月
								
								 | 
							敷金 | 1ヶ月
								
								 | 
						
| ほか初期費用 | - | その他諸費用 | - | 
| 更新料 | - | 火災(家財)保険 | 
																									
										20,000円
										 | 
						
| 共益費 | 																	
										5,000円
										 | 
							町内費 | - | 
| 駐車場 | 
																									
										
										 | 
							
														バイク料金 | - | 
| 鍵交換費 | - | 清掃料 | - | 
| 更新事務手数料 | - | ||
| 保証区分 | 
								連帯保証人のみ | 
						||
| 保証会社 | 
							   区分:指定なし
							   
							  	 
							   
							   							    -  | 
							
						||
| 連帯保証人 | 
							   区分:要 連帯保証人が居られない場合は、保証会社のご利用も可能です。ご相談ください。  | 
						||
| 仲介手数料 | 
								
																	41,800円
									 | 
							
						||
| 築年月 | 1968年9月(築57年) | ||
| 利用制限 | 法人:可、ペット:可 | ||
| 学校区 | 富曾亀小学校(552m)・東北中学校(793m) | ||
| 設備 | バス停近く、駐車場1台無料、角住居、ガスコンロ設置可、バストイレ別、温水洗浄便座、エアコン、都市ガス、下水、クロゼット、押入、各居室照明、即入居可、保証会社利用可能、ペット相談可 | ||
| 入居時期 | 即入居可 | ||
| 取引態様 | 仲介 | ||
| 備考 | - | ||
| 手数料負担割合/配分割合 | 貸主:0% 借主:100% / 元付:50% 客付:50% | ||
| 取り扱い会社 | 
								 株式会社 悠久不動産 新潟県長岡市西神田町1丁目6-23 チサンマンション西神田1階  | 
						||
| 情報登録日 | 2025/06/13 | 次回更新予定日 | 2025/11/19 | 
| 
																		ローソン 長岡新保店(コンビニ)まで220m セブン-イレブン 長岡永田店(コンビニ)まで390m 原信 新保店(スーパー)まで710m 良食生活館 川崎店(スーパー)まで740m ドラッグトップス 新保薬局(ドラッグストア)まで740m  | 
																
																		田村クリニック(病院)まで290m 大光銀行 新保支店(銀行)まで30m 長岡信用金庫 美園支店(銀行)まで590m 長岡永田郵便局(郵便局)まで300m  | 
															
※カメラのアイコンがある場合は、マウスをポイントするとその施設の画像がご覧いただけます。
						| TEL: | 0258-94-6123 | |
|---|---|---|
| 所在地: | 新潟県長岡市西神田町1丁目6-23 チサンマンション西神田1階 | |
| 交通: | 長岡駅 | |
| 営業時間: | 10:00~19:00/定休日:日曜:祝日 | |
| 免許番号: | 新潟県知事(2)第5322号 | 
										
											 | 
								
| 所属団体名: | 公社新潟県宅地建物取引協会長岡支部 | |
| 取引態様: | 仲介 | |
| ホームページ: | http://yu-kyu-fudosan.co.jp/ | |