物件掲載企業数:299|賃貸物件:3,627件|売買物件:3,333件|今週の登録物件:211
閲覧中のブラウザ(インターネットエクスプローラー)は非推奨ブラウザです。
物件が正しく表示されなかったり、正しく検索されない場合があります。最新のブラウザ(Google Chrome・Edgeなど)にてご利用お願いいたします。
  

新潟県上越市本町4丁目2番19号 事務所 14.85万円の物件情報

城下町の情緒あふれる高田!こちらのテナント入居者を募集中---!!

物件名
所在地
面積
間取り
所在階
築年数
方位
賃料
管理費等
共益費
敷金
保証金
礼金
種別
構造
オージュビル 
A号室
新潟県上越市本町4丁目2番19号
88.68㎡
(26.82坪)
-
2階
34年
-
14.85万円
5,000円/月
なし
13.5万円
なし
なし
事務所
鉄骨
  • オージュビル 
    株式会社 お不動さん
  • この物件を問い合わせる/無料
  • TEL: 025-520-8197

物件画像

外観 間取り
物件画像
※画像クリックで拡大表示
外観
物件画像
※画像クリックで拡大表示
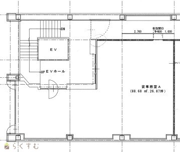
間取り図
詳細画像


物件概要

イレブンプラザ、高田駅、郵便局、各金融機関の近く!
物件コード 00200-100097
物件名 オージュビル 
交通 駅:妙高はねうまライン 高田駅から徒歩8分、バス:本町四丁目から徒歩2分
所在地 新潟県上越市本町4丁目2番19号
物件種別 事務所
総戸数 -
構造 鉄骨 階建 地上3階建
所在階/階数 2階/3階 号室 A号室
面積 88.68㎡ /26.82坪 方位 -
間取り -
賃料 14.85万円/月
(課税表記)
管理費 5,000円/月
礼金 -
敷金 13.5万円
ほか初期費用 - その他諸費用 -
更新料 - 火災(家財)保険 テナント保険 事務所用(2年)21,300円
共益費 - 町内費 1,000円 別途町内に納入
駐車場 - バイク料金 -
鍵交換費 - 清掃料 -
審査事務手数料 2,200円
更新事務手数料 -
保証区分 保証会社+緊急連絡先
保証会社 区分:加入要
保証会社名:CIZ
保証料:月額合計賃料の77%、更新料なし
家賃保証金 118,965円
連帯保証人 区分:不要
-
仲介手数料 148,500円
築年月 1990年11月(築34年)
利用制限 ペット:不可、事務所利用:可、ルームシェア:可
学校区 大町小学校(138m)・城東中学校(1,445m)
設備 2階以上、エアコン、男女トイレ別、即引き渡し可、スケルトン、エレベーター、給湯
入居時期 即入居可
取引態様 仲介
備考 ・約27坪のワンフロア。一ヶ所コーナーあり事務所や店舗などの用途可能です。
・駐車場:なし。近隣の本町4丁目 月極駐車場別途契約(税込)7,700円(日中使用)~ 11,000円(フルタイム)
・給湯室、エレベーターあり。トイレは男女別です。
・保証会社・テナント保険:要加入。
・保証料は月額合計賃料の67.5%:賃料、管理費、町内会費の合計
・その他:賃料は、課税表示。常時内覧可能!!
手数料負担割合/配分割合 貸主:-%   借主:100% / 元付:50%   客付:50%  
取り扱い会社

株式会社 お不動さん

上越市中央一丁目12番36号

情報登録日 2024/11/01 次回更新予定日 2025/11/09
  • オージュビル 
    株式会社 お不動さん
  • この物件を問い合わせる/無料
  • TEL: 025-520-8197

この物件の地図・周辺情報・行政情報

この物件の周辺情報・行政情報を詳しく見る
【周辺情報】
物件の近くにあるコンビニや銀行・学校など、アイコン付のマップで詳しく表示できます!
【行政情報】
水道料や下水道料・ガス料金など、暮らしに関係のある情報を表示しています。
ローソン 上越高田駅前店(コンビニ)まで340m
NewDaysミニ 高田1号(コンビニ)まで550m
ウエルシア上越本町店 (調剤薬局)(ドラッグストア)まで100m
清華ファミリークリニック(病院)まで170m
藤林内科医院(病院)まで230m
栗原医院(病院)まで490m
丸山内科医院・高田駅前クリニック(病院)まで560m
(医)高田西城会 高田西城病院(病院)まで690m
(株)八十二銀行 ローンプラザ上越(銀行)まで150m
八十二銀行 高田支店(銀行)まで150m
上越信用金庫 高田中央支店(銀行)まで200m
高田本町まちづくり株式会社(銀行)まで250m
北越銀行 高田支店(銀行)まで250m
(株)大光銀行 高田支店ローンスクエア上越(銀行)まで350m
新潟県労働金庫 高田支店(銀行)まで450m
第四銀行 高田営業部本町出張所(銀行)まで310m
第四銀行 高田営業部(銀行)まで610m
(株)第四銀行 上越コンサルティングプラザ(銀行)まで610m
高田駅前郵便局(郵便局)まで430m
高田寺町郵便局(郵便局)まで560m
高田郵便局(郵便局)まで720m

※カメラのアイコンがある場合は、マウスをポイントするとその施設の画像がご覧いただけます。


担当取扱い店舗情報

取扱い店舗画像
株式会社 お不動さん
TEL: 025-520-8197
所在地: 上越市中央一丁目12番36号
交通: 直江津駅
営業時間: 8:30~17:30/定休日:日曜・祝日・第2土曜日・第4土曜日
免許番号: 新潟県知事(2)第5449号 この会社の情報を詳しく見る
所属団体名: 公社 新潟県宅地建物取引協会 上越支部
取引態様: 仲介
ホームページ: https://ofudousan.amebaownd.com/