閑静な住宅街に立つ賃貸マンション。内装のDIYの相談も可能です。
| 物件名
							 所在地  | 
							面積
							 間取り 所在階  | 
							築年数
							 方位  | 
							賃料
							 管理費等 共益費  | 
							敷金
							 保証金 礼金  | 
							種別
							 構造  | 
						
|---|---|---|---|---|---|
| 泉ハイツ 206号室 206号室 新潟県長岡市中島6丁目6-10  | 76.98㎡ (23.28坪) 3DK 2階  | 46年 南  | 4.2万円 なし なし  | 1ヶ月 なし なし  | アパート・マンション・一戸建て 鉄骨鉄筋コン  | 
						
| 外観 | 間取り | 
|---|---|
								![]() ※画像クリックで拡大表示 建物外観 
							 | 
							
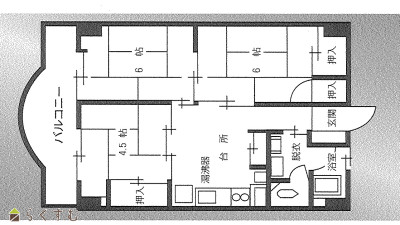
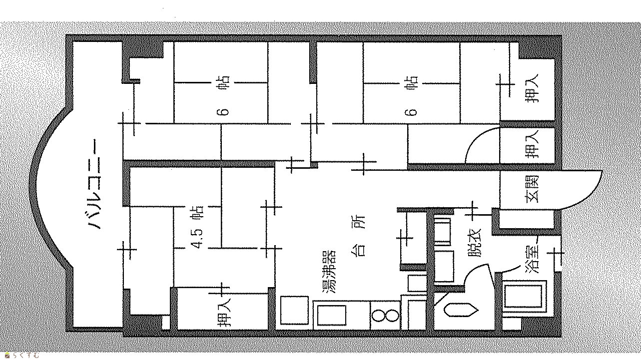
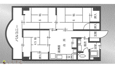
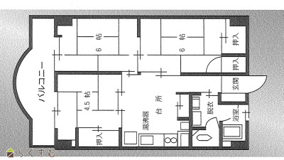
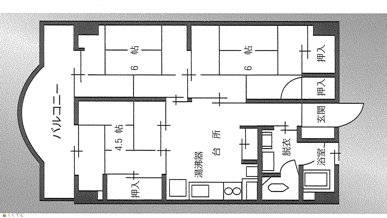
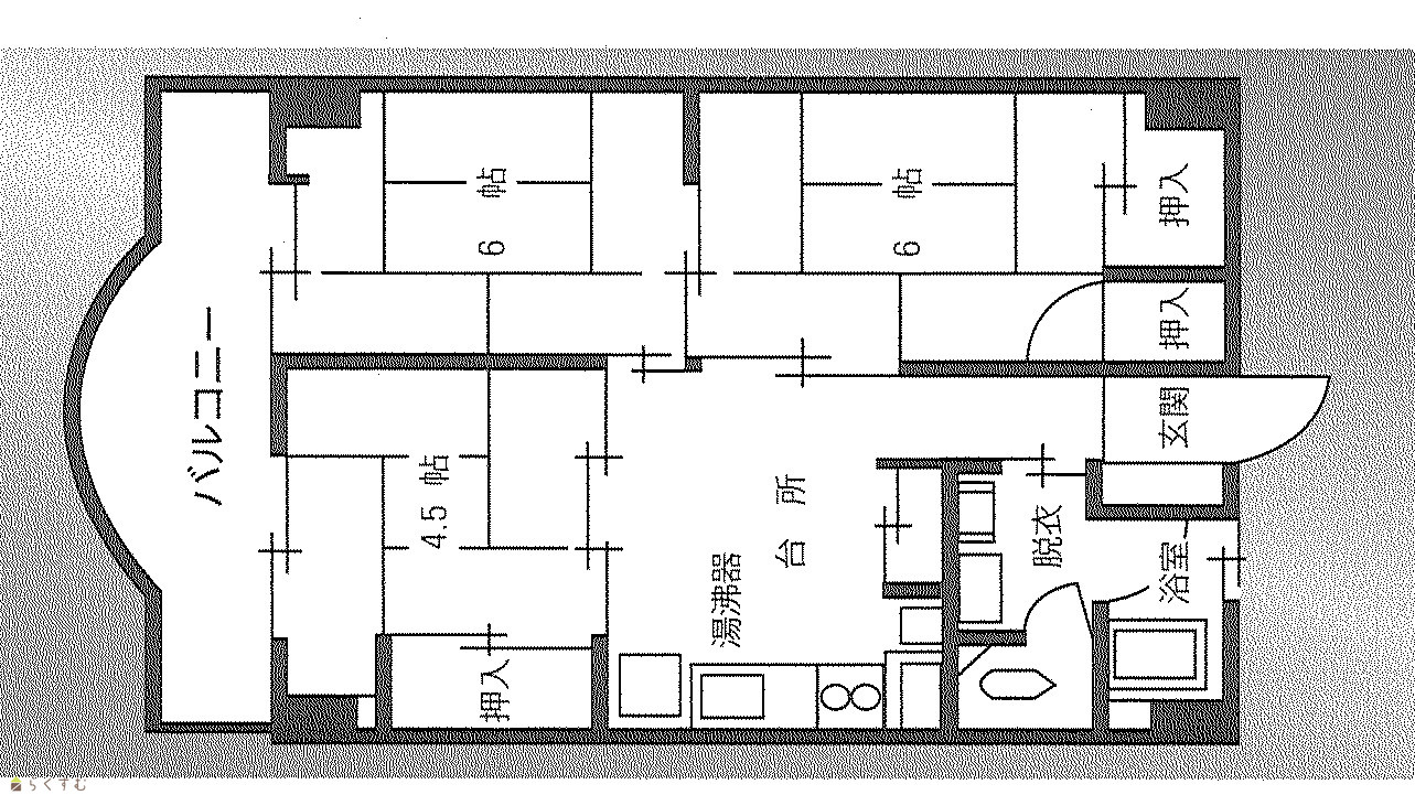
								![]() ※画像クリックで拡大表示 間取り 3DK 
							 | 
						
| 詳細画像 | |
| 
								 | 
						|
| 閑静な住宅街に立つ賃貸マンション。内装のDIYの相談も可能です。 | |||
| 物件コード | 00192-100018 | ||
|---|---|---|---|
| 物件名 | 泉ハイツ 206号室 | ||
| 交通 | 駅:信越線 長岡駅から徒歩19分、バス:中島6丁目から徒歩3分 | ||
| 所在地 | 新潟県長岡市中島6丁目6-10 | ||
| 物件種別 | アパート・マンション・一戸建て | ||
| 総戸数 | 40戸 | ||
| 構造 | 鉄骨鉄筋コン | 階建 | 地上6階建 | 
| 所在階/階数 | 2階/6階 | 号室 | 206号室 | 
| 面積 | 76.98㎡ /23.28坪 | 方位 | 南 | 
| 間取り | 3DK (和室:4.5畳、6畳、6畳) | ||
| 賃料 | 4.2万円/月
								
								 | 
							管理費 | - | 
| 礼金 | - | 敷金 | 1ヶ月
								
								 | 
						
| ほか初期費用 | - | その他諸費用 | - | 
| 更新料 | - | 火災(家財)保険 | - | 
| 共益費 | - | 町内費 | 
																									
										300円
										 | 
						
| 駐車場 | 
																									
										8,000円
										 | 
							
														バイク料金 | - | 
| 鍵交換費 | - | 清掃料 | - | 
| 更新事務手数料 | - | ||
| 保証区分 | 
								連帯保証人のみ | 
						||
| 保証会社 | 
							   区分:指定なし
							   
							  	 
							   
							   							    -  | 
							
						||
| 連帯保証人 | 
							   区分:要 -  | 
						||
| 仲介手数料 | 
								
																	46,200円
									 | 
							
						||
| 築年月 | 1979年1月(築46年) | ||
| 利用制限 | - | ||
| 学校区 | 表町小学校・東中学校 | ||
| 設備 | 閑静な住宅街、バス停近く、日当り良好、公園そば、エレベーター、敷地内ゴミ置き場、駐輪場あり、南向き、バストイレ別、洗面所独立、エアコン、都市ガス、バルコニー | ||
| 入居時期 | 即入居可 | ||
| 取引態様 | 仲介 | ||
| 備考 | - | ||
| 手数料負担割合/配分割合 | 貸主:-% 借主:100% / 元付:50% 客付:50% | ||
| 取り扱い会社 | 
								 (株)池田組 新潟県長岡市中島3-8-5  | 
						||
| 情報登録日 | 2023/01/27 | 次回更新予定日 | 2025/11/18 | 
						| TEL: | 0258-84-7781 | |
|---|---|---|
| 所在地: | 新潟県長岡市中島3-8-5 | |
| 交通: | 長岡駅 | |
| 営業時間: | 8:00~17:00/定休日:日曜、祝日、第2・4土曜 | |
| 免許番号: | 新潟県知事(5)第4552号 | 
										
											 | 
								
| 所属団体名: | 公社 新潟県宅地建物取引協会 長岡支部 | |
| 取引態様: | 仲介 | |
| ホームページ: | http://local-life-standard.com/ | |