物件掲載企業数:295|賃貸物件:3,620件|売買物件:3,318件|今週の登録物件:227
閲覧中のブラウザ(インターネットエクスプローラー)は非推奨ブラウザです。
物件が正しく表示されなかったり、正しく検索されない場合があります。最新のブラウザ(Google Chrome・Edgeなど)にてご利用お願いいたします。
  

新潟県長岡市中沢3丁目352-8 アパート 1R 2.2万円の物件情報

【フリーレントあり】シェアメイトと適度に距離感を保ちながら暮らせるシェアハウス。生活に必要な家電や調理器具などが揃っているため、気軽に新生活がスタートできます。

物件名
所在地
面積
間取り
所在階
築年数
方位
賃料
管理費等
共益費
敷金
保証金
礼金
種別
構造
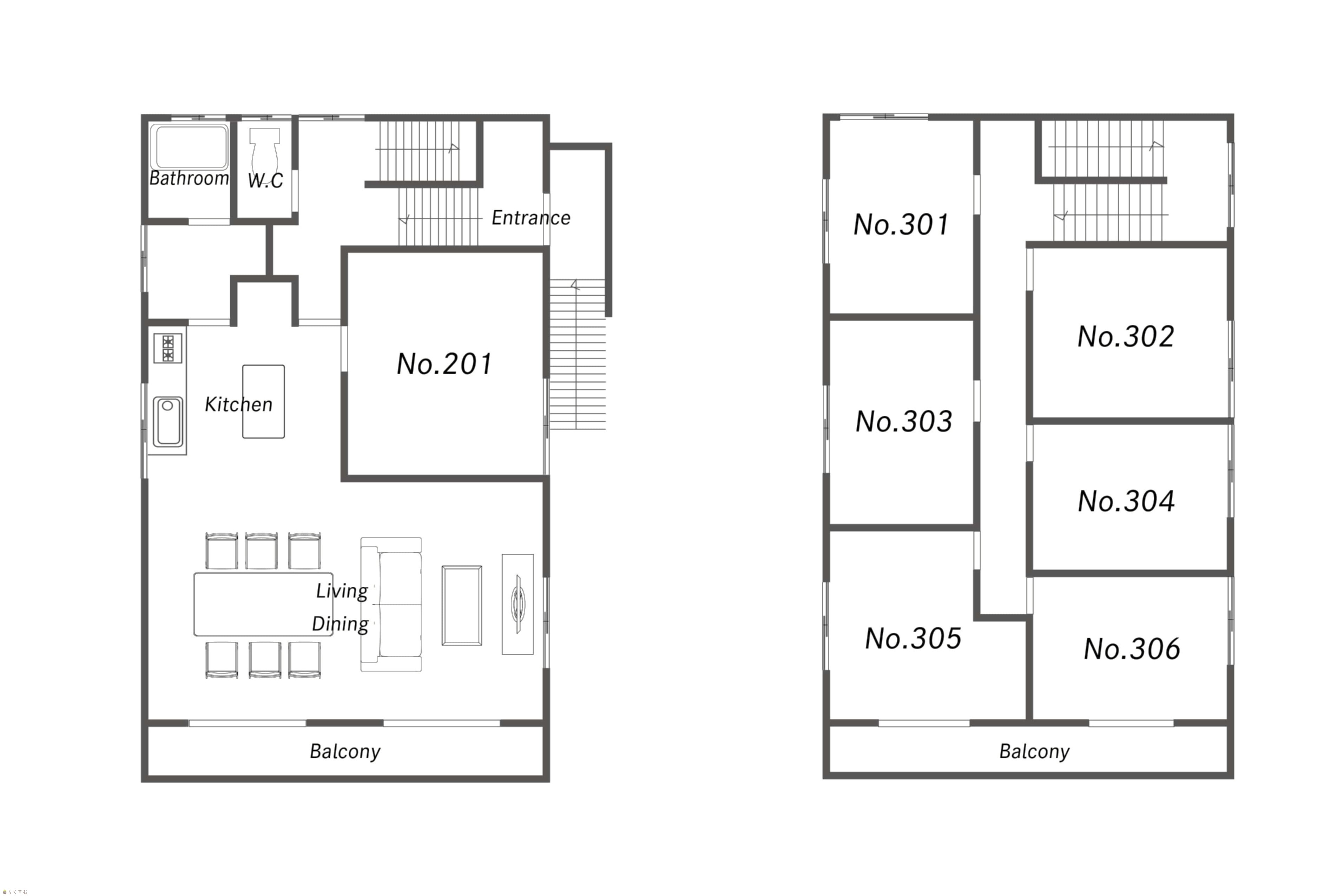
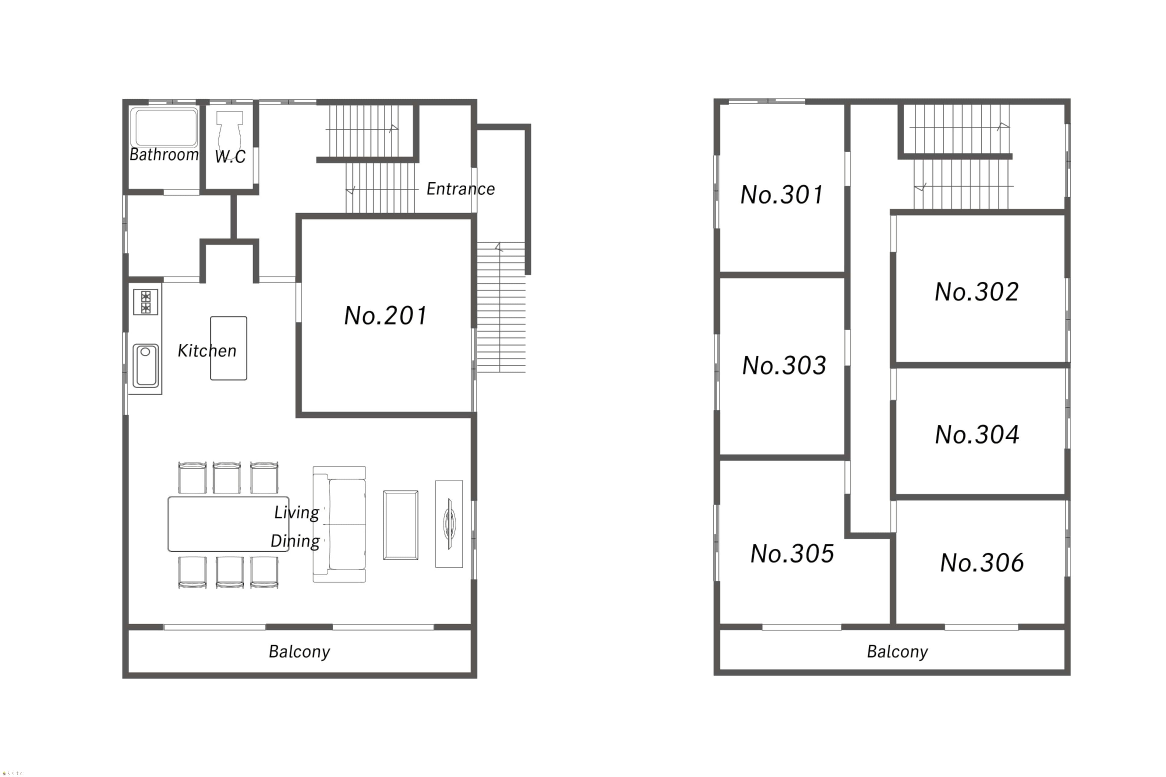
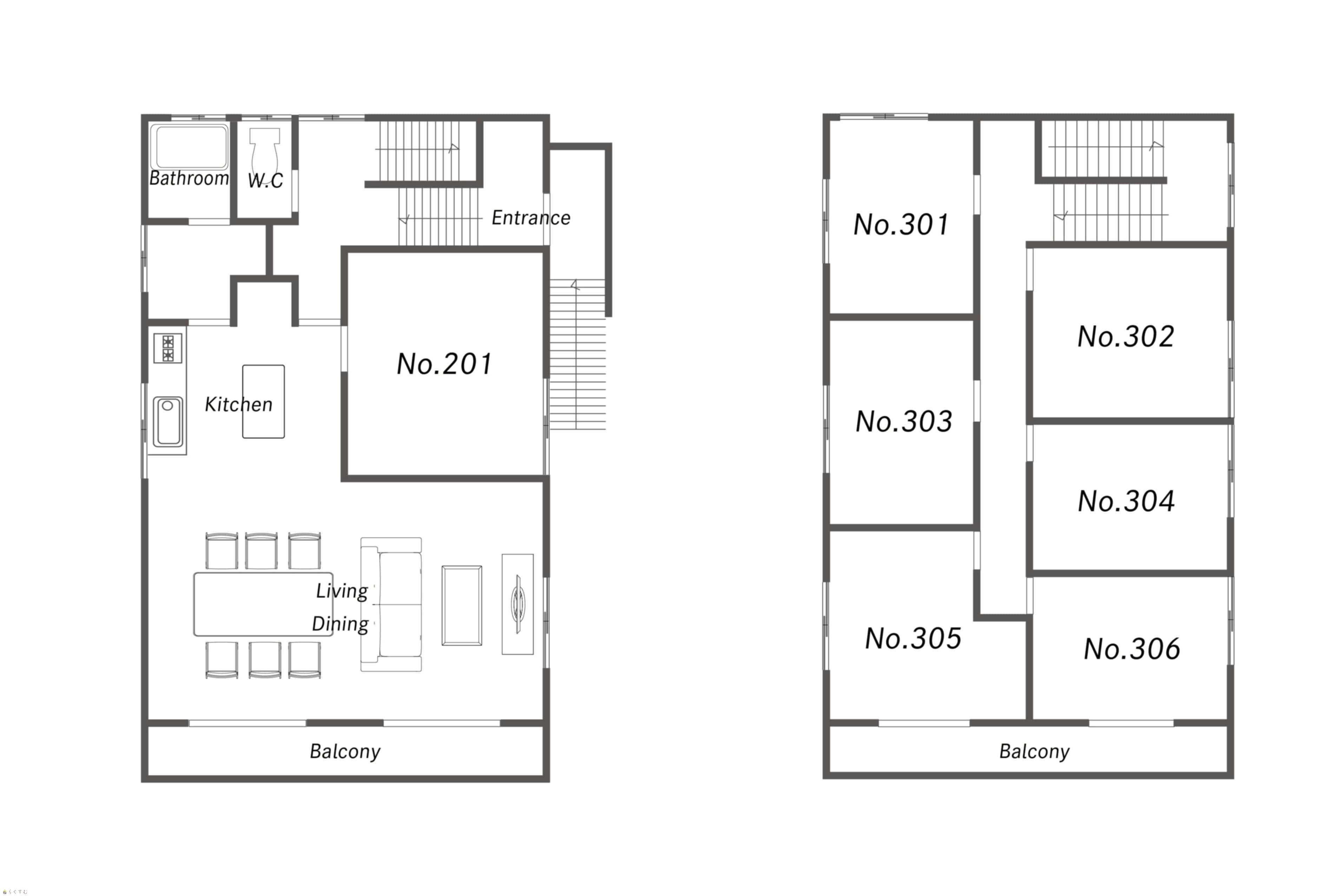
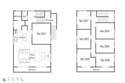
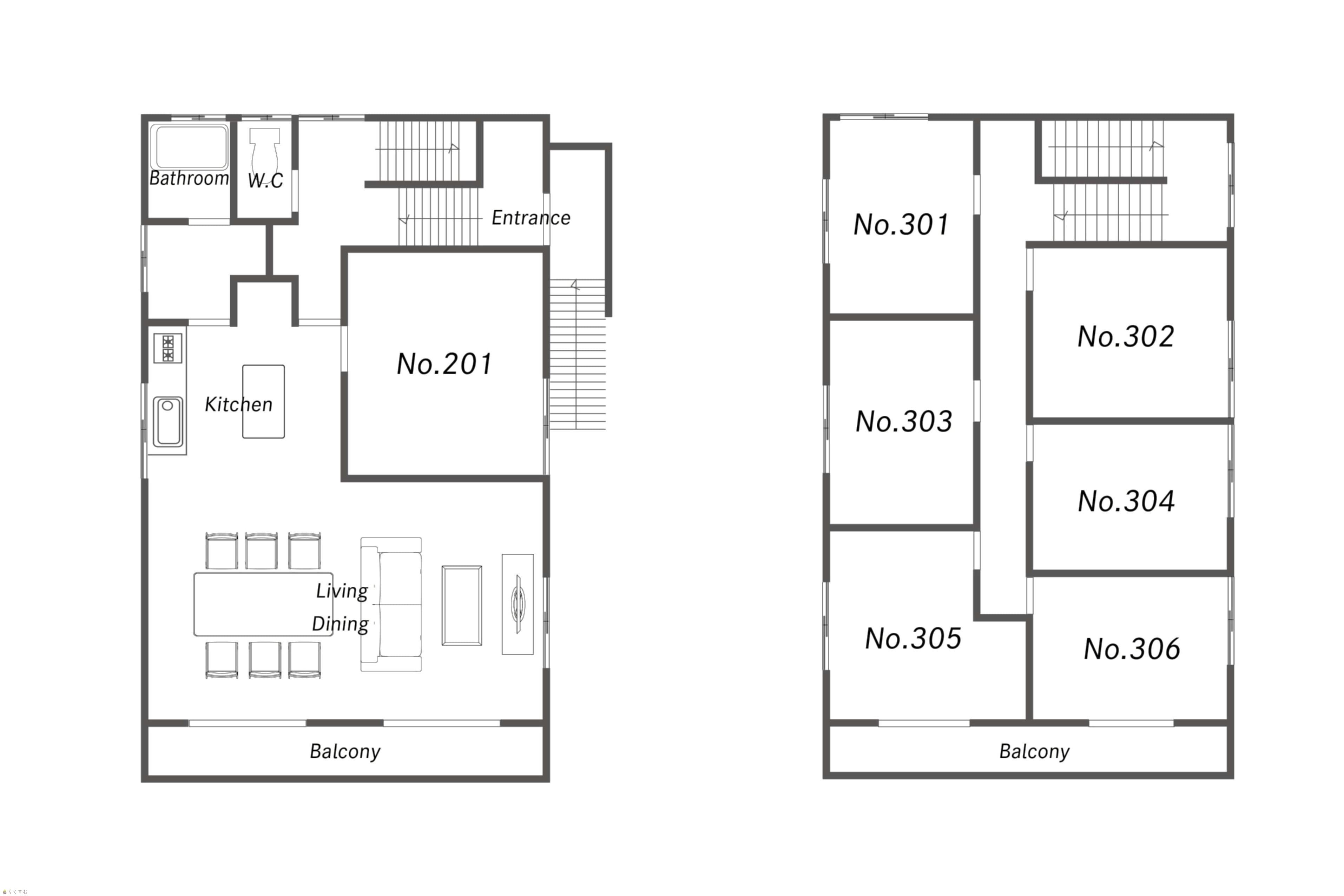
コモンズ中沢(シェアハウス)
201号室
新潟県長岡市中沢3丁目352-8
9.3㎡
(2.81坪)
1R
2階
45年
指定なし
2.2万円
なし
あり
なし
なし
なし
アパート・マンション・一戸建て
軽量鉄骨
  • コモンズ中沢(シェアハウス)
    (株)池田組 
  • この物件を問い合わせる/無料
  • TEL: 0258-84-7781

物件画像

外観 間取り
物件画像
※画像クリックで拡大表示
外観
物件画像
※画像クリックで拡大表示
詳細画像


物件概要

【フリーレントあり】シェアメイトと適度に距離感を保ちながら暮らせるシェアハウス。生活に必要な家電や調理器具などが揃っているため、気軽に新生活がスタートできます。
物件コード 00192-100011
物件名 コモンズ中沢(シェアハウス)
交通 駅:信越線 長岡駅から徒歩29分、バス:中沢三叉路から徒歩2分
所在地 新潟県長岡市中沢3丁目352-8
物件種別 アパート・マンション・一戸建て
総戸数 -
構造 軽量鉄骨 階建 地上3階建
所在階/階数 2階/3階 号室 201号室
面積 9.3㎡ /2.81坪 方位 指定なし
間取り 1R
専有面積は個室の面積です。シェアハウスのため個室の他に共用のLDK、風呂、トイレがあります。
賃料 2.2万円/月
管理費 -
礼金 -
敷金 -
ほか初期費用 - その他諸費用 -
更新料 - 火災(家財)保険 -
共益費 15,000円
町内費 -
駐車場 - バイク料金 -
鍵交換費 - 清掃料 -
更新事務手数料 -
保証区分 連帯保証人のみ
保証会社 区分:指定なし
-
連帯保証人 区分:要
-
仲介手数料 -
築年月 1980年1月(築45年)
利用制限 学生:可、単身者:可、ペット:不可、事務所利用:不可
学校区 栖吉小学校(727m)・栖吉中学校(882m)
設備 バス停近く、日当り良好、1階高床式、上階なし、倉庫、タイヤ置き場、敷地内ゴミ置き場、24時間ゴミ出し可、カーポートあり、駐輪場あり、バイク置き場、駐車場1台無料、駐車場 礼金なし、駐車場 敷金なし、2口コンロ、ガスコンロ 設置済み、バストイレ別、ユニットバス、暖房便座、エアコン、全室エアコン、都市ガス、バルコニー、洗濯機置場 室内、脱衣所、各居室照明、インターネット接続可、即入居可、仲介手数料不要、礼金不要、敷金・礼金不要、フリーレント(詳細は備考欄)、学生向け、一人暮らし・学生向け、家電付き、家具付き、長岡大学生におすすめ
入居時期 4月から入居可
取引態様 仲介
備考 ・バイク、自転車置き場あり。
・共益費には、水道/電気/ガス/インターネット/日用消耗品/調味料/共用部の定期的な清掃などが含まれます。
・4月から入居可(入居にあたっては、簡単な面談があります。)
・仲介手数料なし(貸主負担)

現在の空き部屋と賃料は以下の通りです。
201:22,000円/月 9.3㎡(6畳)

<フリーレント行っています>
新規入居時の際に一定期間、家賃が0円となります。何かと出費のかさむ新生活のタイミング、ぜひフリーレントをご利用ください。

▼誰でも適用可能
・フリーレント期間:1ヵ月 条件:入居期間1年以上
▼学生限定
・フリーレント期間:2.5ヵ月 条件:入居期間2年以上
・フリーレント期間:1.5ヵ月 条件:入居期間1年以上

※フリーレント適用期間も共益費は免除されませんのでご注意ください。
手数料負担割合/配分割合 貸主:-%   借主:-% / 元付:-%   客付:-%  
取り扱い会社

(株)池田組 

新潟県長岡市中島3-8-5

情報登録日 2025/04/10 次回更新予定日 2025/11/18
  • コモンズ中沢(シェアハウス)
    (株)池田組 
  • この物件を問い合わせる/無料
  • TEL: 0258-84-7781

この物件の地図・周辺情報・行政情報

この物件の周辺情報・行政情報を詳しく見る
【周辺情報】
物件の近くにあるコンビニや銀行・学校など、アイコン付のマップで詳しく表示できます!
【行政情報】
水道料や下水道料・ガス料金など、暮らしに関係のある情報を表示しています。
セブンイレブン 長岡中沢4丁目店(コンビニ)まで440m
業務スーパー 中沢店(スーパー)まで680m

※カメラのアイコンがある場合は、マウスをポイントするとその施設の画像がご覧いただけます。


担当取扱い店舗情報

取扱い店舗画像
(株)池田組 
TEL: 0258-84-7781
所在地: 新潟県長岡市中島3-8-5
交通: 長岡駅
営業時間: 8:00~17:00/定休日:日曜、祝日、第2・4土曜
免許番号: 新潟県知事(5)第4552号 この会社の情報を詳しく見る
所属団体名: 公社 新潟県宅地建物取引協会 長岡支部
取引態様: 仲介
ホームページ: http://local-life-standard.com/