物件掲載企業数:301|賃貸物件:3,261件|売買物件:3,251件|今週の登録物件:245
閲覧中のブラウザ(インターネットエクスプローラー)は非推奨ブラウザです。
物件が正しく表示されなかったり、正しく検索されない場合があります。最新のブラウザ(Google Chrome・Edgeなど)にてご利用お願いいたします。
  

新潟県長岡市蓮潟5丁目1-72 事務所 35.2万円の物件情報

国道8号線沿いで店舗・事務所に最適です。駐車場10台付です!

物件名
所在地
面積
間取り
所在階
築年数
方位
賃料
管理費等
共益費
敷金
保証金
礼金
種別
構造
蓮潟 吉沢商会ビル(中2階)
新潟県長岡市蓮潟5丁目1-72
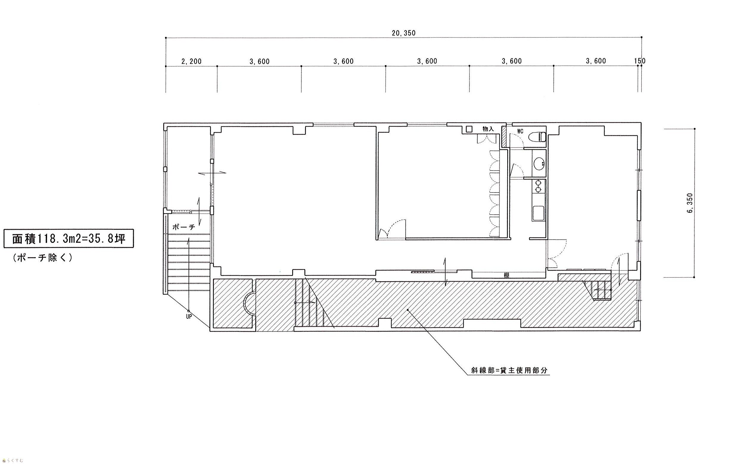
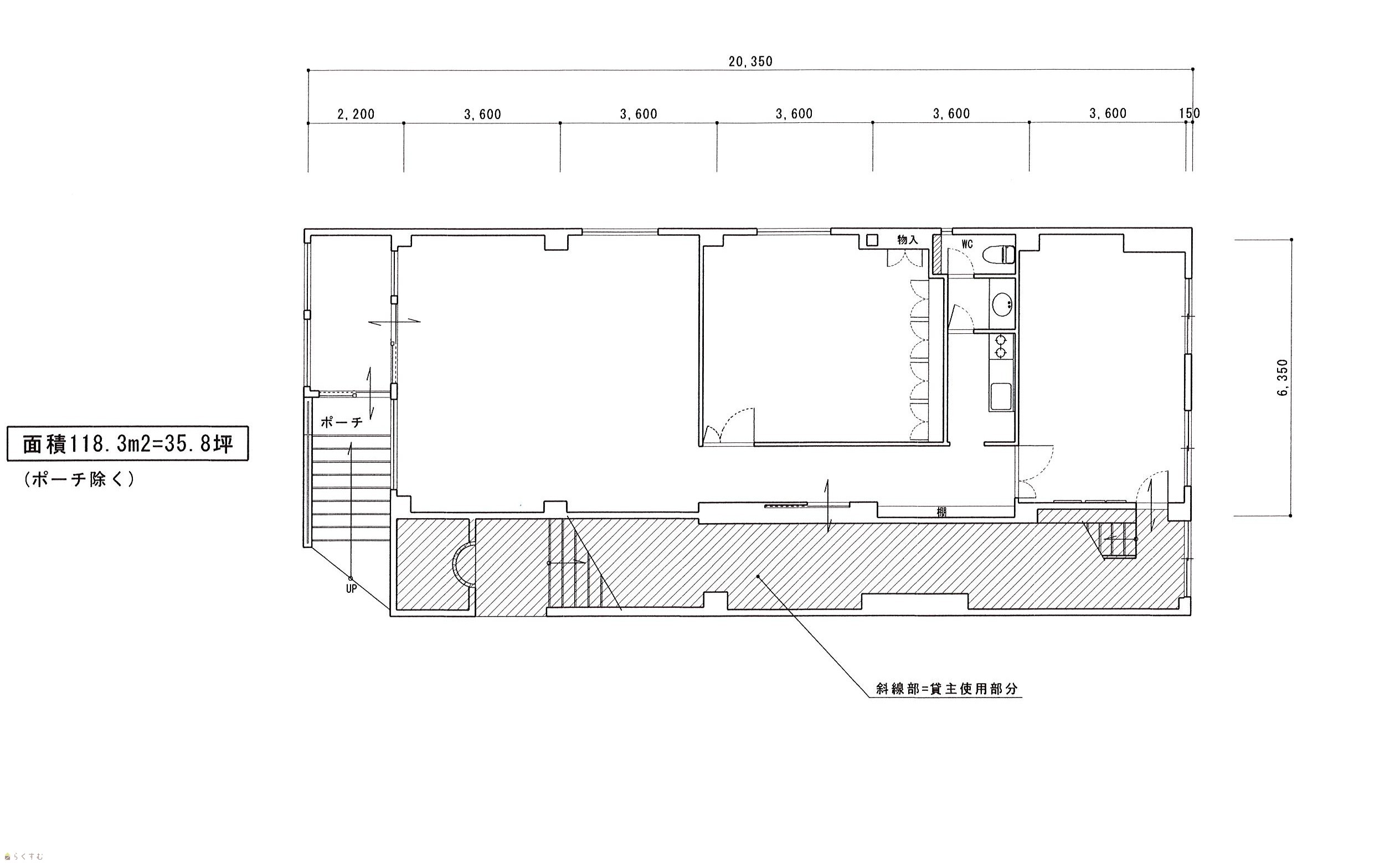
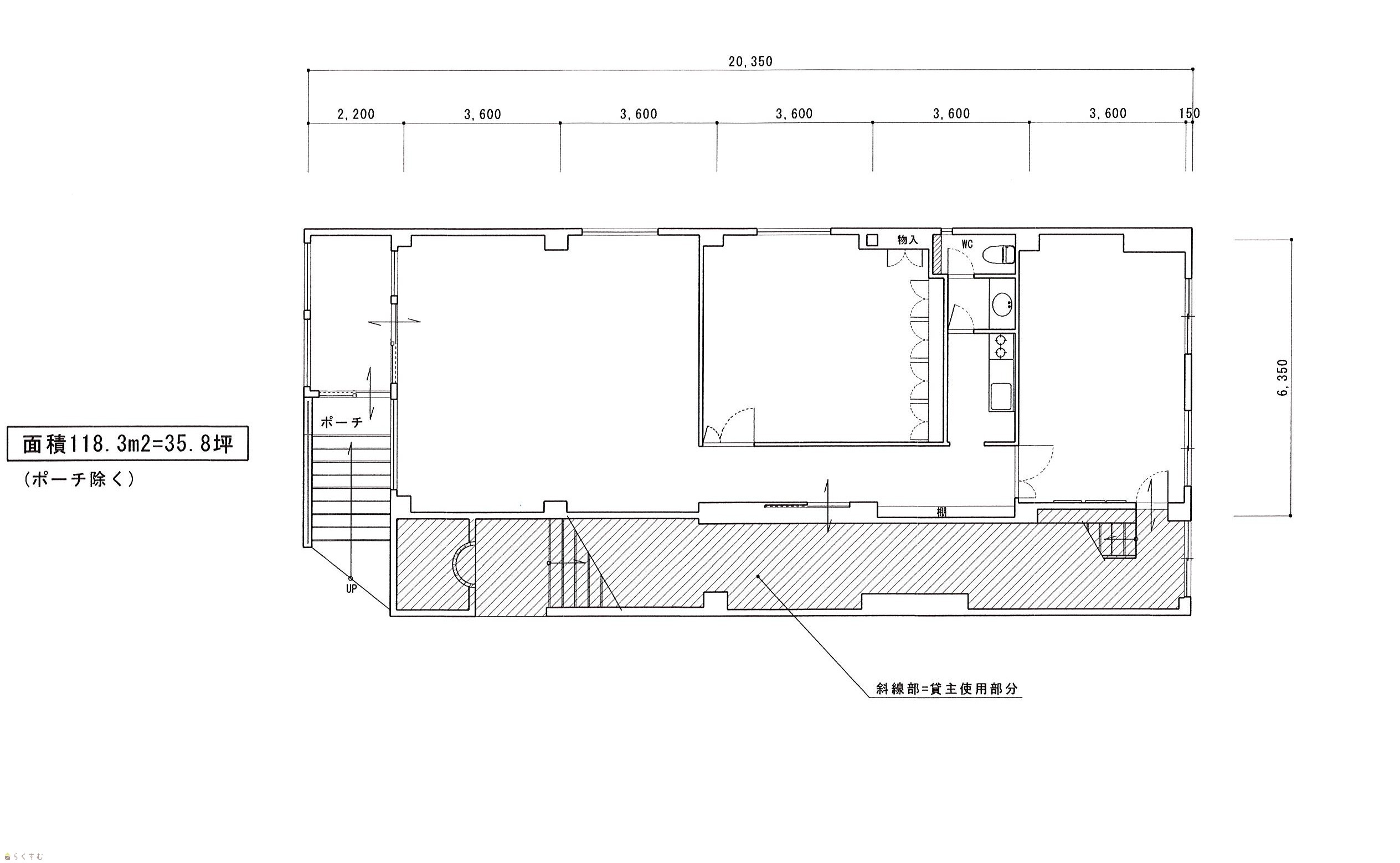
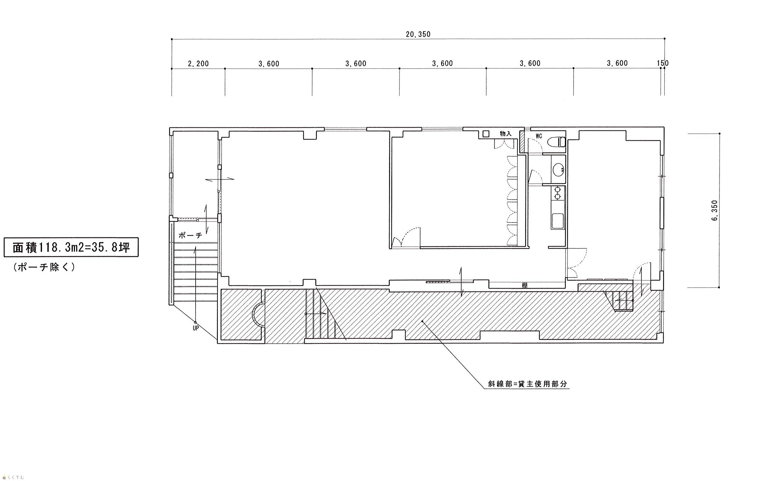
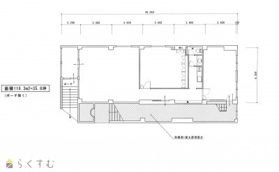
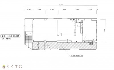
118.3㎡
(35.78坪)
-
2階
35年
-
35.2万円
なし
なし
3ヶ月
なし
なし
事務所
鉄筋コン
  • 蓮潟 吉沢商会ビル(中2階)
    有限会社 遠藤機販
  • この物件を問い合わせる/無料
  • TEL: 0258-28-3200

物件画像

外観 間取り
物件画像
※画像クリックで拡大表示
外観
物件画像
※画像クリックで拡大表示
図面
詳細画像


物件概要

国道8号線沿いで店舗・事務所に最適です。駐車場10台付です!
物件コード 00186-100020
物件名 蓮潟 吉沢商会ビル(中2階)
交通 駅:上越新幹線 長岡駅から徒歩54分、バス:長岡造形大学前から徒歩6分
所在地 新潟県長岡市蓮潟5丁目1-72
物件種別 事務所
総戸数 -
構造 鉄筋コン 階建 地上4階建
所在階/階数 2階/4階 号室 -
面積 118.3㎡ /35.78坪 方位 -
間取り -
賃料 35.2万円/月
管理費 -
礼金 -
敷金 3ヶ月
ほか初期費用 - その他諸費用 -
更新料 - 火災(家財)保険 借家人賠償保険要加入
共益費 - 町内費 別途実費
駐車場 10台付 バイク料金 -
鍵交換費 - 清掃料 -
更新事務手数料 -
保証区分 連帯保証人のみ
保証会社 区分:指定なし
-
連帯保証人 区分:要
-
仲介手数料 352,000円
築年月 1991年3月(築35年)
利用制限 -
学校区 上川西小学校(1,310m)・江陽中学校(1,978m)
設備 エアコン、駐車場あり
入居時期 相談
取引態様 仲介
備考 -
手数料負担割合/配分割合 貸主:-%   借主:100% / 元付:-%   客付:-%  
取り扱い会社

有限会社 遠藤機販

新潟県長岡市藤沢1-8-20

情報登録日 2025/04/29 次回更新予定日 2026/06/06
  • 蓮潟 吉沢商会ビル(中2階)
    有限会社 遠藤機販
  • この物件を問い合わせる/無料
  • TEL: 0258-28-3200

この物件の地図・周辺情報・行政情報

この物件の周辺情報・行政情報を詳しく見る
【周辺情報】
物件の近くにあるコンビニや銀行・学校など、アイコン付のマップで詳しく表示できます!
【行政情報】
水道料や下水道料・ガス料金など、暮らしに関係のある情報を表示しています。

担当取扱い店舗情報

取扱い店舗画像
有限会社 遠藤機販
TEL: 0258-28-3200
所在地: 新潟県長岡市藤沢1-8-20
交通:
営業時間: 8:30~18:00/定休日:日曜…祝日
免許番号: 新潟県知事(9)第3297号 この会社の情報を詳しく見る
所属団体名: 公社 新潟県宅地建物取引業協会 長岡支部
取引態様: 仲介
ホームページ: http://endokihan.net