物件掲載企業数:299|賃貸物件:3,627件|売買物件:3,333件|今週の登録物件:211
閲覧中のブラウザ(インターネットエクスプローラー)は非推奨ブラウザです。
物件が正しく表示されなかったり、正しく検索されない場合があります。最新のブラウザ(Google Chrome・Edgeなど)にてご利用お願いいたします。
  

新潟県上越市本町5丁目3-26内山ビル2階 事務所 8.8万円の物件情報

本町通りの貸事務所です!

物件名
所在地
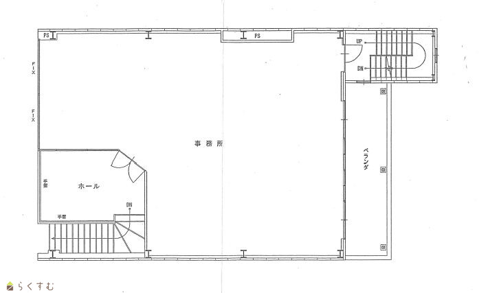
面積
間取り
所在階
築年数
方位
賃料
管理費等
共益費
敷金
保証金
礼金
種別
構造
内山ビル2階
新潟県上越市本町5丁目3-26内山ビル2階
132.24㎡
(40坪)
-
2階
51年
-
8.8万円
なし
あり
2ヶ月
なし
なし
事務所
鉄骨
  • 内山ビル2階
    株式会社アール ミニミニFC上越大通り店
  • この物件を問い合わせる/無料
  • TEL: 025-520-8035

物件画像

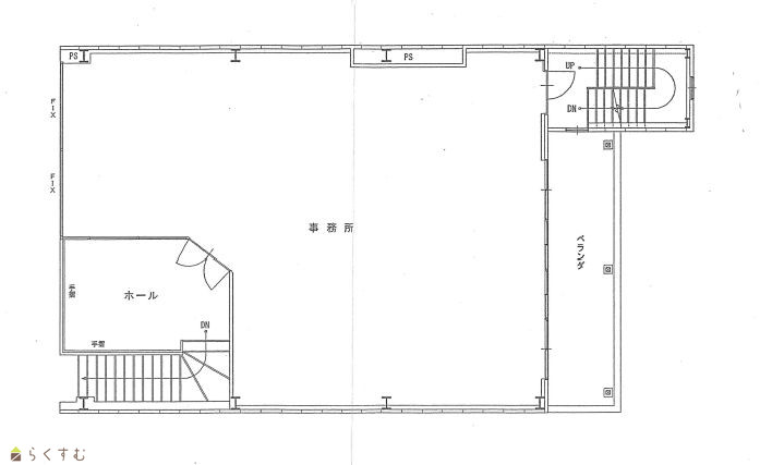
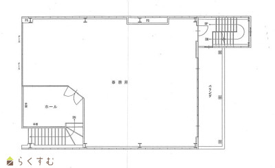
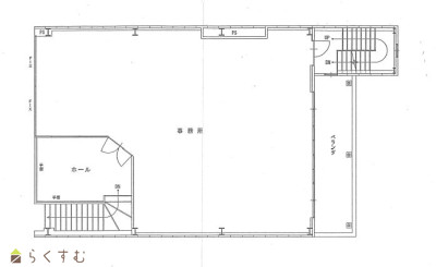
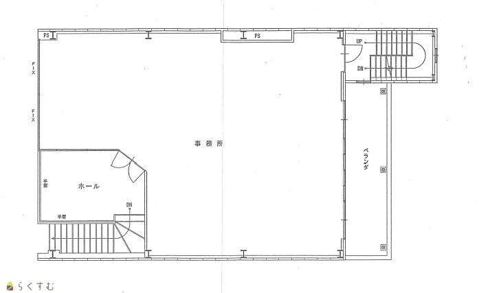
外観 間取り
物件画像
※画像クリックで拡大表示
2階部分
物件画像
※画像クリックで拡大表示
間取り
詳細画像


物件概要

エアコン2台付き♪
物件コード 00182-100044
物件名 内山ビル2階
交通 駅:妙高はねうまライン 高田駅から徒歩6分
所在地 新潟県上越市本町5丁目3-26内山ビル2階
物件種別 事務所
総戸数 -
構造 鉄骨 階建 地上4階建
所在階/階数 2階/4階 号室 -
面積 132.24㎡ /40坪 方位 -
間取り -
賃料 8.8万円/月
管理費 -
礼金 - 敷金 2ヶ月
ほか初期費用 - その他諸費用 -
更新料 20,000円
(2年)
火災(家財)保険 20,000円
共益費 4,400円
町内費 -
駐車場 - バイク料金 -
鍵交換費 - 清掃料 -
更新事務手数料 -
保証区分 連帯保証人+保証会社
保証会社 区分:加入要
保証会社名:その他 (ジェイリース)
月額賃料等総額の100%
連帯保証人 区分:要
-
仲介手数料 88,000円
築年月 1974年9月(築51年)
利用制限 法人:相談
学校区 大町小学校(209m)・城東中学校(1,436m)
設備 2階以上、エアコン
入居時期 相談
取引態様 仲介
備考 -
手数料負担割合/配分割合 貸主:-%   借主:-% / 元付:-%   客付:-%  
取り扱い会社

株式会社アール ミニミニFC上越大通り店

新潟県上越市新光町2-3-11

情報登録日 2025/01/20 次回更新予定日 2025/11/09
  • 内山ビル2階
    株式会社アール ミニミニFC上越大通り店
  • この物件を問い合わせる/無料
  • TEL: 025-520-8035

この物件の地図・周辺情報・行政情報

この物件の周辺情報・行政情報を詳しく見る
【周辺情報】
物件の近くにあるコンビニや銀行・学校など、アイコン付のマップで詳しく表示できます!
【行政情報】
水道料や下水道料・ガス料金など、暮らしに関係のある情報を表示しています。

担当取扱い店舗情報

取扱い店舗画像
株式会社アール ミニミニFC上越大通り店
TEL: 025-520-8035
所在地: 新潟県上越市新光町2-3-11
交通: 妙高はねうまライン 春日山駅
営業時間: 10:00~18:00/定休日:水曜日
免許番号: 新潟県知事(2)第5384号 この会社の情報を詳しく見る
所属団体名: 公社 全日本不動産協会 新潟県本部
取引態様: 仲介
ホームページ: http://r-joetsuchintai.com/