物件掲載企業数:299|賃貸物件:3,004件|売買物件:3,235件|今週の登録物件:297
閲覧中のブラウザ(インターネットエクスプローラー)は非推奨ブラウザです。
物件が正しく表示されなかったり、正しく検索されない場合があります。最新のブラウザ(Google Chrome・Edgeなど)にてご利用お願いいたします。
  

新潟県柏崎市宝町3番85号トレジャータウン202 アパート 2LDK 5.2万円の物件情報

駅近く、買い物にも便利! ウォシュレット付! Wifi LAN インターネット無料♪

物件名
所在地
面積
間取り
所在階
築年数
方位
賃料
管理費等
共益費
敷金
保証金
礼金
種別
構造
トレジャータウン
202号室
新潟県柏崎市宝町3番85号トレジャータウン202
53.08㎡
(16.05坪)
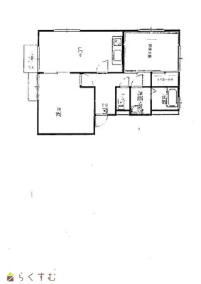
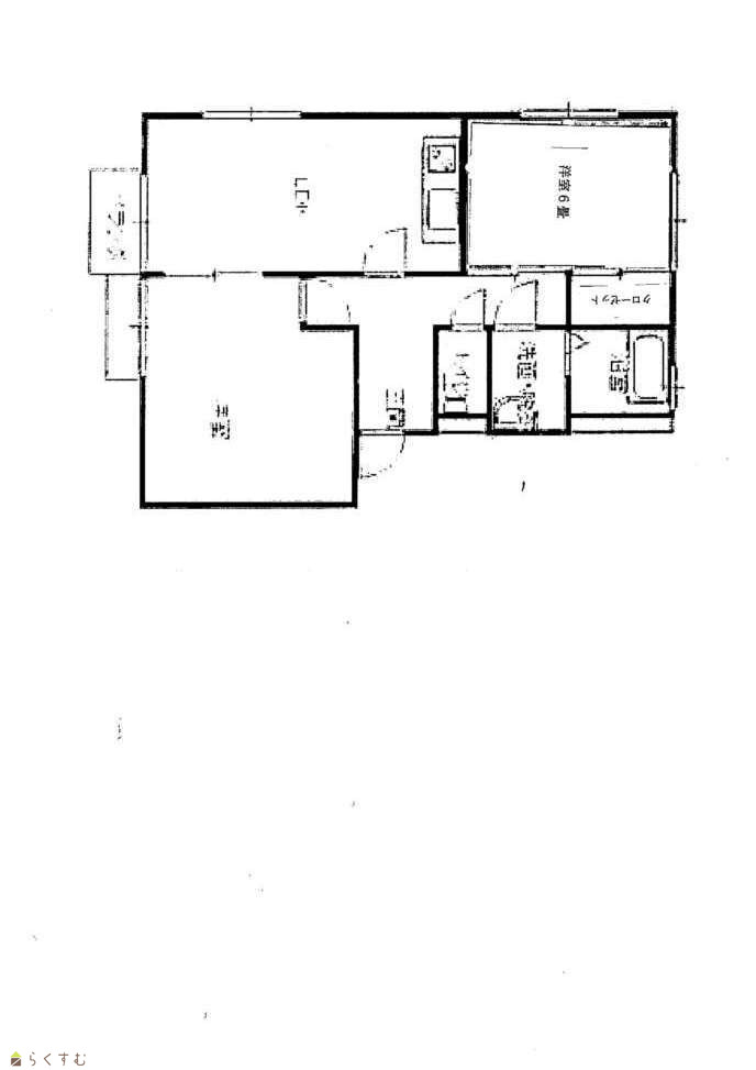
2LDK
2階
26年
西
5.2万円
なし
あり
1ヶ月
なし
なし
アパート・マンション・一戸建て
鉄骨
  • トレジャータウン
    株式会社オフィス・シナダ
  • この物件を問い合わせる/無料
  • TEL: 0257-41-5077

物件画像

外観 間取り
物件画像
※画像クリックで拡大表示
外観
物件画像
※画像クリックで拡大表示
間取り
詳細画像


物件概要

物件コード 00178-100252
物件名 トレジャータウン
交通 駅:信越線 柏崎駅から徒歩15分、バス:コモタウン柏崎から徒歩7分
所在地 新潟県柏崎市宝町3番85号トレジャータウン202
物件種別 アパート・マンション・一戸建て
総戸数 8戸
構造 鉄骨 階建 地上2階建
所在階/階数 2階/2階 号室 202号室
面積 53.08㎡ /16.05坪 方位 西
間取り 2LDK (洋室:6、9)
LDK
賃料 5.2万円/月
管理費 -
礼金 - 敷金 1ヶ月
ほか初期費用 - その他諸費用 -
更新料 - 火災(家財)保険 19,000円
共益費 2,000円
町内費 500円
駐車場 3000+消費税 バイク料金 -
鍵交換費 - 清掃料 -
更新事務手数料 -
保証区分 保証会社+緊急連絡先
保証会社 区分:加入要
保証会社名:日本インシュア
-
家賃保証金 27,250円
駐車場の利用が無い場合です
連帯保証人 区分:不要
-
仲介手数料 57,200円
築年月 1999年10月(築26年)
利用制限 法人:可、単身者:可、二人入居:可、ペット:不可、楽器:不可、事務所利用:不可、ルームシェア:不可
学校区 枇杷島小学校(1,204m)・鏡が沖中学校(986m)
設備 バス停近く、最寄り駅近く、最上階、敷地内ゴミ置き場、駐車2台可、駐輪場あり、テンキー、IHクッキングヒーター、バストイレ別、ユニットバス、温水洗浄便座、洗面所独立、オール電化、全居室フローリング、洗濯機置場 室内、脱衣所、クロゼット、インターネット無料、各居室照明
入居時期 令和8年4月上旬頃
取引態様 仲介
備考 -
手数料負担割合/配分割合 貸主:-%   借主:100% / 元付:50%   客付:50%  
取り扱い会社

株式会社オフィス・シナダ

新潟県柏崎市西港町4番19号

情報登録日 2026/03/03 次回更新予定日 2026/04/19
  • トレジャータウン
    株式会社オフィス・シナダ
  • この物件を問い合わせる/無料
  • TEL: 0257-41-5077

この物件の地図・周辺情報・行政情報

この物件の周辺情報・行政情報を詳しく見る
【周辺情報】
物件の近くにあるコンビニや銀行・学校など、アイコン付のマップで詳しく表示できます!
【行政情報】
水道料や下水道料・ガス料金など、暮らしに関係のある情報を表示しています。
ファミリーマート 柏崎扇町店(コンビニ)まで1140m
デイリーヤマザキ 柏崎田中店(コンビニ)まで890m
セブン-イレブン 柏崎錦町店(コンビニ)まで890m
原信 岩上店(スーパー)まで920m
ウオロク 柏崎店(スーパー)まで660m
わかくさ薬局(ドラッグストア)まで1110m
おうぎまち薬局(ドラッグストア)まで1150m
大手薬局 柏崎店(ドラッグストア)まで1230m
柏崎扇町薬局(ドラッグストア)まで1340m
ウエルシア柏崎錦町店 (調剤薬局)(ドラッグストア)まで830m
(有)石黒薬局 田中店(ドラッグストア)まで1020m
クスリのアオキ 穂波店(ドラッグストア)まで1020m
本間内科医院(病院)まで1180m
扇町皮膚科医院窓口(病院)まで1270m
扇町皮膚科医院(病院)まで1270m
あらき眼科(病院)まで1300m
つよしクリニック(病院)まで1210m
樋口内科医院扇町(病院)まで1370m
杉本医院(病院)まで1040m
セブン銀行ATM(銀行)まで880m
柏崎岩上郵便局(郵便局)まで840m

※カメラのアイコンがある場合は、マウスをポイントするとその施設の画像がご覧いただけます。


担当取扱い店舗情報

取扱い店舗画像
株式会社オフィス・シナダ
TEL: 0257-41-5077
所在地: 新潟県柏崎市西港町4番19号
交通: 柏崎駅
営業時間: 10:00~18:00土日は10:00~17:00/定休日:水曜日・祝日
免許番号: 新潟県知事(2)第5342号 この会社の情報を詳しく見る
所属団体名: 公社 宅地建物取引協会 柏崎支部
取引態様: 仲介
ホームページ: http://www.officeshinada.co.jp/