| 物件名
							 所在地  | 
							面積
							 間取り 所在階  | 
							築年数
							 方位  | 
							賃料
							 管理費等 共益費  | 
							敷金
							 保証金 礼金  | 
							種別
							 構造  | 
						
|---|---|---|---|---|---|
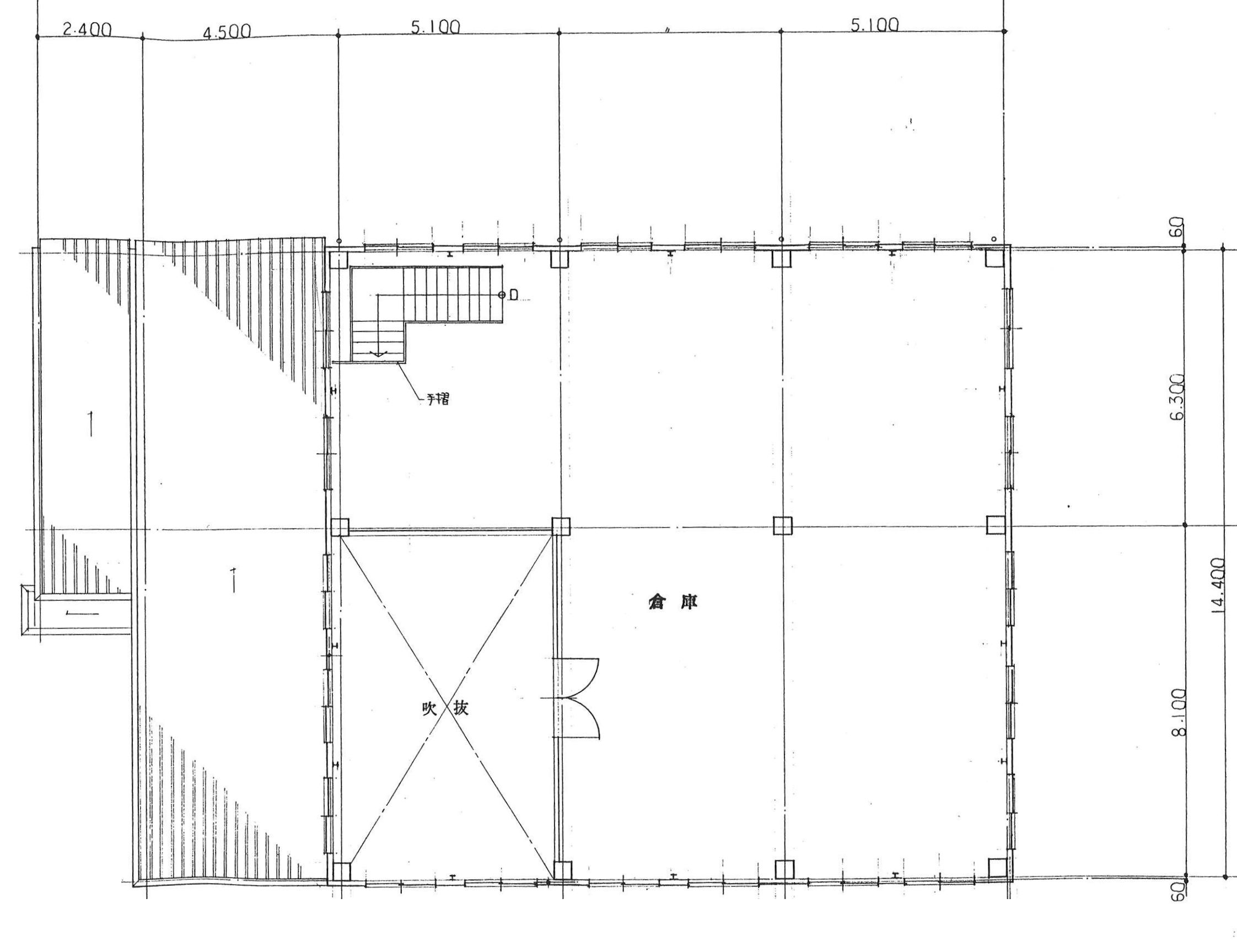
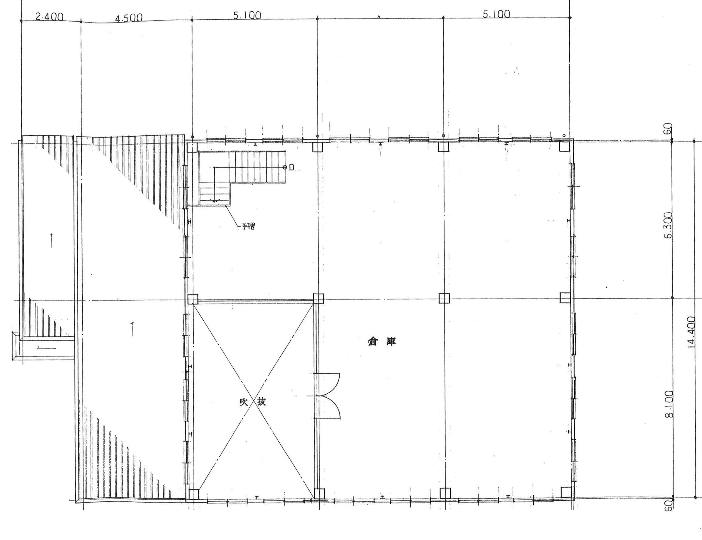
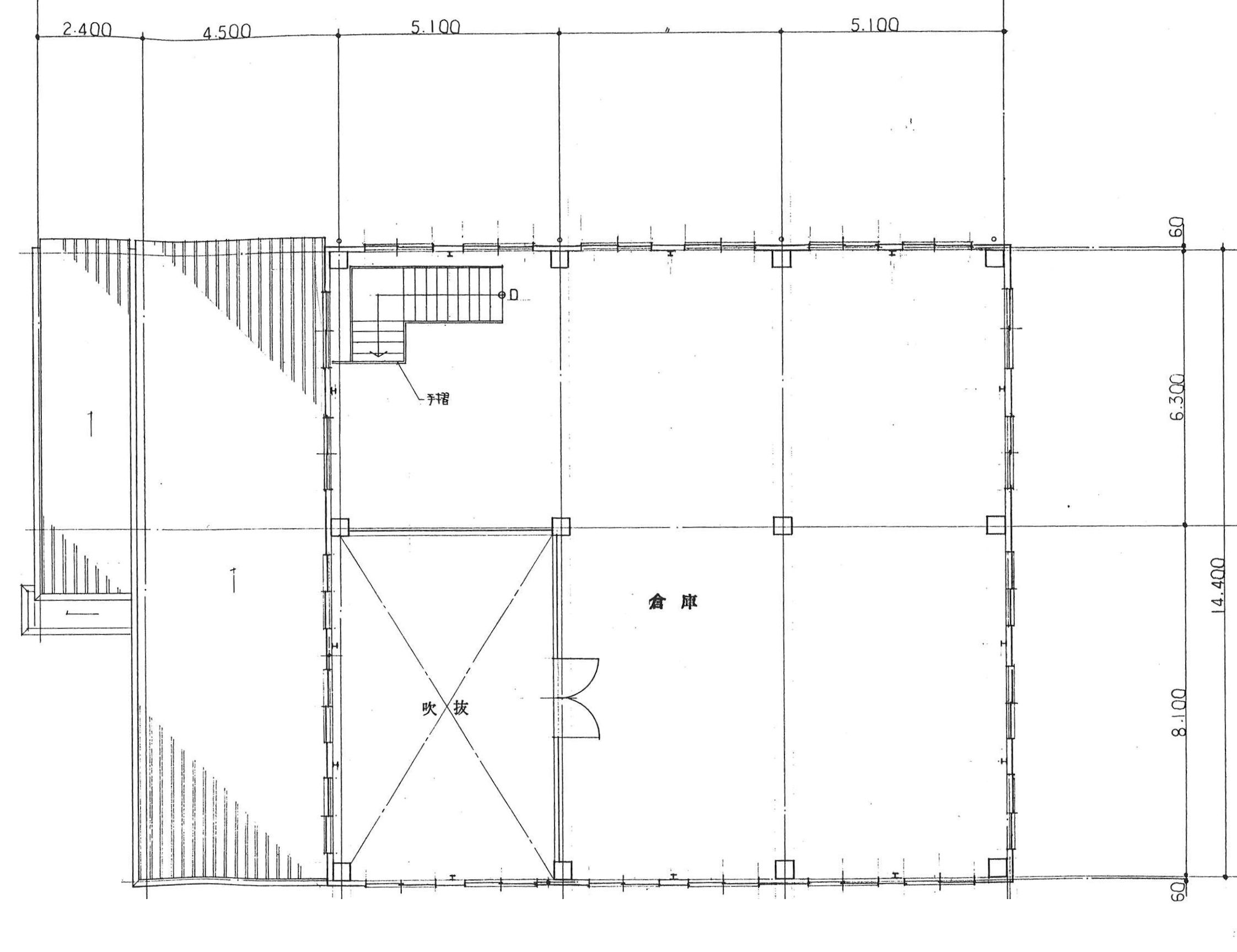
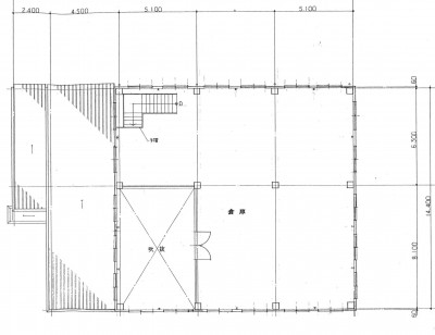
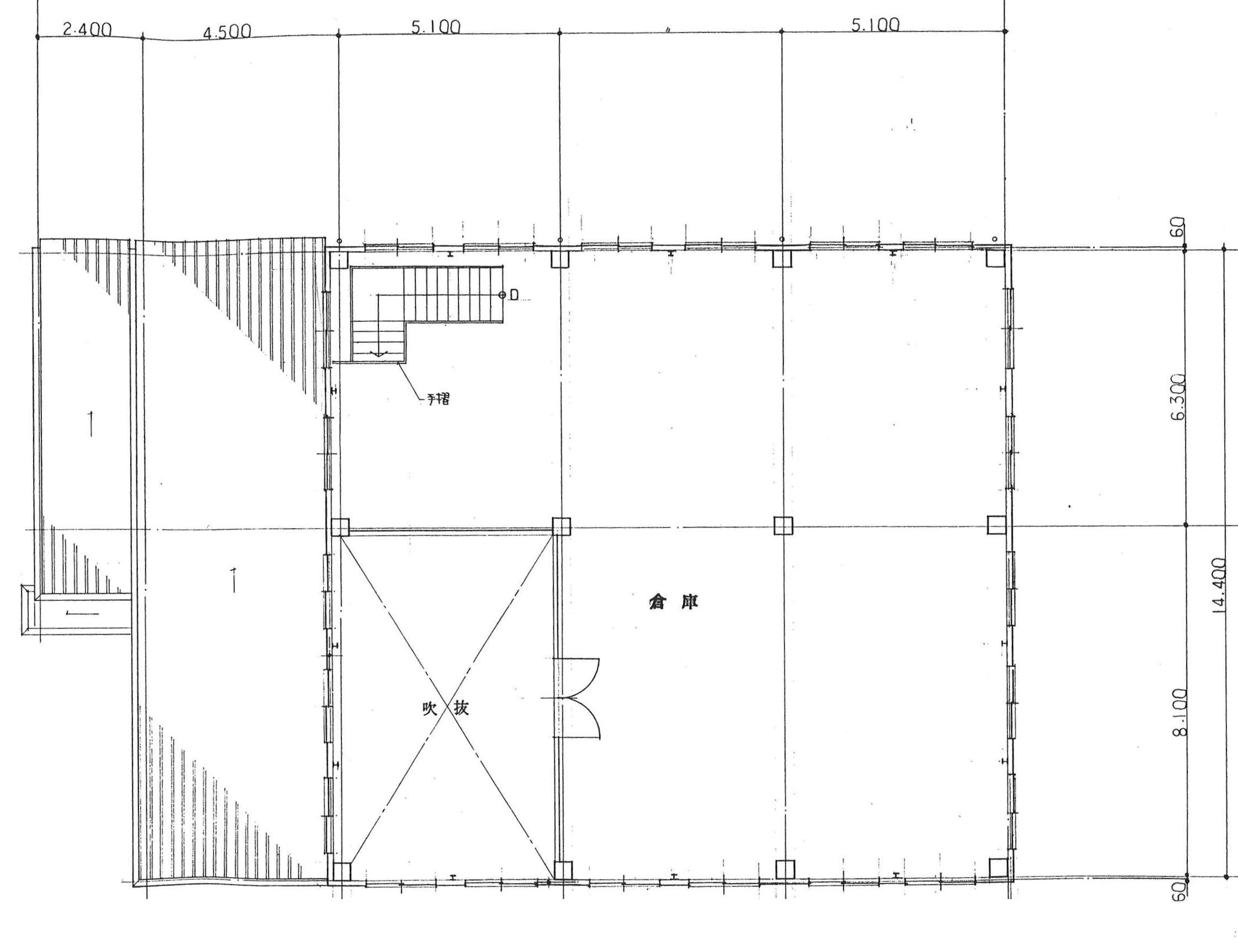
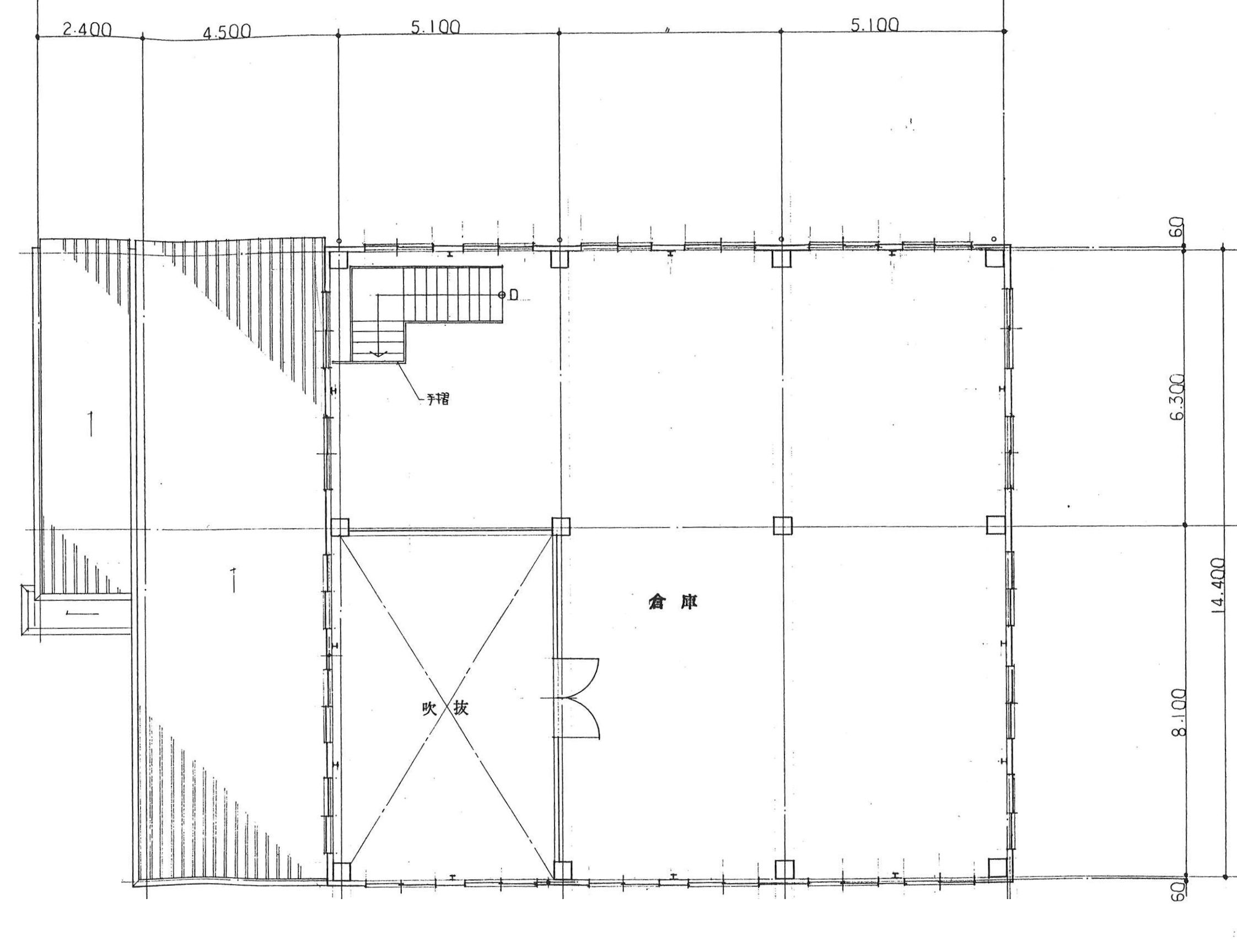
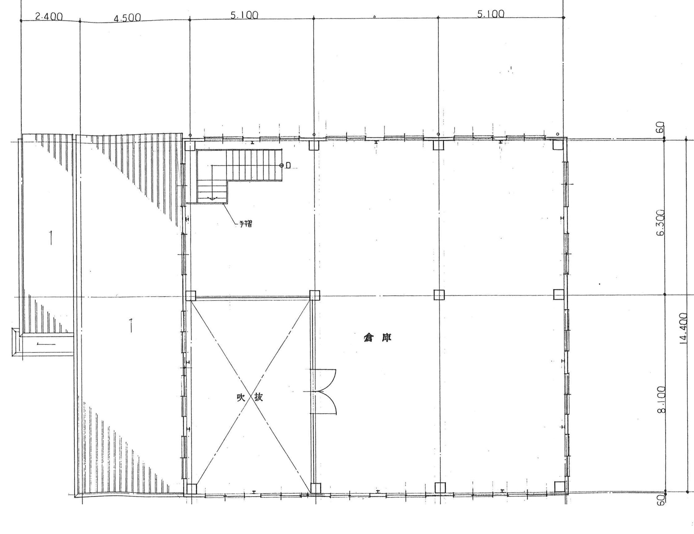
| 宝4丁目貸倉庫 3階 新潟県長岡市宝4丁目2ー13  | 184.64㎡ (55.85坪) - 3階  | 29年 -  | 5.5万円 なし なし  | 3ヶ月 なし なし  | 倉庫・工場・その他 鉄骨  | 
						
| 外観 | 間取り | 
|---|---|
| 
								 ※画像クリックで拡大表示  | 
							
								![]() ※画像クリックで拡大表示  | 
						
| 詳細画像 | |
| 
								 | 
						|
| 物件コード | 00117-100051 | ||
|---|---|---|---|
| 物件名 | 宝4丁目貸倉庫 3階 | ||
| 交通 | バス:宝4丁目から徒歩2分 | ||
| 所在地 | 新潟県長岡市宝4丁目2ー13 | ||
| 物件種別 | 倉庫・工場・その他 | ||
| 総戸数 | - | ||
| 構造 | 鉄骨 | 階建 | 地上3階建 | 
| 所在階/階数 | 3階/3階 | 号室 | - | 
| 面積 | 184.64㎡ /55.85坪 | 方位 | - | 
| 間取り | - | ||
| 賃料 | 5.5万円/月
								
								 | 
							管理費 | - | 
| 礼金 | -
								
								 | 
							敷金 | 3ヶ月
								
								 | 
						
| ほか初期費用 | - | その他諸費用 | - | 
| 更新料 | - | 火災(家財)保険 | あり | 
| 共益費 | - | 町内費 | - | 
| 駐車場 | - | バイク料金 | - | 
| 鍵交換費 | - | 清掃料 | - | 
| 更新事務手数料 | - | ||
| 保証区分 | 
								- | 
						||
| 保証会社 | 
							   区分:-
							   
							  	 
							   
							   							    -  | 
							
						||
| 連帯保証人 | 
							   区分:- -  | 
						||
| 仲介手数料 | 
								
																	55,000円
									 | 
							
						||
| 築年月 | 1996年5月(築29年) | ||
| 利用制限 | - | ||
| 学校区 | 黒条小学校・堤岡中学校 | ||
| 設備 | - | ||
| 入居時期 | 相談 | ||
| 取引態様 | 仲介 | ||
| 備考 | 3階の倉庫部分です。荷物は階段での上げ下ろしとなります。 | ||
| 手数料負担割合/配分割合 | 貸主:-% 借主:-% / 元付:-% 客付:-% | ||
| 取り扱い会社 | 
								 株式会社 棚橋不動産 新潟県長岡市泉1-7-1  | 
						||
| 情報登録日 | 2019/12/09 | 次回更新予定日 | 2025/11/18 | 
| TEL: | 0258-31-1700 | |
|---|---|---|
| 所在地: | 新潟県長岡市泉1-7-1 | |
| 交通: | 北長岡駅 | |
| 営業時間: | 8:30~17:30/定休日:土・日・祝 | |
| 免許番号: | 新潟県知事(4)第4749号 | 
										
											 | 
								
| 所属団体名: | 全日本不動産協会 新潟県本部 | |
| 取引態様: | 仲介 | |