新潟工科大学まで徒歩10分
| 物件名
							 所在地  | 
							面積
							 間取り 所在階  | 
							築年数
							 方位  | 
							賃料
							 管理費等 共益費  | 
							敷金
							 保証金 礼金  | 
							種別
							 構造  | 
						
|---|---|---|---|---|---|
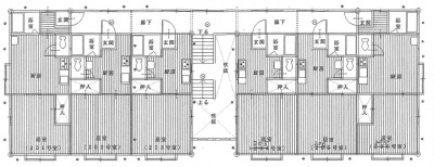
| グリーンハイツ 206号室 新潟県柏崎市堀1895-1  | 26.49㎡ (8.01坪) 1K 2階  | 28年 指定なし  | 3万円 2,000円/月 なし  | 1ヶ月 なし なし  | アパート・マンション・一戸建て 木造  | 
						
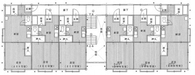
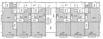
| 外観 | 間取り | 
|---|---|
| 
								 ※画像クリックで拡大表示 外観 
							 | 
							
								![]() ※画像クリックで拡大表示 間取り 
							 | 
						
| 詳細画像 | |
| 
								 | 
						|
| IHクッキングヒーター設置のオール電化物件です | |||
| 物件コード | 00079-100048 | ||
|---|---|---|---|
| 物件名 | グリーンハイツ | ||
| 交通 | 駅:JR茨目駅、バス:堀から徒歩2分 | ||
| 所在地 | 新潟県柏崎市堀1895-1 | ||
| 物件種別 | アパート・マンション・一戸建て | ||
| 総戸数 | - | ||
| 構造 | 木造 | 階建 | 地上2階建 | 
| 所在階/階数 | 2階/2階 | 号室 | 206号室 | 
| 面積 | 26.49㎡ /8.01坪 | 方位 | 指定なし | 
| 間取り | 1K (洋室:8) | ||
| 賃料 | 3万円/月
								
								 | 
							管理費 | 							
							
							2,000円/月
							
							 | 
						
| 礼金 | -
								
								 | 
							敷金 | 1ヶ月
								
								 | 
						
| ほか初期費用 | - | その他諸費用 | - | 
| 更新料 | - | 火災(家財)保険 | 
																									
										16,000円
										 (2年分)  | 
						
| 共益費 | - | 町内費 | 
																									
										300円
										 | 
						
| 駐車場 | 
																									
										1,000円
										 | 
							
														バイク料金 | - | 
| 鍵交換費 | - | 清掃料 | - | 
| 更新事務手数料 | 
								
																	11,000円
									 | 
						||
| 保証区分 | 
								連帯保証人のみ | 
						||
| 保証会社 | 
							   区分:指定なし
							   
							  	 
							   
							   							    -  | 
							
						||
| 連帯保証人 | 
							   区分:要 -  | 
						||
| 仲介手数料 | 
								
																	33,000円
									 | 
							
						||
| 築年月 | 1997年3月(築28年) | ||
| 利用制限 | 法人:可、学生:可、単身者:可、二人入居:不可、シニア(60歳以上)入居:可、ペット:不可、楽器:不可、事務所利用:不可、ルームシェア:不可 | ||
| 学校区 | 新道小学校(1,393m)・南中学校(925m) | ||
| 設備 | 閑静な住宅街、バス停近く、最上階、敷地内ゴミ置き場、南向き、IHクッキングヒーター、バストイレ別、エアコン、オール電化、洗濯機置場 室内、玄関収納、クロゼット、BS端子・アンテナ、各居室照明、インターネット接続可、即入居可、保証会社利用可能、礼金不要、高齢者相談、学生向け、一人暮らし・学生向け、柏崎 大学、新潟産業大学生におすすめ、新潟工科大学生におすすめ、早期契約物件(柏崎の大学向け※柏崎のみ) | ||
| 入居時期 | 即入居可 | ||
| 取引態様 | 仲介 | ||
| 備考 | - | ||
| 手数料負担割合/配分割合 | 貸主:0% 借主:100% / 元付:50% 客付:50% | ||
| 取り扱い会社 | 
								 株式会社 アーク不動産 新潟県柏崎市幸町3番26アークビル101  | 
						||
| 情報登録日 | 2025/01/21 | 次回更新予定日 | 2025/11/19 | 
| TEL: | 0257-22-6170 | |
|---|---|---|
| 所在地: | 新潟県柏崎市幸町3番26アークビル101 | |
| 交通: | 柏崎駅 | |
| 営業時間: | 9:00~17:30/定休日:土・日・祝日*3月は無休営業致します | |
| 免許番号: | 新潟県知事(7)第4045号 | 
										
											 | 
								
| 所属団体名: | (公社)新潟県宅地建物取引業協会 柏崎支部 | |
| 取引態様: | 仲介 | |
| ホームページ: | http://www.a-ku.co.jp | |