物件掲載企業数:301|賃貸物件:3,260件|売買物件:3,239件|今週の登録物件:257
閲覧中のブラウザ(インターネットエクスプローラー)は非推奨ブラウザです。
物件が正しく表示されなかったり、正しく検索されない場合があります。最新のブラウザ(Google Chrome・Edgeなど)にてご利用お願いいたします。
  

新潟県長岡市川崎2丁目2530-6 アパート 3DK 6万円の物件情報

ファミリーにおすすめ♪川崎小エリアのメゾネット3DKです!

物件名
所在地
面積
間取り
所在階
築年数
方位
賃料
管理費等
共益費
敷金
保証金
礼金
種別
構造
トップリバー
C号室
新潟県長岡市川崎2丁目2530-6
64.79㎡
(19.59坪)
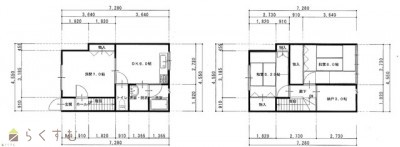
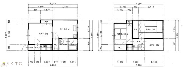
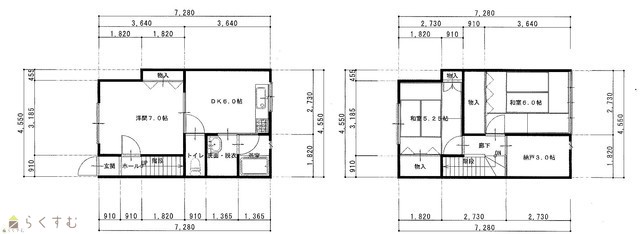
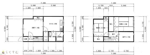
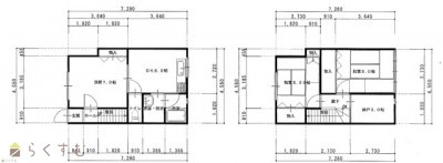
3DK
1階
26年
南東
6万円
なし
-
12万円
なし
なし
アパート・マンション・一戸建て
木造
  • トップリバー
    株式会社 リビングギャラリー長岡センター
  • この物件を問い合わせる/無料
  • TEL: 0800-100-0539

物件画像

外観 間取り
物件画像
※画像クリックで拡大表示
外観
物件画像
※画像クリックで拡大表示
間取図
詳細画像


物件概要

駐車場1台付き!2台目は近隣駐車場になります。(要確認)
物件コード 00078-104285
物件名 トップリバー
交通 駅:長岡から徒歩23分
所在地 新潟県長岡市川崎2丁目2530-6
物件種別 アパート・マンション・一戸建て
総戸数 4戸
構造 木造 階建 地上2階建
所在階/階数 1階/2階 号室 C号室
面積 64.79㎡ /19.59坪 方位 南東
間取り 3DK (和室:5.6畳、5.2畳) (洋室:7)
賃料 6万円/月
管理費 -
礼金 -
敷金 12万円
ほか初期費用 - その他諸費用 -
更新料
要確認
火災(家財)保険 22,000円
損害保険:2年間2.2万円
駐車場
付無料
バイク料金 -
鍵交換費 - 清掃料 -
更新事務手数料 -
保証区分 保証会社のみ
保証会社 区分:加入要
保証会社名:その他 (-)
初回保証料:月額総賃料の80% 
連帯保証人 区分:不要+保証会社利用が必要
-
仲介手数料 66,000円
築年月 2000年1月(築26年)
利用制限 単身者:可、二人入居:可、子供:可、ペット:不可、事務所利用:不可、ルームシェア:不可
学校区 川崎小学校
設備 閑静な住宅街、メゾネット、駐車場1台無料、駐車場 礼金なし、駐車場 敷金なし、ダブルロックキー、バストイレ別、温水洗浄便座、暖房便座、洗面所独立、エアコン、都市ガス、3か所給湯、洗濯機置場 室内、脱衣所、各居室照明、メゾネット式
入居時期 即入居可
取引態様 仲介
備考 -
手数料負担割合/配分割合 貸主:0%   借主:100% / 元付:50%   客付:50%  
取り扱い会社

株式会社 リビングギャラリー長岡センター

新潟県長岡市古正寺1丁目48番地1

情報登録日 2026/05/25 次回更新予定日 2026/06/08
  • トップリバー
    株式会社 リビングギャラリー長岡センター
  • この物件を問い合わせる/無料
  • TEL: 0800-100-0539

この物件の地図・周辺情報・行政情報

この物件の周辺情報・行政情報を詳しく見る
【周辺情報】
物件の近くにあるコンビニや銀行・学校など、アイコン付のマップで詳しく表示できます!
【行政情報】
水道料や下水道料・ガス料金など、暮らしに関係のある情報を表示しています。

担当取扱い店舗情報

取扱い店舗画像
株式会社 リビングギャラリー長岡センター
TEL: 0800-100-0539
所在地: 新潟県長岡市古正寺1丁目48番地1
交通: 長岡駅
営業時間: 10:00~18:00/定休日:水曜日・第一、第三火曜日
免許番号: 国土交通大臣(6)第5854号 この会社の情報を詳しく見る
所属団体名: 新潟県宅地建物取引協会 長岡支部
取引態様: 仲介
ホームページ: http://www.living-gallery.com/