物件掲載企業数:299|賃貸物件:3,627件|売買物件:3,333件|今週の登録物件:211
閲覧中のブラウザ(インターネットエクスプローラー)は非推奨ブラウザです。
物件が正しく表示されなかったり、正しく検索されない場合があります。最新のブラウザ(Google Chrome・Edgeなど)にてご利用お願いいたします。
  

新潟県長岡市城内町3丁目5-1 事務所 9万円の物件情報

長岡駅より徒歩5分、事務所に最適。エアコン、敷地内駐車場1台付。

物件名
所在地
面積
間取り
所在階
築年数
方位
賃料
管理費等
共益費
敷金
保証金
礼金
種別
構造
レーベン長岡
202号室
新潟県長岡市城内町3丁目5-1
63.96㎡
(19.34坪)
-
2階
41年
-
9万円
なし
なし
2ヶ月
なし
なし
事務所
鉄骨鉄筋コン
  • レーベン長岡
    有限会社 グリーン土地
  • この物件を問い合わせる/無料
  • TEL: 0258-32-1222

物件画像

外観 間取り
物件画像
※画像クリックで拡大表示
外観
物件画像
※画像クリックで拡大表示
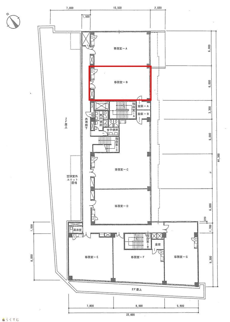
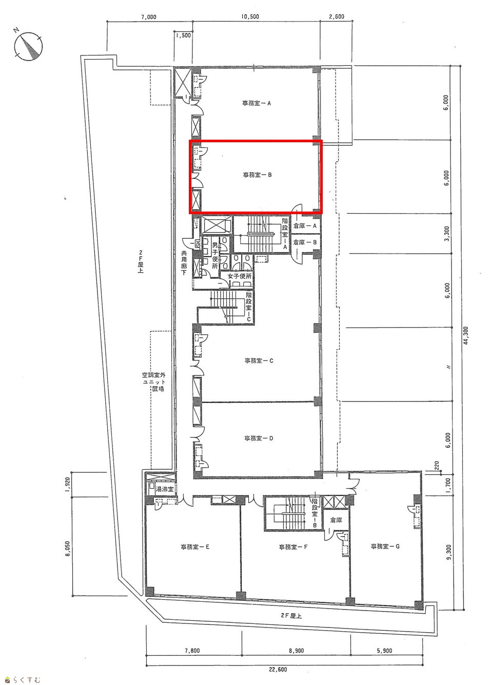
間取り
詳細画像


物件概要

物件コード 00071-100655
物件名 レーベン長岡
交通 駅:長岡から徒歩5分
所在地 新潟県長岡市城内町3丁目5-1
物件種別 事務所
総戸数 -
構造 鉄骨鉄筋コン 階建 地上9階建
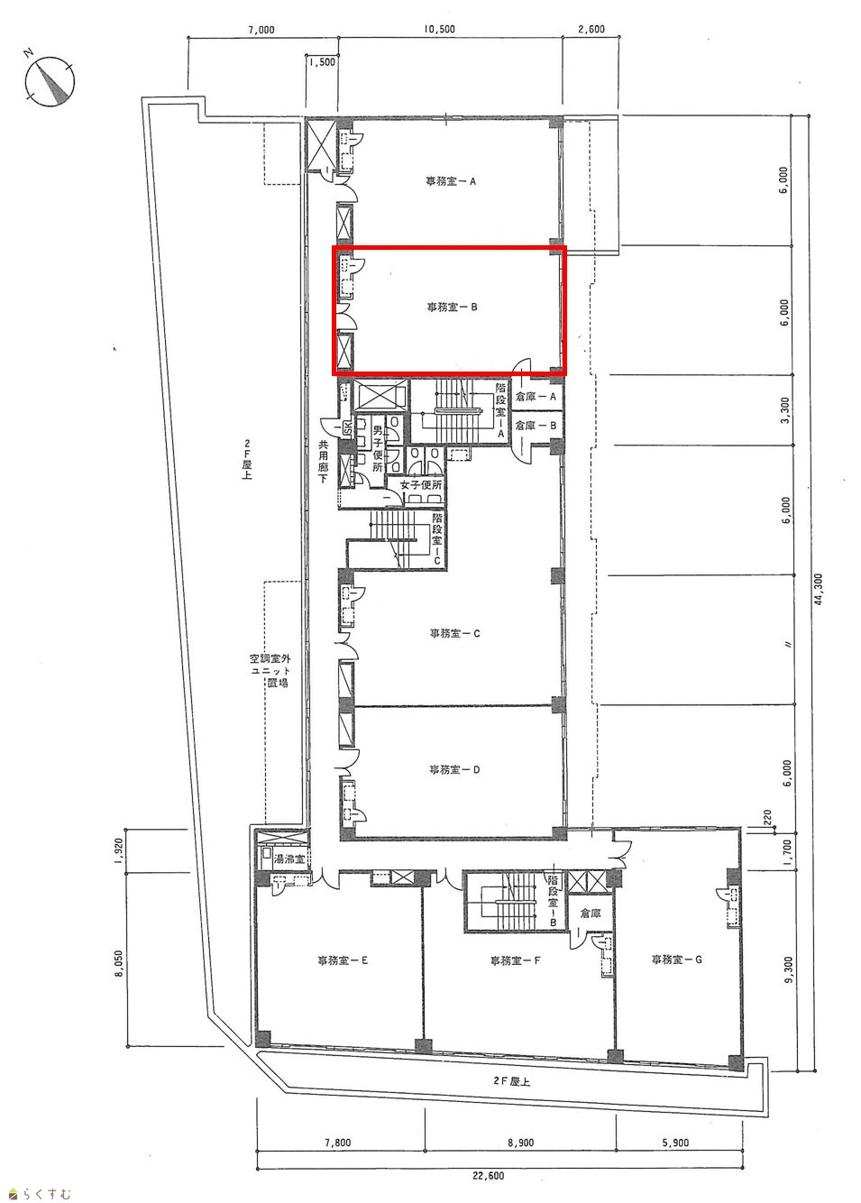
所在階/階数 2階/9階 号室 202号室
面積 63.96㎡ /19.34坪 方位 -
間取り -
賃料 9万円/月
管理費 -
礼金 -
敷金 2ヶ月
ほか初期費用 - その他諸費用 -
更新料 - 火災(家財)保険 -
共益費 - 町内費 -
駐車場 敷地内駐車場1台込(№7) バイク料金 -
鍵交換費 - 清掃料 -
更新事務手数料 -
保証区分 連帯保証人のみ
保証会社 区分:指定なし
-
連帯保証人 区分:要
-
仲介手数料 99,000円
築年月 1984年9月(築41年)
利用制限 事務所利用:可
学校区 阪之上小学校(545m)・東中学校(1,170m)
設備 2階以上、融雪設備あり、管理室あり、エアコン、給湯、駐車場あり
入居時期 相談
取引態様 仲介
備考 トイレ・給湯設備は他事務所と共用になります。
手数料負担割合/配分割合 貸主:0%   借主:100% / 元付:50%   客付:50%  
取り扱い会社

有限会社 グリーン土地

新潟県長岡市本町3-1-9 アーバンヒルズ長岡1F

情報登録日 2025/10/23 次回更新予定日 2025/11/09
  • レーベン長岡
    有限会社 グリーン土地
  • この物件を問い合わせる/無料
  • TEL: 0258-32-1222

この物件の地図・周辺情報・行政情報

この物件の周辺情報・行政情報を詳しく見る
【周辺情報】
物件の近くにあるコンビニや銀行・学校など、アイコン付のマップで詳しく表示できます!
【行政情報】
水道料や下水道料・ガス料金など、暮らしに関係のある情報を表示しています。
ローソン 長岡駅大手口店(コンビニ)まで300m
セブン-イレブン 長岡呉服町店(コンビニ)まで310m
大光銀行 本店営業部・千手支店(銀行)まで440m
第四北越銀行 長岡本店営業部(銀行)まで550m
第四北越銀行 長岡市役所支店(銀行)まで660m
長岡郵便局(郵便局)まで420m

※カメラのアイコンがある場合は、マウスをポイントするとその施設の画像がご覧いただけます。


担当取扱い店舗情報

取扱い店舗画像
有限会社 グリーン土地
TEL: 0258-32-1222
所在地: 新潟県長岡市本町3-1-9 アーバンヒルズ長岡1F
交通: 長岡駅
営業時間: 9:00~17:00/定休日:日・祝・祭日
免許番号: 新潟県知事(10)3038号 この会社の情報を詳しく見る
所属団体名: 新潟県宅地建物取引協会 長岡支部
取引態様: 仲介
ホームページ: https://www.greentoti.com