物件掲載企業数:301|賃貸物件:3,261件|売買物件:3,251件|今週の登録物件:245
閲覧中のブラウザ(インターネットエクスプローラー)は非推奨ブラウザです。
物件が正しく表示されなかったり、正しく検索されない場合があります。最新のブラウザ(Google Chrome・Edgeなど)にてご利用お願いいたします。
  

新潟県三条市須頃2丁目36 事務所 90万円の物件情報

敷地内駐車場約33台可能!燕三条駅徒歩約5分

物件名
所在地
面積
間取り
所在階
築年数
方位
賃料
管理費等
共益費
敷金
保証金
礼金
種別
構造
◆貸店舗事務所◆三条市須頃2丁目N・Kビル
新潟県三条市須頃2丁目36
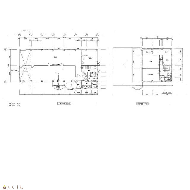
578.2㎡
(174.9坪)
-
-
27年
-
90万円
なし
なし
270万円
なし
なし
事務所
鉄骨
  • ◆貸店舗事務所◆三条市須頃2丁目N・Kビル
    株式会社 ユタカ不動産
  • この物件を問い合わせる/無料
  • TEL: 0256-35-5825

物件画像

外観 間取り
物件画像
※画像クリックで拡大表示
外観
物件画像
※画像クリックで拡大表示
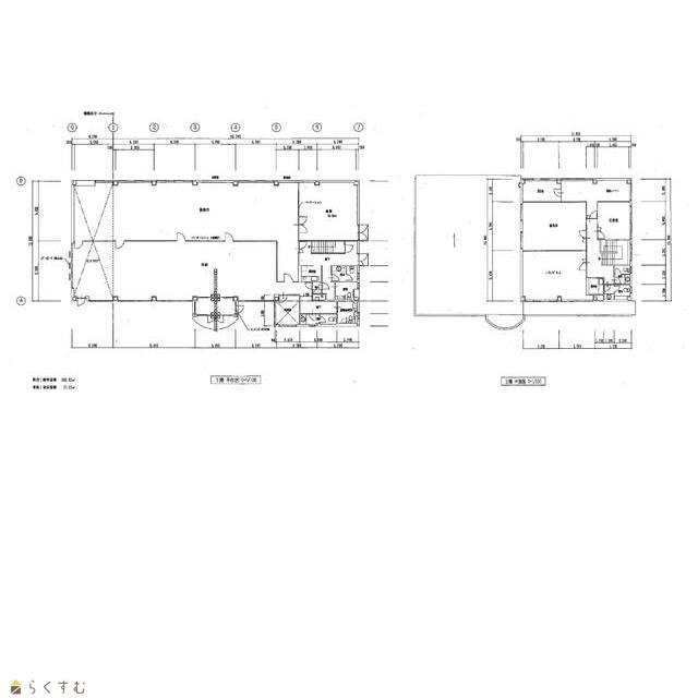
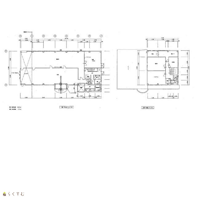
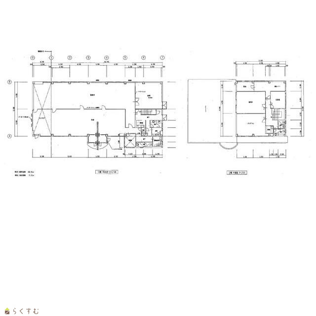
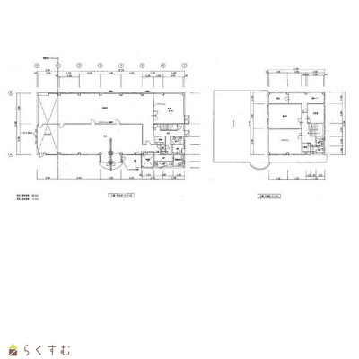
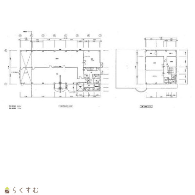
図面1
詳細画像


物件概要

物件コード 00052-100205
物件名 ◆貸店舗事務所◆三条市須頃2丁目N・Kビル
交通 駅:上越新幹線 燕三条駅から徒歩4分、バス:須頃郷第3号公園から徒歩5分
所在地 新潟県三条市須頃2丁目36
物件種別 事務所
総戸数 -
構造 鉄骨 階建 地上2階建
所在階/階数 - 号室 -
面積 578.2㎡ /174.9坪 方位 -
間取り -
賃料 90万円/月
管理費 -
礼金 - 敷金 270万円
ほか初期費用 - その他諸費用 -
更新料 - 火災(家財)保険 加入必須
共益費 - 町内費 -
駐車場
バイク料金 -
鍵交換費 - 清掃料 -
更新事務手数料 -
保証区分 連帯保証人のみ
保証会社 区分:指定なし
-
連帯保証人 区分:要
審査内容により、保証会社利用の可能性有り。その際、初回保証料:月額総額の100%。継続保証料:月額総額の10%(年)必要。
仲介手数料 990,000円
築年月 1998年8月(築27年)
利用制限 -
学校区 須頃小学校(1,449m)・大島中学校(1,480m)
設備 1階、2階以上、融雪設備あり、男女トイレ別、給湯、駐車場あり
入居時期 相談
取引態様 仲介
備考 ●飲食店不可。
●融雪付駐車場(融雪管理、電気料は借主負担)。
●浄化槽維持管理は借主負担。
●火災報知器、消火器の点検等を含めた消防の点検整備費用は借主負担。
●高圧電力契約が必要の為、契約開始迄約2ヶ月かかる可能性有。
手数料負担割合/配分割合 貸主:0%   借主:100% / 元付:50%   客付:50%  
取り扱い会社

株式会社 ユタカ不動産

新潟県三条市旭町1丁目1-19-3ユタカビル

情報登録日 2025/02/17 次回更新予定日 2026/06/06
  • ◆貸店舗事務所◆三条市須頃2丁目N・Kビル
    株式会社 ユタカ不動産
  • この物件を問い合わせる/無料
  • TEL: 0256-35-5825

この物件の地図・周辺情報・行政情報

この物件の周辺情報・行政情報を詳しく見る
【周辺情報】
物件の近くにあるコンビニや銀行・学校など、アイコン付のマップで詳しく表示できます!
【行政情報】
水道料や下水道料・ガス料金など、暮らしに関係のある情報を表示しています。

担当取扱い店舗情報

取扱い店舗画像
株式会社 ユタカ不動産
TEL: 0256-35-5825
所在地: 新潟県三条市旭町1丁目1-19-3ユタカビル
交通: 東三条駅
営業時間: 9:00~18:00/定休日:火曜・祭日
免許番号: 新潟見知事(9)第3203号 この会社の情報を詳しく見る
所属団体名: 新潟県宅地建物取引協会 三条支部
取引態様: 仲介
ホームページ: http://www.yutakafudousan.com