物件掲載企業数:301|賃貸物件:3,261件|売買物件:3,251件|今週の登録物件:296
閲覧中のブラウザ(インターネットエクスプローラー)は非推奨ブラウザです。
物件が正しく表示されなかったり、正しく検索されない場合があります。最新のブラウザ(Google Chrome・Edgeなど)にてご利用お願いいたします。
  

新潟県長岡市蓮潟4丁目9-15 事務所 15万円の物件情報

物件名
所在地
面積
間取り
所在階
築年数
方位
賃料
管理費等
共益費
敷金
保証金
礼金
種別
構造
【駐車場5台付】蓮潟4丁目 貸事務所 
新潟県長岡市蓮潟4丁目9-15
96.88㎡
(29.3坪)
-
-
34年
-
15万円
なし
なし
3ヶ月
なし
なし
事務所
鉄骨
  • 【駐車場5台付】蓮潟4丁目 貸事務所 
    有限会社 高治企画 
  • この物件を問い合わせる/無料
  • TEL: 0258-27-6599

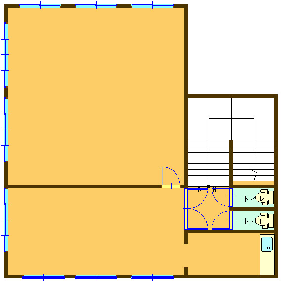
物件画像

外観 間取り
物件画像
※画像クリックで拡大表示
外観
物件画像
※画像クリックで拡大表示
間取り
詳細画像


物件概要

物件コード 00051-100157
物件名 【駐車場5台付】蓮潟4丁目 貸事務所 
交通 駅:長岡から徒歩56分、バス:長岡造形大学前から徒歩4分
所在地 新潟県長岡市蓮潟4丁目9-15
物件種別 事務所
総戸数 -
構造 鉄骨 階建 地上2階建
所在階/階数 - 号室 -
面積 96.88㎡ /29.3坪 方位 -
間取り -
賃料 15万円/月
管理費 -
礼金 -
敷金 3ヶ月
ほか初期費用 - その他諸費用 -
更新料 - 火災(家財)保険 要相談
共益費 - 町内費 実費
駐車場
4台無料+車庫1台分あり
バイク料金 -
鍵交換費 17,600円
エントランス玄関のみ
清掃料 -
更新事務手数料 -
保証区分 連帯保証人のみ
保証会社 区分:指定なし
-
連帯保証人 区分:要
-
仲介手数料 165,000円
築年月 1992年4月(築34年)
利用制限 -
学校区 上川西小学校(965m)・江陽中学校(1,549m)
設備 融雪設備あり、男女トイレ別、給湯、駐車場あり
入居時期 2026年7月中旬
取引態様 仲介
備考 現況優先
手数料負担割合/配分割合 貸主:0%   借主:100% / 元付:50%   客付:50%  
取り扱い会社

有限会社 高治企画 

新潟県長岡市荻野1丁目6番7号

情報登録日 2026/03/25 次回更新予定日 2026/06/05
  • 【駐車場5台付】蓮潟4丁目 貸事務所 
    有限会社 高治企画 
  • この物件を問い合わせる/無料
  • TEL: 0258-27-6599

この物件の地図・周辺情報・行政情報

この物件の周辺情報・行政情報を詳しく見る
【周辺情報】
物件の近くにあるコンビニや銀行・学校など、アイコン付のマップで詳しく表示できます!
【行政情報】
水道料や下水道料・ガス料金など、暮らしに関係のある情報を表示しています。

担当取扱い店舗情報

取扱い店舗画像
有限会社 高治企画 
TEL: 0258-27-6599
所在地: 新潟県長岡市荻野1丁目6番7号
交通: JR長岡駅、バス(越後交通)
営業時間: 9:00~17:00/定休日:土曜・日曜・祭日(3月は無休)
免許番号: 新潟県知事(6)第4078号 この会社の情報を詳しく見る
所属団体名: 新潟県宅地建物取引協会 長岡支部
取引態様: 仲介
ホームページ: http://www.takaharu-k.co.jp